Votre courriel a été envoyé.
Americana Plaza 515 N Cedar Ridge Dr 182–3 140 pi² d'espace disponible • Bureau • Duncanville, TX 75116



Certaines informations ont été traduites automatiquement.
Faits saillants
- Renovated in 2017 with high-end finishes such as ceramic tile and wood accents
- Monument signage on N. Cedar Ridge Drive with additional façade signage options
- Full-service gross lease structure inclusive of utilities and janitorial services
- Easy access to I-20 and Highway 67, providing direct connectivity to Dallas
- Ample surface parking with approximately 75 spaces and a strong parking ratio
- Suites offer flexible configurations, including executive offices and conference rooms
Tous les espaces disponibles(5)
Afficher les taux de location en
- Espace
- Taille
- Terme
- Taux de location
- Utilisation de l’espace
- Aménagement
- Disponible
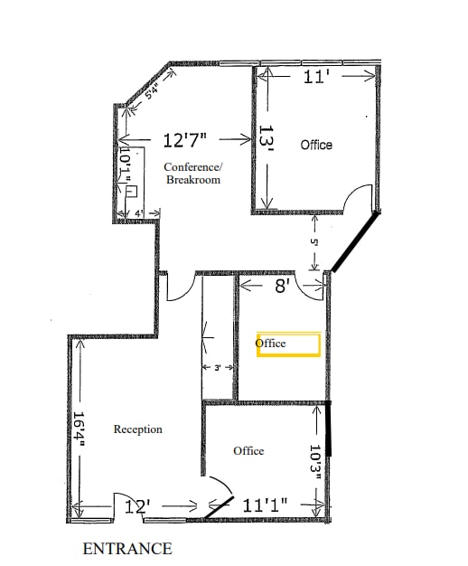
Suite includes 3 offices, a conference room, and a break area with sink.
- Le taux comprend les services publics, les services de bâtiment et les dépenses immobilières.
- Convient pour 3 à 9 personnes
- 1 salle de conférence
- See suite availability
- Includes utilities, maintenance, and common area
- Entièrement construit comme Bureau standard
- 3 bureaux privés
- Espace en excellent état
- Full Service Gross
Suite includes a 1 room executive suite with a window that shares common waiting room and break area with wet bar
- Le taux comprend les services publics, les services de bâtiment et les dépenses immobilières.
- Convient pour 1 à 2 personnes
- 1 salle de conférence
- See suite availability
- Includes utilities, maintenance, and common area
- Entièrement construit comme Bureau standard
- 3 bureaux privés
- Espace en excellent état
- Full Service Gross
Suite includes a 1 room executive suite that shares common waiting room and break area with wet bar.
- Le taux comprend les services publics, les services de bâtiment et les dépenses immobilières.
- Convient pour 1 à 2 personnes
- 1 salle de conférence
- See suite availability
- Includes utilities, maintenance, and common area
- Entièrement construit comme Bureau standard
- 3 bureaux privés
- Espace en excellent état
- Full Service Gross
Suite includes a 1 room executive suite that shares common waiting room and break area with wet bar.
- Le taux comprend les services publics, les services de bâtiment et les dépenses immobilières.
- Disposition intensive du bureau
- 1 salle de conférence
- See suite availability
- Includes utilities, maintenance, and common area
- Entièrement construit comme Bureau standard
- Convient pour 1 à 2 personnes
- Espace en excellent état
- Full Service Gross
Suite includes a reception/waiting area, and 4 offices that can double as conference rooms, file rooms, etc.
- Le taux comprend les services publics, les services de bâtiment et les dépenses immobilières.
- Convient pour 4 à 12 personnes
- 1 salle de conférence
- See suite availability
- Includes utilities, maintenance, and common area
- Entièrement construit comme Bureau standard
- 4 bureaux privés
- Espace en excellent état
- Full Service Gross
| Espace | Taille | Terme | Taux de location | Utilisation de l’espace | Aménagement | Disponible |
| 1er étage, ste 6 | 1 072 pi² | Négociable | 21,07 $ CAD/pi²/an 1,76 $ CAD/pi²/mois 22 590 $ CAD/an 1 882 $ CAD/mois | Bureau | construction complète | Maintenant |
| 1er étage, ste 7-D | 193 pi² | Négociable | 35,99 $ CAD/pi²/an 3,00 $ CAD/pi²/mois 6 946 $ CAD/an 578,81 $ CAD/mois | Bureau | construction complète | Maintenant |
| 1er étage, ste 7-H | 182 pi² | Négociable | 35,92 $ CAD/pi²/an 2,99 $ CAD/pi²/mois 6 537 $ CAD/an 544,79 $ CAD/mois | Bureau | construction complète | Maintenant |
| 1er étage, ste 7-J | 198 pi² | Négociable | 33,02 $ CAD/pi²/an 2,75 $ CAD/pi²/mois 6 538 $ CAD/an 544,81 $ CAD/mois | Bureau | construction complète | Maintenant |
| 1er étage, ste 9 | 1 495 pi² | Négociable | 33,02 $ CAD/pi²/an 2,75 $ CAD/pi²/mois 49 363 $ CAD/an 4 114 $ CAD/mois | Bureau | construction complète | Maintenant |
1er étage, ste 6
| Taille |
| 1 072 pi² |
| Terme |
| Négociable |
| Taux de location |
| 21,07 $ CAD/pi²/an 1,76 $ CAD/pi²/mois 22 590 $ CAD/an 1 882 $ CAD/mois |
| Utilisation de l’espace |
| Bureau |
| Aménagement |
| construction complète |
| Disponible |
| Maintenant |
1er étage, ste 7-D
| Taille |
| 193 pi² |
| Terme |
| Négociable |
| Taux de location |
| 35,99 $ CAD/pi²/an 3,00 $ CAD/pi²/mois 6 946 $ CAD/an 578,81 $ CAD/mois |
| Utilisation de l’espace |
| Bureau |
| Aménagement |
| construction complète |
| Disponible |
| Maintenant |
1er étage, ste 7-H
| Taille |
| 182 pi² |
| Terme |
| Négociable |
| Taux de location |
| 35,92 $ CAD/pi²/an 2,99 $ CAD/pi²/mois 6 537 $ CAD/an 544,79 $ CAD/mois |
| Utilisation de l’espace |
| Bureau |
| Aménagement |
| construction complète |
| Disponible |
| Maintenant |
1er étage, ste 7-J
| Taille |
| 198 pi² |
| Terme |
| Négociable |
| Taux de location |
| 33,02 $ CAD/pi²/an 2,75 $ CAD/pi²/mois 6 538 $ CAD/an 544,81 $ CAD/mois |
| Utilisation de l’espace |
| Bureau |
| Aménagement |
| construction complète |
| Disponible |
| Maintenant |
1er étage, ste 9
| Taille |
| 1 495 pi² |
| Terme |
| Négociable |
| Taux de location |
| 33,02 $ CAD/pi²/an 2,75 $ CAD/pi²/mois 49 363 $ CAD/an 4 114 $ CAD/mois |
| Utilisation de l’espace |
| Bureau |
| Aménagement |
| construction complète |
| Disponible |
| Maintenant |
1er étage, ste 6
| Taille | 1 072 pi² |
| Terme | Négociable |
| Taux de location | 21,07 $ CAD/pi²/an |
| Utilisation de l’espace | Bureau |
| Aménagement | construction complète |
| Disponible | Maintenant |
Suite includes 3 offices, a conference room, and a break area with sink.
- Le taux comprend les services publics, les services de bâtiment et les dépenses immobilières.
- Entièrement construit comme Bureau standard
- Convient pour 3 à 9 personnes
- 3 bureaux privés
- 1 salle de conférence
- Espace en excellent état
- See suite availability
- Full Service Gross
- Includes utilities, maintenance, and common area
1er étage, ste 7-D
| Taille | 193 pi² |
| Terme | Négociable |
| Taux de location | 35,99 $ CAD/pi²/an |
| Utilisation de l’espace | Bureau |
| Aménagement | construction complète |
| Disponible | Maintenant |
Suite includes a 1 room executive suite with a window that shares common waiting room and break area with wet bar
- Le taux comprend les services publics, les services de bâtiment et les dépenses immobilières.
- Entièrement construit comme Bureau standard
- Convient pour 1 à 2 personnes
- 3 bureaux privés
- 1 salle de conférence
- Espace en excellent état
- See suite availability
- Full Service Gross
- Includes utilities, maintenance, and common area
1er étage, ste 7-H
| Taille | 182 pi² |
| Terme | Négociable |
| Taux de location | 35,92 $ CAD/pi²/an |
| Utilisation de l’espace | Bureau |
| Aménagement | construction complète |
| Disponible | Maintenant |
Suite includes a 1 room executive suite that shares common waiting room and break area with wet bar.
- Le taux comprend les services publics, les services de bâtiment et les dépenses immobilières.
- Entièrement construit comme Bureau standard
- Convient pour 1 à 2 personnes
- 3 bureaux privés
- 1 salle de conférence
- Espace en excellent état
- See suite availability
- Full Service Gross
- Includes utilities, maintenance, and common area
1er étage, ste 7-J
| Taille | 198 pi² |
| Terme | Négociable |
| Taux de location | 33,02 $ CAD/pi²/an |
| Utilisation de l’espace | Bureau |
| Aménagement | construction complète |
| Disponible | Maintenant |
Suite includes a 1 room executive suite that shares common waiting room and break area with wet bar.
- Le taux comprend les services publics, les services de bâtiment et les dépenses immobilières.
- Entièrement construit comme Bureau standard
- Disposition intensive du bureau
- Convient pour 1 à 2 personnes
- 1 salle de conférence
- Espace en excellent état
- See suite availability
- Full Service Gross
- Includes utilities, maintenance, and common area
1er étage, ste 9
| Taille | 1 495 pi² |
| Terme | Négociable |
| Taux de location | 33,02 $ CAD/pi²/an |
| Utilisation de l’espace | Bureau |
| Aménagement | construction complète |
| Disponible | Maintenant |
Suite includes a reception/waiting area, and 4 offices that can double as conference rooms, file rooms, etc.
- Le taux comprend les services publics, les services de bâtiment et les dépenses immobilières.
- Entièrement construit comme Bureau standard
- Convient pour 4 à 12 personnes
- 4 bureaux privés
- 1 salle de conférence
- Espace en excellent état
- See suite availability
- Full Service Gross
- Includes utilities, maintenance, and common area
Aperçu de la propriété
+/-15,218 SF multi-tenant office building for lease. Current tenants include Allegiance Title Company, Manifested Evidence, Inc. plus many others. Renovated in 2017 with upscale finish-out including ceramic tile and wood staircase. Approximately 1 mile south of I-20 and easy access from Highway 67. +/-75 parking spaces, 4.93 parking ratio. Space available on monument sign facing Cedar Ridge and façade space available for large suites. Lease rate includes utilities, maintenance and common area janitorial.
- Accès 24 heures
- Accès contrôlé
- Système de sécurité
- Affichage
- Chauffage central
- Lumière naturelle
- Éclairage encastré
- Wi-Fi
- Climatisation
Faits sur la propriété
Sélectionner des locataires
- Étage
- Nom du locataire
- Secteur
- 1ᵉʳ
- Allegiance Title Company
- Finance et assurances
- 1ᵉʳ
- Alltexas Security
- Services professionnels, scientifiques et techniques
- Inconnu
- Antonson Randall A PC
- Services professionnels, scientifiques et techniques
- 1ᵉʳ
- Emmanuel International Pardon Incorporated
- Services
- Inconnu
- Haylow Insurance Group
- Finance et assurances
- 1ᵉʳ
- Home Team Mortgage Company
- Finance et assurances
- Inconnu
- Professional Caretakers Inc
- Soins de santé et assistance sociale
- Inconnu
- Taxes On The Go
- Services professionnels, scientifiques et techniques
- Inconnu
- Treatment For You
- Soins de santé et assistance sociale
- Inconnu
- William Mote
- -
Présenté par
Americana Plaza | 515 N Cedar Ridge Dr
Hmm, il semble y avoir eu une erreur lors de l’envoi de votre message. Veuillez réessayer.
Merci! Votre message a été envoyé.




