Votre courriel a été envoyé.
Certaines informations ont été traduites automatiquement.
FAITS SAILLANTS DE L'INVESTISSEMENT
- Prime location in Cranberry Township’s business hub.
- Strong demographics and high consumer spending nearby.
- Modern construction with elevator and ADA compliance.
- Ample parking and easy access to major highways.
RÉSUMÉ DE L'ANNONCE
Cœur du canton de Cranberry
• Immeuble à bureaux de trois étages construit en 2011 :
+/- 16 869 GF
• Locataires existants à long terme - actuellement un espace
disponible à la location - 2 800 RSF
• Excellent potentiel propriétaire/utilisateur
• Situé sur 2,06 acres
• 62 places de stationnement pour véhicules
• Toit à couture métallique sur pied
• Édifice des ascenseurs - Conforme à l'ADA
• Bâtiment à aspersion
• Offert à 3 950 000$
FAITS SUR LA PROPRIÉTÉ
COMMODITÉS
- Climatisation
PRINCIPAUX LOCATAIRES
- LOCATAIRE
- SECTEUR
- pi² OCCUPÉ
- LOYER/pi²
- FIN DU BAIL
Le Happy Faces Children's Center est un centre local pour enfants et un centre d'apprentissage situé dans le canton de Cranberry. Ils sont au service de la communauté depuis plus de 15 ans. Chez Happy Faces, leur philosophie et leurs objectifs fondamentaux sont de créer un environnement d'ouverture et de coopération, de favoriser des attitudes et des pensées positives et d'assurer la sécurité et le bien-être de vos enfants. Ils croient que les enfants doivent avoir un environnement sûr et propre dans lequel ils peuvent jouer librement, communiquer avec les autres et explorer le processus d'apprentissage.
- My Best Smile PC
- Soins de santé et assistance sociale
- -
- -
- -
| LOCATAIRE | SECTEUR | pi² OCCUPÉ | LOYER/pi² | FIN DU BAIL | ||
|
Soins de santé et assistance sociale | - | - | - | ||
| My Best Smile PC | Soins de santé et assistance sociale | - | - | - |
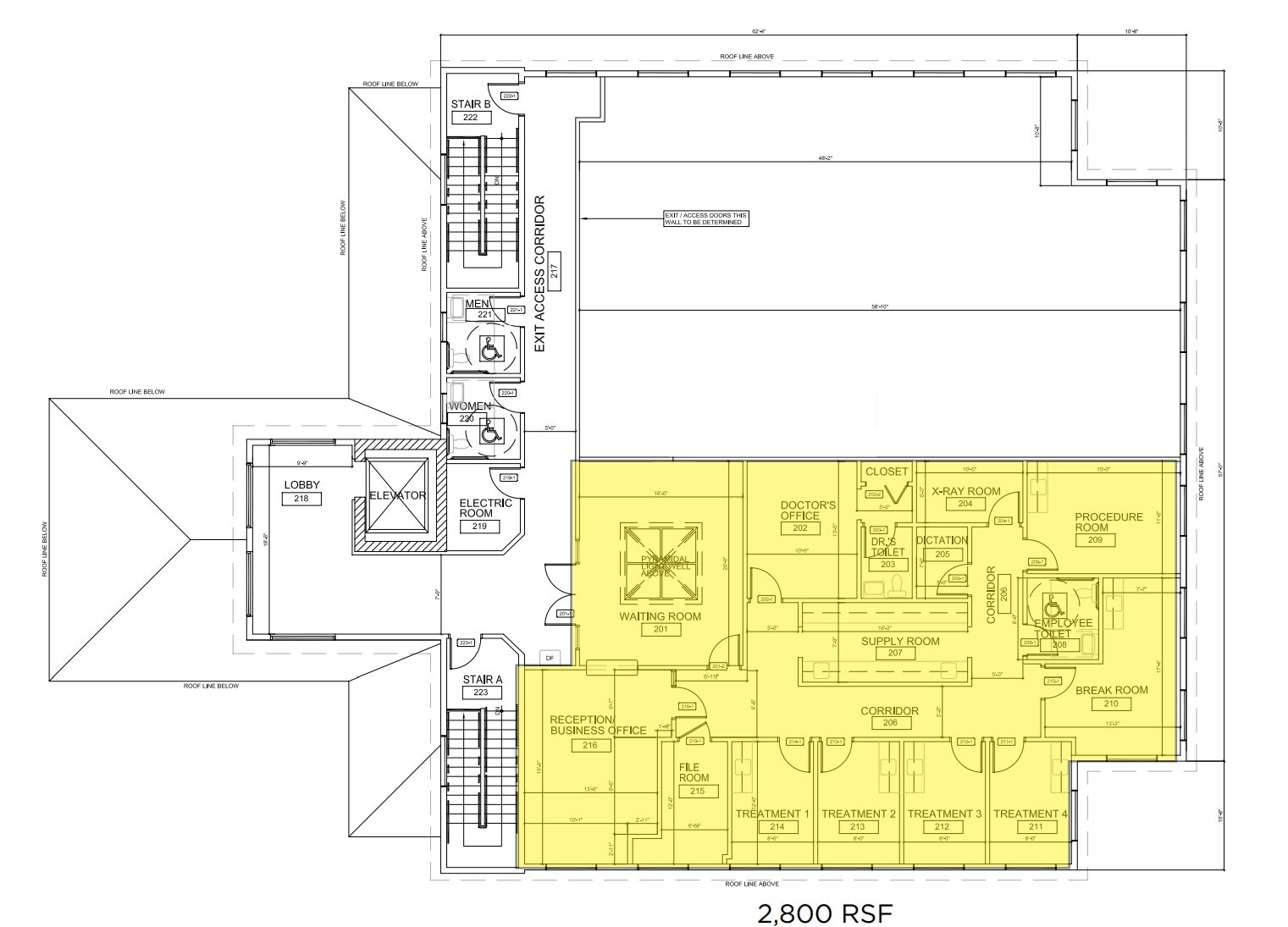
DISPONIBILITÉ DES ESPACES
- ESPACE
- TAILLE
- UTILISATION DE L’ESPACE
- ÉTAT
- DISPONIBLE
• 2 800 RSF à louer - 3e étage - 23 $/SF+ services publics • Situé sur 2,06 acres • Accès facile aux Rt 228, I-79 et PA Turnpike I-376 • 62 places de stationnement pour véhicules • Toit à couture métallique sur pied • Édifice des ascenseurs - Conforme à l'ADA • Bâtiment à aspersion • Offert à 3 950 000$ • Excellente occasion pour les propriétaires/utilisateurs
| Espace | Taille | Utilisation de l’espace | État | Disponible |
| 3e étage | 2 800 pi² | Bureau | construction partielle | Maintenant |
3e étage
| Taille |
| 2 800 pi² |
| Utilisation de l’espace |
| Bureau |
| État |
| construction partielle |
| Disponible |
| Maintenant |
3e étage
| Taille | 2 800 pi² |
| Utilisation de l’espace | Bureau |
| État | construction partielle |
| Disponible | Maintenant |
• 2 800 RSF à louer - 3e étage - 23 $/SF+ services publics • Situé sur 2,06 acres • Accès facile aux Rt 228, I-79 et PA Turnpike I-376 • 62 places de stationnement pour véhicules • Toit à couture métallique sur pied • Édifice des ascenseurs - Conforme à l'ADA • Bâtiment à aspersion • Offert à 3 950 000$ • Excellente occasion pour les propriétaires/utilisateurs
Impôts fonciers
| Numéro de lot | 010-4F35-28F-0000 | Évaluation des bâtiments | 154 207 $ CAD |
| Évaluation du terrain | 4 746 $ CAD | Évaluation totale | 158 953 $ CAD |
Impôts fonciers
Présenté par
518 Myoma Rd
Hmm, il semble y avoir eu une erreur lors de l’envoi de votre message. Veuillez réessayer.
Merci! Votre message a été envoyé.




