Votre courriel a été envoyé.
Former Community Beer Works Brewery/Tap Room 520 7th St 10 184 pi² d'espace disponible • Commerce de détail • Buffalo, NY 14201



Certaines informations ont été traduites automatiquement.
FAITS SAILLANTS
- 32 loft units
- loading dock
- outdoor space
TOUS LES ESPACES DISPONIBLES(1)
Afficher les taux de location en
- ESPACE
- TAILLE
- TERME
- TAUX DE LOCATION
- UTILISATION DE L’ESPACE
- ÉTAT
- DISPONIBLE
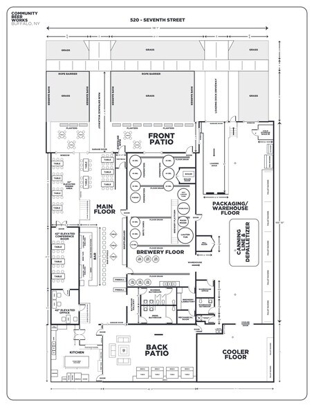
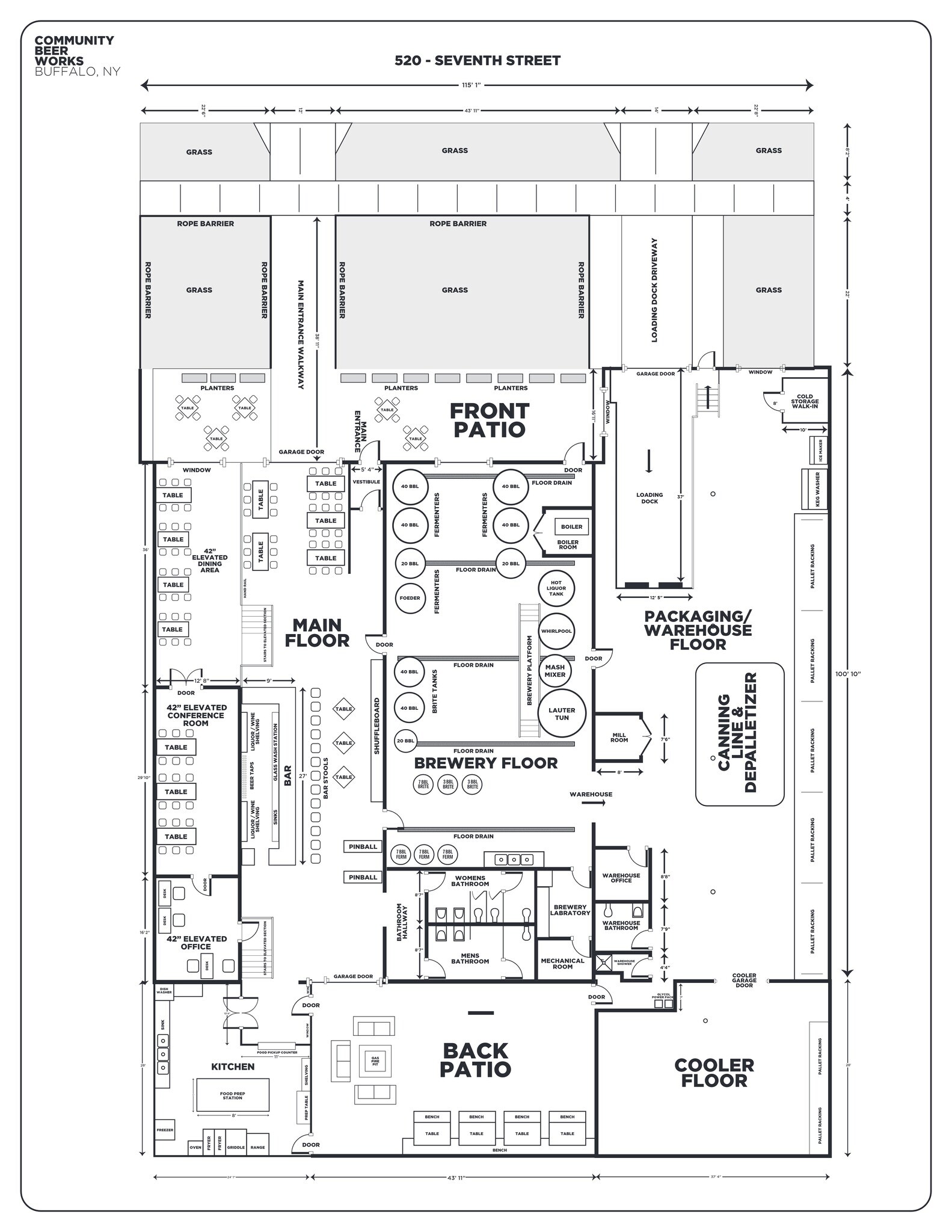
Schneider Real Estate Services is proud to present for lease an 11,379 square foot, purpose-built brewery facility within the historic Schaefer & Brother Malt House on Buffalo’s vibrant Lower West Side. Community Beer Works is consolidating operations to their Chandler Street location, opening the door for a new brewery to take over this functional space with critical infrastructure already in place. A small brewery can scale up production without major build-out costs, or the space can be divided for multiple tenants, as it offers a clear separation between warehouse/production and restaurant/taproom areas. The production wing features a 2,305 SF brew area, a 1,082 SF cooler, and a 3,838 SF warehouse with a loading dock. The hospitality side includes a 1,913 SF taproom, a 490 SF kitchen with a 12-foot hood, and a 556 SF mezzanine for offices or private parties. The property is rich with character, featuring exposed brick, large windows, and an industrial feel, plus two outdoor dining areas including a front patio and a 1,181 SF courtyard beer garden. Steeped in local history, this pre-Prohibition landmark was constructed as a malt house in 1880 and later served as the home of the Merckens Chocolate Company. The building underwent a significant rehabilitation in 2018 with all-new building systems, and redevelopment was completed in 2021 with the addition of 32 apartment units. The prime location offers exceptional neighborhood highlights including the new Ralph Wilson Park— a 100-acre waterfront park on Lake Erie currently undergoing a $110 million transformation and set to reopen next year—plus proximity to D’Youville University, Kleinhan’s Music Hall, the Peace Bridge, and Downtown Buffalo.
- Le taux inscrit peut ne pas comprendre certains services publics, les services de bâtiment et les dépenses immobilières.
- Espace en excellent état
- Connectivité Wi-Fi
- Entreposage sécurisé
- Planchers de bois franc
- Turn-key brewery operation
- Loading Dock
- 12-ft kitchen hood
- Entièrement construit comme Espace pour un restaurant ou un café
- Air central et chauffage
- Hauts plafonds
- Conforme DDA
- Cour
- Courtyard
- Front Patio
| Espace | Taille | Terme | Taux de location | Utilisation de l’espace | État | Disponible |
| 1er étage | 10 184 pi² | 3-20 ans | Sur demande Sur demande Sur demande Sur demande | Commerce de détail | construction complète | Maintenant |
1er étage
| Taille |
| 10 184 pi² |
| Terme |
| 3-20 ans |
| Taux de location |
| Sur demande Sur demande Sur demande Sur demande |
| Utilisation de l’espace |
| Commerce de détail |
| État |
| construction complète |
| Disponible |
| Maintenant |
1er étage
| Taille | 10 184 pi² |
| Terme | 3-20 ans |
| Taux de location | Sur demande |
| Utilisation de l’espace | Commerce de détail |
| État | construction complète |
| Disponible | Maintenant |
Schneider Real Estate Services is proud to present for lease an 11,379 square foot, purpose-built brewery facility within the historic Schaefer & Brother Malt House on Buffalo’s vibrant Lower West Side. Community Beer Works is consolidating operations to their Chandler Street location, opening the door for a new brewery to take over this functional space with critical infrastructure already in place. A small brewery can scale up production without major build-out costs, or the space can be divided for multiple tenants, as it offers a clear separation between warehouse/production and restaurant/taproom areas. The production wing features a 2,305 SF brew area, a 1,082 SF cooler, and a 3,838 SF warehouse with a loading dock. The hospitality side includes a 1,913 SF taproom, a 490 SF kitchen with a 12-foot hood, and a 556 SF mezzanine for offices or private parties. The property is rich with character, featuring exposed brick, large windows, and an industrial feel, plus two outdoor dining areas including a front patio and a 1,181 SF courtyard beer garden. Steeped in local history, this pre-Prohibition landmark was constructed as a malt house in 1880 and later served as the home of the Merckens Chocolate Company. The building underwent a significant rehabilitation in 2018 with all-new building systems, and redevelopment was completed in 2021 with the addition of 32 apartment units. The prime location offers exceptional neighborhood highlights including the new Ralph Wilson Park— a 100-acre waterfront park on Lake Erie currently undergoing a $110 million transformation and set to reopen next year—plus proximity to D’Youville University, Kleinhan’s Music Hall, the Peace Bridge, and Downtown Buffalo.
- Le taux inscrit peut ne pas comprendre certains services publics, les services de bâtiment et les dépenses immobilières.
- Entièrement construit comme Espace pour un restaurant ou un café
- Espace en excellent état
- Air central et chauffage
- Connectivité Wi-Fi
- Hauts plafonds
- Entreposage sécurisé
- Conforme DDA
- Planchers de bois franc
- Cour
- Turn-key brewery operation
- Courtyard
- Loading Dock
- Front Patio
- 12-ft kitchen hood
PLAN DE SITE
FAITS SUR LA PROPRIÉTÉ
| Superficie totale disponible | 10 184 pi² | Taille du bâtiment | 54 705 pi² |
| Type de propriété | Spécialité | Année de construction/rénovation | 1920/2021 |
| Superficie totale disponible | 10 184 pi² |
| Type de propriété | Spécialité |
| Taille du bâtiment | 54 705 pi² |
| Année de construction/rénovation | 1920/2021 |
À PROPOS DE LA PROPRIÉTÉ
Schneider Real Estate Services is proud to present for lease an 11,379 square foot, purpose-built brewery facility within the historic Schaefer & Brother Malt House on Buffalo’s vibrant Lower West Side. Community Beer Works is consolidating operations to their Chandler Street location, opening the door for a new brewery to take over this functional space with critical infrastructure already in place. A small brewery can scale up production without major build-out costs, or the space can be divided for multiple tenants, as it offers a clear separation between warehouse/production and restaurant/taproom areas. The production wing features a 2,305 SF brew area, a 1,082 SF cooler, and a 3,838 SF warehouse with a loading dock. The hospitality side includes a 1,913 SF taproom, a 490 SF kitchen with a 12-foot hood, and a 556 SF mezzanine for offices or private parties. The property is rich with character, featuring exposed brick, large windows, and an industrial feel, plus two outdoor dining areas including a front patio and a 1,181 SF courtyard beer garden. Steeped in local history, this pre-Prohibition landmark was constructed as a malt house in 1880 and later served as the home of the Merckens Chocolate Company. The building underwent a significant rehabilitation in 2018 with all-new building systems, and redevelopment was completed in 2021 with the addition of 32 apartment units. The prime location offers exceptional neighborhood highlights including the new Ralph Wilson Park— a 100-acre waterfront park on Lake Erie currently undergoing a $110 million transformation and set to reopen next year—plus proximity to D’Youville University, Kleinhan’s Music Hall, the Peace Bridge, and Downtown Buffalo.
CARACTÉRISTIQUES ET COMMODITÉS
- Affichage
- Climatisation
PRINCIPAUX DÉTAILLANTS À PROXIMITÉ
Présenté par
Former Community Beer Works Brewery/Tap Room | 520 7th St
Hmm, il semble y avoir eu une erreur lors de l’envoi de votre message. Veuillez réessayer.
Merci! Votre message a été envoyé.



