Se Connecter/S’inscrire
Votre courriel a été envoyé.
5215 Todd Ave Lot • Terrain commercial • 3,49 Acres • 4 160 932 $ CAD • Baltimore, MD 21206

Certaines informations ont été traduites automatiquement.
Faits saillants de l'investissement
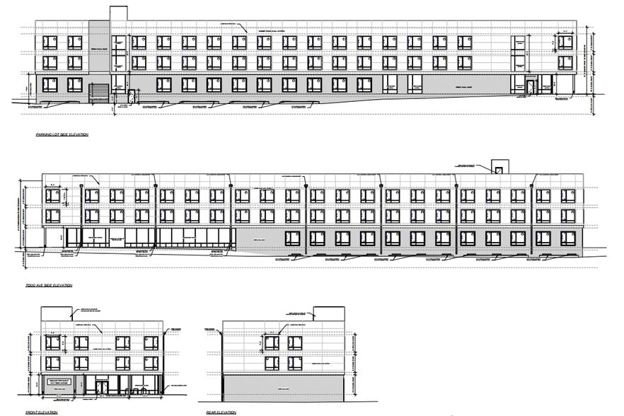
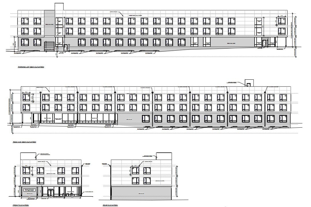
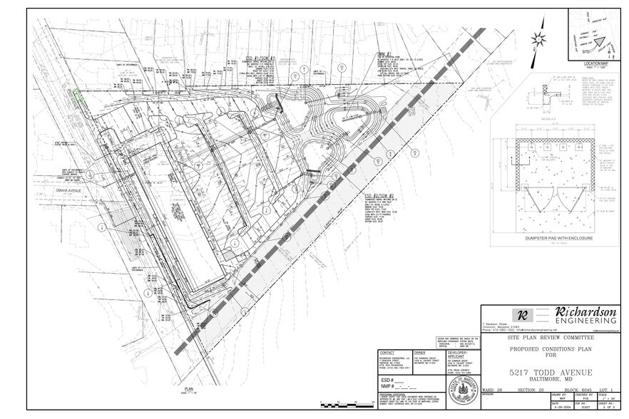
- Fully Designed and Permits Pending with Baltimore City
- Property to feature large modern lobby, 90 parking spaces, 2 elevators, and additional storage in basement
- Building Designed as 61 units - 2-studios, 53-1bd/1ba, 4-2bd/1ba, and 4 ADA compliant 1bd/1ba
Résumé de l'annonce
Now available! Permits pending for 61 unit apartment building with 90 parking spots. Full architectural design plans, engineering plans, and site plan available in documents section. Approximate building size is estimated at 61,000sqft over 3 floors above grade and 1 floor below
Bilan financier (Pro forma - 2026) |
Annuel (CAD) | Annuel par AC (CAD) |
|---|---|---|
| Revenu de location brut |
1 394 799 $
|
399 655,88 $
|
| Autres revenus |
-
|
-
|
| Perte due à l’inoccupation |
-
|
-
|
| Revenu brut effectif |
1 394 799 $
|
399 655,88 $
|
| Taxes |
170 530 $
|
48 862,47 $
|
| Dépenses d’exploitation |
272 848 $
|
78 179,95 $
|
| Total des dépenses |
443 378 $
|
127 042,41 $
|
| Revenu net d’exploitation |
951 421 $
|
272 613,47 $
|
Bilan financier (Pro forma - 2026)
| Revenu de location brut (CAD) | |
|---|---|
| Annuel | 1 394 799 $ |
| Annuel par AC | 399 655,88 $ |
| Autres revenus (CAD) | |
|---|---|
| Annuel | - |
| Annuel par AC | - |
| Perte due à l’inoccupation (CAD) | |
|---|---|
| Annuel | - |
| Annuel par AC | - |
| Revenu brut effectif (CAD) | |
|---|---|
| Annuel | 1 394 799 $ |
| Annuel par AC | 399 655,88 $ |
| Taxes (CAD) | |
|---|---|
| Annuel | 170 530 $ |
| Annuel par AC | 48 862,47 $ |
| Dépenses d’exploitation (CAD) | |
|---|---|
| Annuel | 272 848 $ |
| Annuel par AC | 78 179,95 $ |
| Total des dépenses (CAD) | |
|---|---|
| Annuel | 443 378 $ |
| Annuel par AC | 127 042,41 $ |
| Revenu net d’exploitation (CAD) | |
|---|---|
| Annuel | 951 421 $ |
| Annuel par AC | 272 613,47 $ |
Faits sur la propriété
| Prix | 4 160 932 $ CAD | Type de propriété | Terrain |
| Type de vente | Investissement | Sous-type de propriété | Terrain commercial |
| Condition de vente | Projet de redéveloppement | Utilisation proposée | Unités d’appartements |
| Nombre de lots | 1 | Taille totale du lot | 3,49 AC |
| Zonage | R-5 | ||
| Prix | 4 160 932 $ CAD |
| Type de vente | Investissement |
| Condition de vente | Projet de redéveloppement |
| Nombre de lots | 1 |
| Type de propriété | Terrain |
| Sous-type de propriété | Terrain commercial |
| Utilisation proposée | Unités d’appartements |
| Taille totale du lot | 3,49 AC |
| Zonage | R-5 |
1 Lot disponible
Lot
| Prix | 4 160 932 $ CAD | Taille du lot | 3,49 AC |
| Prix par AC | 1 192 244,17 $ CAD |
| Prix | 4 160 932 $ CAD |
| Prix par AC | 1 192 244,17 $ CAD |
| Taille du lot | 3,49 AC |
Addresses 5215 and 5217 have been consolidated with Baltimore City and now represent +/- 3.4990 ac in total.
1 1
Moyennement praticable à pied
60/100
Très facile d’accès en voiture
80/100
Transports en commun limités
30/100
Plutôt praticable en vélo
50/100
1 de 2
Vidéos
Visite extérieure 3D Matterport
Visite 3D Matterport
Photos
Vue depuis la rue
Rue
Carte
1 de 1
Présenté par
5215 Todd Ave
Vous êtes déjà membre? Connectez-vous
Hmm, il semble y avoir eu une erreur lors de l’envoi de votre message. Veuillez réessayer.
Merci! Votre message a été envoyé.
