Votre courriel a été envoyé.
525 Junction Rd 641–84 164 pi² d'espace disponible • Bureau • Madison, WI 53717



Certaines informations ont été traduites automatiquement.
Faits saillants
- Des tonnes de bureaux privés !
Tous les espaces disponibles(6)
Afficher les taux de location en
- Espace
- Taille
- Terme
- Taux de location
- Utilisation de l’espace
- État
- Disponible
This space is in the main lobby at City Center West and customize the space with your own design team or our expert in-house professionals. Artis REIT’s local team provides 24/7 maintenance and security. Building signage available Located on Madison’s west side with Walk/Bike Scores of 63 and 61, the property offers easy access to dining, retail, fitness, and major roadways. On-site amenities include covered parking, café and lounge, boardroom, conference center, free fitness center with showers, wellness rooms, and outdoor plaza. Schedule a tour today to experience City Center West.
- Le taux de location ne comprend pas les services publics, les services de bâtiment ou les dépenses immobilières.
- Convient pour 56 à 178 personnes
Amazing space with tons of private offices and conferencing facilities!
- Le taux de location ne comprend pas les services publics, les services de bâtiment ou les dépenses immobilières.
- Convient pour 15 à 46 personnes
- 1 salle de conférence
- Connectivité Wi-Fi
- Entièrement construit comme Bureau standard
- 12 bureaux privés
- Espace en excellent état
- Système de sécurité
Trophy space located on the lobby on the 6h floor which includes a private balcony. Located just blocks from the West Beltline Highway 12/14 with quick access to the west and southern suburbs. Amenities include: on-site conference center, board room, full-service cafe serving breakfast and lunch, no-fee fitness center, wellness rooms, security card access, fiber optics and large covered parking ramp. Our professional property management takes care of all your building needs. We also offer on-site maintenance staff and 24/7 emergency maintenance services includes a private balcony.
- Le taux de location ne comprend pas les services publics, les services de bâtiment ou les dépenses immobilières.
- Disposition du plan d’étage ouverte en général
- Plafonds finis: 10’
- Connectivité Wi-Fi
- Service d'alimentation
- Entièrement construit comme Bureau standard
- Convient pour 23 à 72 personnes
- Espace en excellent état
- Système de sécurité
Amazing fully built out office suite ready to go! Tons of amenities! Please inquire for more information!
- Le taux de location ne comprend pas les services publics, les services de bâtiment ou les dépenses immobilières.
- Disposition du plan d’étage ouverte
- Espace en excellent état
- Air central et chauffage
- Entièrement construit comme Bureau standard
- Convient pour 59 à 188 personnes
- Peut être associé à un ou plusieurs espaces supplémentaires pour obtenir jusqu’à 46 743 pi² d’espace adjacent.
Amazing office space for lease! Fully built out and ready for immediate use!
- Le taux de location ne comprend pas les services publics, les services de bâtiment ou les dépenses immobilières.
- Disposition du plan d’étage ouverte en général
- Espace en excellent état
- Air central et chauffage
- Entièrement construit comme Bureau standard
- Convient pour 59 à 187 personnes
- Peut être associé à un ou plusieurs espaces supplémentaires pour obtenir jusqu’à 46 743 pi² d’espace adjacent.
Amazing private office space available for lease
- Le taux de location ne comprend pas les services publics, les services de bâtiment ou les dépenses immobilières.
- Convient pour 2 à 6 personnes
- Espace en excellent état
- Système de sécurité
- Entièrement construit comme Bureau standard
- 1 bureau privé
- Connectivité Wi-Fi
| Espace | Taille | Terme | Taux de location | Utilisation de l’espace | État | Disponible |
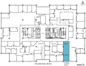
| 2e étage, ste 2000 | 22 153 pi² | Négociable | 23,20 $ CAD/pi²/an 1,93 $ CAD/pi²/mois 513 872 $ CAD/an 42 823 $ CAD/mois | Bureau | - | Maintenant |
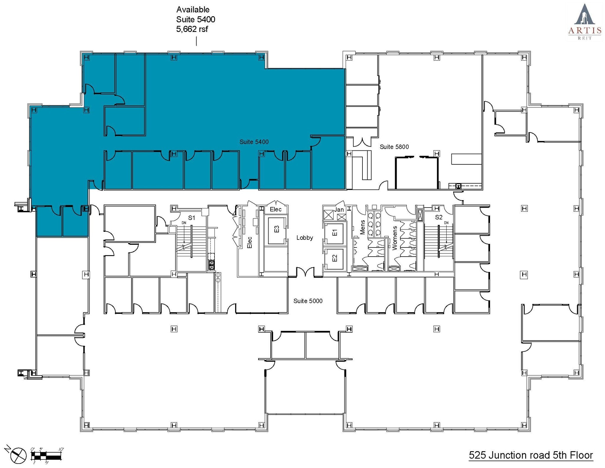
| 5e étage, ste 5400 | 5 662 pi² | 5-10 ans | 24,56 $ CAD/pi²/an 2,05 $ CAD/pi²/mois 139 064 $ CAD/an 11 589 $ CAD/mois | Bureau | construction complète | Maintenant |
| 6e étage, ste 6800 | 8 965 pi² | 5-10 ans | 24,56 $ CAD/pi²/an 2,05 $ CAD/pi²/mois 220 189 $ CAD/an 18 349 $ CAD/mois | Bureau | construction complète | Maintenant |
| 7e étage, ste 700: North Tower | 23 390 pi² | 5-10 ans | 24,56 $ CAD/pi²/an 2,05 $ CAD/pi²/mois 574 482 $ CAD/an 47 873 $ CAD/mois | Bureau | construction complète | Maintenant |
| 7e étage, ste 7500: South Tower | 23 353 pi² | 5-10 ans | 24,56 $ CAD/pi²/an 2,05 $ CAD/pi²/mois 573 573 $ CAD/an 47 798 $ CAD/mois | Bureau | construction complète | Maintenant |
| 8e étage, ste 8600 | 641 pi² | 5-10 ans | 27,29 $ CAD/pi²/an 2,27 $ CAD/pi²/mois 17 493 $ CAD/an 1 458 $ CAD/mois | Bureau | construction complète | Maintenant |
2e étage, ste 2000
| Taille |
| 22 153 pi² |
| Terme |
| Négociable |
| Taux de location |
| 23,20 $ CAD/pi²/an 1,93 $ CAD/pi²/mois 513 872 $ CAD/an 42 823 $ CAD/mois |
| Utilisation de l’espace |
| Bureau |
| État |
| - |
| Disponible |
| Maintenant |
5e étage, ste 5400
| Taille |
| 5 662 pi² |
| Terme |
| 5-10 ans |
| Taux de location |
| 24,56 $ CAD/pi²/an 2,05 $ CAD/pi²/mois 139 064 $ CAD/an 11 589 $ CAD/mois |
| Utilisation de l’espace |
| Bureau |
| État |
| construction complète |
| Disponible |
| Maintenant |
6e étage, ste 6800
| Taille |
| 8 965 pi² |
| Terme |
| 5-10 ans |
| Taux de location |
| 24,56 $ CAD/pi²/an 2,05 $ CAD/pi²/mois 220 189 $ CAD/an 18 349 $ CAD/mois |
| Utilisation de l’espace |
| Bureau |
| État |
| construction complète |
| Disponible |
| Maintenant |
7e étage, ste 700: North Tower
| Taille |
| 23 390 pi² |
| Terme |
| 5-10 ans |
| Taux de location |
| 24,56 $ CAD/pi²/an 2,05 $ CAD/pi²/mois 574 482 $ CAD/an 47 873 $ CAD/mois |
| Utilisation de l’espace |
| Bureau |
| État |
| construction complète |
| Disponible |
| Maintenant |
7e étage, ste 7500: South Tower
| Taille |
| 23 353 pi² |
| Terme |
| 5-10 ans |
| Taux de location |
| 24,56 $ CAD/pi²/an 2,05 $ CAD/pi²/mois 573 573 $ CAD/an 47 798 $ CAD/mois |
| Utilisation de l’espace |
| Bureau |
| État |
| construction complète |
| Disponible |
| Maintenant |
8e étage, ste 8600
| Taille |
| 641 pi² |
| Terme |
| 5-10 ans |
| Taux de location |
| 27,29 $ CAD/pi²/an 2,27 $ CAD/pi²/mois 17 493 $ CAD/an 1 458 $ CAD/mois |
| Utilisation de l’espace |
| Bureau |
| État |
| construction complète |
| Disponible |
| Maintenant |
2e étage, ste 2000
| Taille | 22 153 pi² |
| Terme | Négociable |
| Taux de location | 23,20 $ CAD/pi²/an |
| Utilisation de l’espace | Bureau |
| État | - |
| Disponible | Maintenant |
This space is in the main lobby at City Center West and customize the space with your own design team or our expert in-house professionals. Artis REIT’s local team provides 24/7 maintenance and security. Building signage available Located on Madison’s west side with Walk/Bike Scores of 63 and 61, the property offers easy access to dining, retail, fitness, and major roadways. On-site amenities include covered parking, café and lounge, boardroom, conference center, free fitness center with showers, wellness rooms, and outdoor plaza. Schedule a tour today to experience City Center West.
- Le taux de location ne comprend pas les services publics, les services de bâtiment ou les dépenses immobilières.
- Convient pour 56 à 178 personnes
5e étage, ste 5400
| Taille | 5 662 pi² |
| Terme | 5-10 ans |
| Taux de location | 24,56 $ CAD/pi²/an |
| Utilisation de l’espace | Bureau |
| État | construction complète |
| Disponible | Maintenant |
Amazing space with tons of private offices and conferencing facilities!
- Le taux de location ne comprend pas les services publics, les services de bâtiment ou les dépenses immobilières.
- Entièrement construit comme Bureau standard
- Convient pour 15 à 46 personnes
- 12 bureaux privés
- 1 salle de conférence
- Espace en excellent état
- Connectivité Wi-Fi
- Système de sécurité
6e étage, ste 6800
| Taille | 8 965 pi² |
| Terme | 5-10 ans |
| Taux de location | 24,56 $ CAD/pi²/an |
| Utilisation de l’espace | Bureau |
| État | construction complète |
| Disponible | Maintenant |
Trophy space located on the lobby on the 6h floor which includes a private balcony. Located just blocks from the West Beltline Highway 12/14 with quick access to the west and southern suburbs. Amenities include: on-site conference center, board room, full-service cafe serving breakfast and lunch, no-fee fitness center, wellness rooms, security card access, fiber optics and large covered parking ramp. Our professional property management takes care of all your building needs. We also offer on-site maintenance staff and 24/7 emergency maintenance services includes a private balcony.
- Le taux de location ne comprend pas les services publics, les services de bâtiment ou les dépenses immobilières.
- Entièrement construit comme Bureau standard
- Disposition du plan d’étage ouverte en général
- Convient pour 23 à 72 personnes
- Plafonds finis: 10’
- Espace en excellent état
- Connectivité Wi-Fi
- Système de sécurité
- Service d'alimentation
7e étage, ste 700: North Tower
| Taille | 23 390 pi² |
| Terme | 5-10 ans |
| Taux de location | 24,56 $ CAD/pi²/an |
| Utilisation de l’espace | Bureau |
| État | construction complète |
| Disponible | Maintenant |
Amazing fully built out office suite ready to go! Tons of amenities! Please inquire for more information!
- Le taux de location ne comprend pas les services publics, les services de bâtiment ou les dépenses immobilières.
- Entièrement construit comme Bureau standard
- Disposition du plan d’étage ouverte
- Convient pour 59 à 188 personnes
- Espace en excellent état
- Peut être associé à un ou plusieurs espaces supplémentaires pour obtenir jusqu’à 46 743 pi² d’espace adjacent.
- Air central et chauffage
7e étage, ste 7500: South Tower
| Taille | 23 353 pi² |
| Terme | 5-10 ans |
| Taux de location | 24,56 $ CAD/pi²/an |
| Utilisation de l’espace | Bureau |
| État | construction complète |
| Disponible | Maintenant |
Amazing office space for lease! Fully built out and ready for immediate use!
- Le taux de location ne comprend pas les services publics, les services de bâtiment ou les dépenses immobilières.
- Entièrement construit comme Bureau standard
- Disposition du plan d’étage ouverte en général
- Convient pour 59 à 187 personnes
- Espace en excellent état
- Peut être associé à un ou plusieurs espaces supplémentaires pour obtenir jusqu’à 46 743 pi² d’espace adjacent.
- Air central et chauffage
8e étage, ste 8600
| Taille | 641 pi² |
| Terme | 5-10 ans |
| Taux de location | 27,29 $ CAD/pi²/an |
| Utilisation de l’espace | Bureau |
| État | construction complète |
| Disponible | Maintenant |
Amazing private office space available for lease
- Le taux de location ne comprend pas les services publics, les services de bâtiment ou les dépenses immobilières.
- Entièrement construit comme Bureau standard
- Convient pour 2 à 6 personnes
- 1 bureau privé
- Espace en excellent état
- Connectivité Wi-Fi
- Système de sécurité
Aperçu de la propriété
Ajout d'un simulateur de salon de golf en 2023 ! Offrez un prestige instantané à votre entreprise dans notre édifice City Center West. Cette propriété offre un accès facile et une visibilité à partir de l'Hwy. 12/18. Restaurants, commerces de détail et hôtels à distance de marche dans cet emplacement dynamique du côté ouest. Les locataires ont accès à un centre de conférence de 120 personnes sur place, à une salle de conférence, à un centre de conditionnement physique sans frais, à une cafétéria à service complet, à des salles de bien-être et à un parking couvert.
- Accès 24 heures
- Atrium
- Ligne d'autobus
- Accès contrôlé
- Installations de conférences
- Cour
- Centre de conditionnement physique
- Service d'alimentation
Faits sur la propriété
Présenté par
525 Junction Rd
Hmm, il semble y avoir eu une erreur lors de l’envoi de votre message. Veuillez réessayer.
Merci! Votre message a été envoyé.











