Se Connecter/S’inscrire
Votre courriel a été envoyé.
525 Lovers Ln
Bowling Green, KY 42103
Shoppes At The Hub · Commerce de détail Propriété À louer
·
1 250 pi²


Certaines informations ont été traduites automatiquement.
Faits saillants
- Great location
Faits sur la propriété
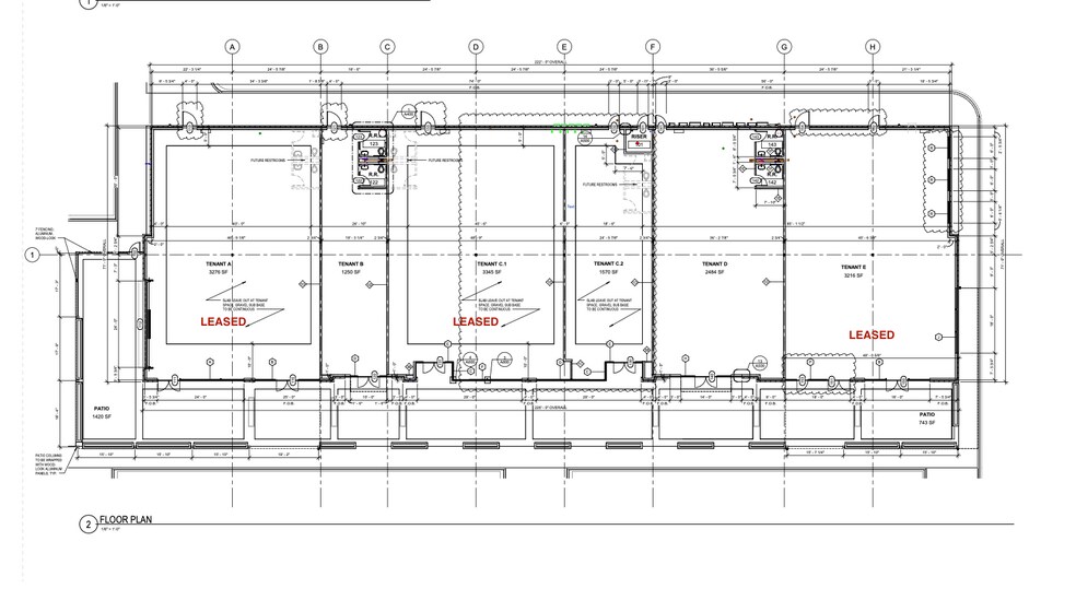
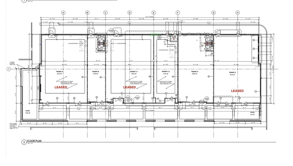
| Superficie totale disponible | 1 250 pi² | Superficie commerciale brute | 15 108 pi² |
| Type de propriété | Commerce de détail | Année de construction | 2025 |
| Sous-type de propriété | Bien à usage mixte |
| Superficie totale disponible | 1 250 pi² |
| Type de propriété | Commerce de détail |
| Sous-type de propriété | Bien à usage mixte |
| Superficie commerciale brute | 15 108 pi² |
| Année de construction | 2025 |
À propos de la propriété
Situé sur environ 4 acres, The Shoppes at The Hub est la plus récente édition de la scène de vente au détail de Bowling Green, KY. Le Shoppes at The Hub est composé d'un immeuble à locataires multiples de 15 108 pieds carrés et d'un restaurant indépendant, et est situé en face des suites Embassy at THE HUB sur Lovers Lane.
- Climatisation
1 de 9
Vidéos
Visite extérieure 3D Matterport
Visite 3D Matterport
Photos
Vue depuis la rue
Rue
Carte
