Se Connecter/S’inscrire
Votre courriel a été envoyé.
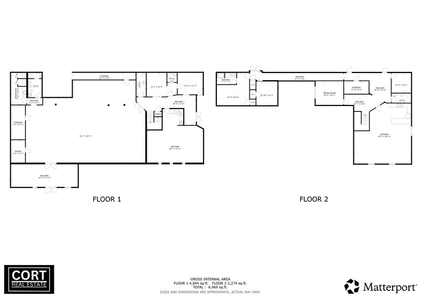
530 Benham St - Bonne Terre Church Immeuble de 7 680 pi² • Spécialité • À vendre 646 242 $ CAD • Bonne Terre, MO 63628



Certaines informations ont été traduites automatiquement.
Résumé de l'annonce
Large church building in excellent location on a very busy street. Approximately 1.44 acres m/l with 7680 sq ft bldg. and large parking lot. Building features sanctuary with vaulted ceiling and stage, multiple offices, classrooms, kitchen area, banquet area and multiple bathrooms. Side entry has covered drop off area. Building is in great condition and would lend itself to many other uses
Faits sur la propriété
| Prix | 646 242 $ CAD | Taille du lot | 1,30 AC |
| Prix par pi² | 84,15 $ CAD | Taille du bâtiment | 7 680 pi² |
| Type de vente | Investissement ou propriétaire utilisateur | Nombre d’étages | 2 |
| Type de propriété | Spécialité | Année de construction | 1984 |
| Classe d’immeuble | B | Ratio de stationnement | 8,33/1 000 pi² |
| Prix | 646 242 $ CAD |
| Prix par pi² | 84,15 $ CAD |
| Type de vente | Investissement ou propriétaire utilisateur |
| Type de propriété | Spécialité |
| Classe d’immeuble | B |
| Taille du lot | 1,30 AC |
| Taille du bâtiment | 7 680 pi² |
| Nombre d’étages | 2 |
| Année de construction | 1984 |
| Ratio de stationnement | 8,33/1 000 pi² |
1 1
Plutôt praticable à pied
30/100
Exceptionnellement facile d’accès en voiture
100/100
Assez praticable en vélo
20/100
Impôts fonciers
| Numéro de lot | 07-60-13-02-010-0002.00 | Évaluation des bâtiments | 249 615 $ CAD |
| Évaluation du terrain | 72 284 $ CAD | Évaluation totale | 321 900 $ CAD |
Impôts fonciers
Numéro de lot
07-60-13-02-010-0002.00
Évaluation du terrain
72 284 $ CAD
Évaluation des bâtiments
249 615 $ CAD
Évaluation totale
321 900 $ CAD
1 de 22
Vidéos
Visite extérieure 3D Matterport
Visite 3D Matterport
Photos
Vue depuis la rue
Rue
Carte
1 de 1
Présenté par
530 Benham St - Bonne Terre Church
Vous êtes déjà membre? Connectez-vous
Hmm, il semble y avoir eu une erreur lors de l’envoi de votre message. Veuillez réessayer.
Merci! Votre message a été envoyé.
