Votre courriel a été envoyé.
530 Highway 33 - Market-Driven / Call for Offers Lot • Terrain industriel • 43,38 Acres • Millstone Township, NJ 08535



Certaines informations ont été traduites automatiquement.
Faits saillants de l'investissement
- Final site plan approvals in place – no entitlement risk
- Flexible single- or multi-tenant development design
- Suitable for institutional, regional, or owner-user buyers
- Large-scale, infill-capable industrial site in a supply-constrained market
- Central New Jersey location with superior port and highway connectivity
Résumé de l'annonce
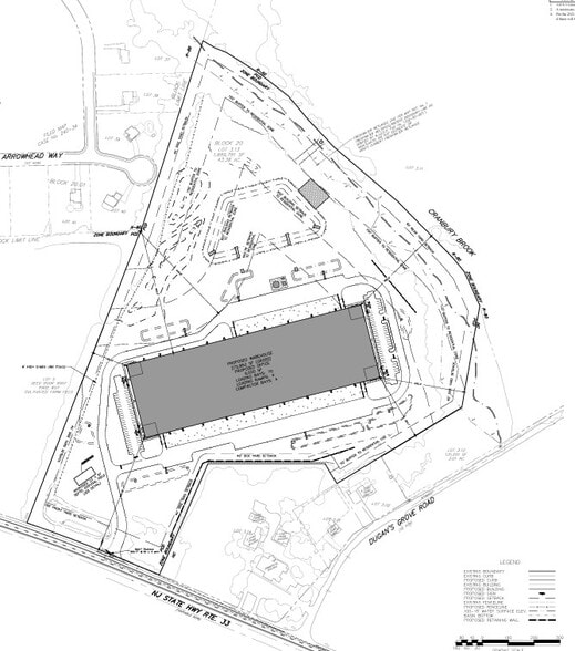
The property benefits from complete final municipal site plan approvals for a ±272,852 SF logistics / distribution facility, offering buyers the ability to bypass entitlement risk and accelerate development timelines. Strategically located in Central New Jersey, the site sits midway between the Newark/Elizabeth and Philadelphia/Wilmington port markets and provides access to approximately 30 million consumers within a 100-mile radius.
This offering is ideally suited for institutional developers, regional operators, or owner-users seeking scale, approvals, and proximity to major transportation infrastructure.
Approved Development Program
- Total Site Area: ±43.38 Acres
- Approved Building Size: ±272,852 SF
±265,652 SF Warehouse ±7,200 SF Office
- Height: 30’ Exterior
- Configuration: Single-tenant or up to three (3) tenants
Loading:
- 70 Dock-High Doors
- 4 Loading Ramps
- 4 Compactor Bays
- Parking: 116 Total Spaces
60 Warehouse 56 Office
Investment Highlights
- Final site plan approvals in place – no entitlement risk
- Large-scale, infill-capable industrial site in a supply-constrained market
- Flexible single- or multi-tenant development design
- Previously developed site
- Central New Jersey location with superior port and highway connectivity
- Suitable for institutional, regional, or owner-user buyers
Transaction Details
- Price: Make Offer
- Sale Type: Investment or Owner-User
Seller Preference:
- Clean offers with no subject-to contingencies
- 30–45 day due diligence period
– 30 day closing
Salle de données Cliquez ici pour accéder à
Faits sur la propriété
1 Lot disponible
Lot Lot 3.13
| Taille du lot | 43,38 AC |
| Taille du lot | 43,38 AC |
Centrally positioned between two major port hubs: - Port of Newark / Elizabeth & Philadelphia / Wilmington Direct access to regional and interstate transportation corridors: - NJ Turnpike. U.S. Routes 1 & 9, GSP ±30 million people w/i 100 miles
Description
Positionné au centre entre deux grands centres portuaires : Port de Newark / Elizabeth Ports de Philadelphie / Wilmington Accès direct aux corridors de transport régionaux et interétatiques : New Jersey Turnpike Routes américaines 1 & 9 Garden State Parkway Atlantic City Expressway Accès à ±30 millions de personnes dans un rayon de 100 miles
Impôts fonciers
| Numéro de lot | 33-00020-0000-00003-13 | Évaluation des bâtiments | 3 083 485 $ CAD |
| Évaluation du terrain | 1 097 356 $ CAD | Évaluation totale | 4 180 841 $ CAD |
Impôts fonciers
Présenté par
530 Highway 33 - Market-Driven / Call for Offers
Hmm, il semble y avoir eu une erreur lors de l’envoi de votre message. Veuillez réessayer.
Merci! Votre message a été envoyé.
