Votre courriel a été envoyé.
5304 Derry Ave 155–2 432 pi² d'espace disponible • Agoura Hills, CA 91301



Certaines informations ont été traduites automatiquement.
Tous les espaces disponibles(2)
Afficher les taux de location en
- Espace
- Taille
- Terme
- Taux de location
- Utilisation de l’espace
- Aménagement
- Disponible
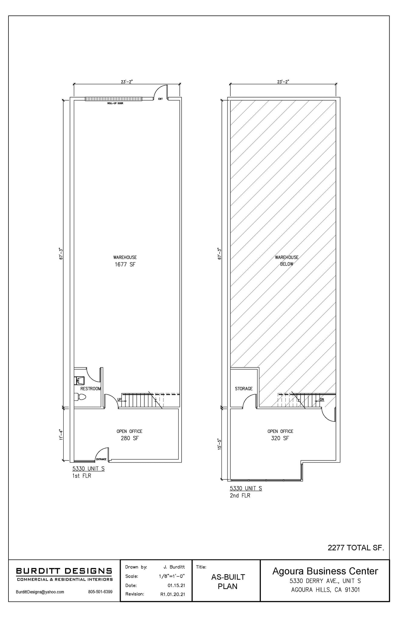
NNN, 20% Office/80% Warehouse: Provided as a shell for the tenant to develop for their unique use. 18' Ceilings in Warehouse; 12'x10' Roll Up Door; Dry Kitchen; Insulated Warehouse Ceiling; Skylight; HVAC for Office Area Only; 24/7 Access.
- Le taux de location ne comprend pas les services publics, les services de bâtiment ou les dépenses immobilières.
- Climatisation centrale
- Clé en main
- Lumière naturelle
- A 12-foot by 10-foot roll-up door
- HVAC service is provided to the office area only
- The property offers 24/7 access
- Comprend 600 pi² d’espace de bureau dédié
- Salle de bains privée
- Éclairage encastré
- The unit is delivered in shell condition
- The space includes a dry kitchen
- The warehouse ceiling is fully insulated
1st floor, Single, small office; no Windows. Perfect for storage, quiet place to study. Restroom in Common Area. 24/7 Access.
- Le taux comprend les services publics, les services de bâtiment et les dépenses immobilières.
- Disposition du plan d’étage ouverte
- Espace en excellent état
- Climatisation centrale
- Single, small private office.
- The property offers 24/7 access
- Entièrement construit comme Bureau standard
- Convient pour 1 personne
- Clé en main
- Espace en coin
- A restroom is available in the common area
| Espace | Taille | Terme | Taux de location | Utilisation de l’espace | Aménagement | Disponible |
| 1er étage | 2 277 pi² | 2-5 ans | 23,18 $ CAD/pi²/an 1,93 $ CAD/pi²/mois 52 786 $ CAD/an 4 399 $ CAD/mois | Industriel | espace cloisonné | Maintenant |
| 1er étage, ste 5308-L100 | 155 pi² | 1 an | 41,40 $ CAD/pi²/an 3,45 $ CAD/pi²/mois 6 417 $ CAD/an 534,71 $ CAD/mois | Bureau | construction complète | Maintenant |
1er étage
| Taille |
| 2 277 pi² |
| Terme |
| 2-5 ans |
| Taux de location |
| 23,18 $ CAD/pi²/an 1,93 $ CAD/pi²/mois 52 786 $ CAD/an 4 399 $ CAD/mois |
| Utilisation de l’espace |
| Industriel |
| Aménagement |
| espace cloisonné |
| Disponible |
| Maintenant |
1er étage, ste 5308-L100
| Taille |
| 155 pi² |
| Terme |
| 1 an |
| Taux de location |
| 41,40 $ CAD/pi²/an 3,45 $ CAD/pi²/mois 6 417 $ CAD/an 534,71 $ CAD/mois |
| Utilisation de l’espace |
| Bureau |
| Aménagement |
| construction complète |
| Disponible |
| Maintenant |
1er étage
| Taille | 2 277 pi² |
| Terme | 2-5 ans |
| Taux de location | 23,18 $ CAD/pi²/an |
| Utilisation de l’espace | Industriel |
| Aménagement | espace cloisonné |
| Disponible | Maintenant |
NNN, 20% Office/80% Warehouse: Provided as a shell for the tenant to develop for their unique use. 18' Ceilings in Warehouse; 12'x10' Roll Up Door; Dry Kitchen; Insulated Warehouse Ceiling; Skylight; HVAC for Office Area Only; 24/7 Access.
- Le taux de location ne comprend pas les services publics, les services de bâtiment ou les dépenses immobilières.
- Comprend 600 pi² d’espace de bureau dédié
- Climatisation centrale
- Salle de bains privée
- Clé en main
- Éclairage encastré
- Lumière naturelle
- The unit is delivered in shell condition
- A 12-foot by 10-foot roll-up door
- The space includes a dry kitchen
- HVAC service is provided to the office area only
- The warehouse ceiling is fully insulated
- The property offers 24/7 access
1er étage, ste 5308-L100
| Taille | 155 pi² |
| Terme | 1 an |
| Taux de location | 41,40 $ CAD/pi²/an |
| Utilisation de l’espace | Bureau |
| Aménagement | construction complète |
| Disponible | Maintenant |
1st floor, Single, small office; no Windows. Perfect for storage, quiet place to study. Restroom in Common Area. 24/7 Access.
- Le taux comprend les services publics, les services de bâtiment et les dépenses immobilières.
- Entièrement construit comme Bureau standard
- Disposition du plan d’étage ouverte
- Convient pour 1 personne
- Espace en excellent état
- Clé en main
- Climatisation centrale
- Espace en coin
- Single, small private office.
- A restroom is available in the common area
- The property offers 24/7 access
Aperçu de la propriété
Parfaitement situé à Malibu, Westlake, Moorpark, Ventura et Woodland Hills and the Valley, l'Agoura Business Center, situé à la sortie de l'autoroute 101, est un incontournable des collines Agoura depuis les années 1980. Les unités vont de 1 800 à 3 600 pi2 avec possibilité de doubles. L'espace typique est constitué de plafonds d'entrepôt de 2 277 pi2 de 18 pi à 22 pi
Faits sur l’installation Industriel
Sélectionner des locataires
- Barefoot Dreams
- Monarchs Gymnastics
- MSB Disaster Recovery Services
- RAD Dance Studio
- Together We Thrive Foundation
Présenté par
Agoura Business Center LLC
5304 Derry Ave
Hmm, il semble y avoir eu une erreur lors de l’envoi de votre message. Veuillez réessayer.
Merci! Votre message a été envoyé.



