Votre courriel a été envoyé.
Certaines informations ont été traduites automatiquement.
Faits saillants
- Excellent access to 57, 60, and 91 Freeways
Caractéristiques
Tous les espaces disponibles(1)
Afficher les taux de location en
- Espace
- Taille
- Terme
- Taux de location
- Utilisation de l’espace
- Aménagement
- Disponible
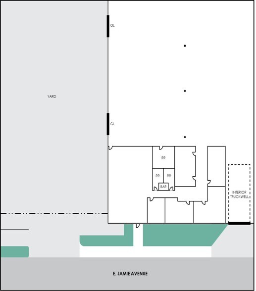
Position your business for success at 531 E. Jamie Avenue, a highly functional freestanding industrial building in the thriving La Habra submarket. This 10,800-square-foot property combines efficient warehouse space with 2,500 square feet of office, creating an ideal environment for distribution, light manufacturing, or service operations. The building features a dock-high loading door, two ground-level doors (12’x12’ and 12’x14’), and a large fenced concrete yard, ensuring smooth logistics and secure outdoor storage. Inside, skylights provide natural light, while office and warehouse restrooms enhance convenience for staff. The property offers 16-foot minimum clearance height, 400 amps of power (verify), and concrete tilt-up construction for durability. Located on a 0.47-acre parcel, this site delivers excellent functionality and flexibility for a range of industrial users. Strategically positioned near the 57 Freeway, with quick access to major routes including the 60, 91, and 39, the property connects you to Orange County and Greater Los Angeles markets. Surrounding communities such as Brea, Fullerton, and Whittier provide a strong labor pool and customer base. This location offers proximity to retail amenities, residential neighborhoods, and key business corridors, making it a prime choice for companies seeking operational efficiency and regional reach.
- Le taux inscrit peut ne pas comprendre certains services publics, les services de bâtiment et les dépenses immobilières.
- 2 accès plain-pied
- 1 quai de chargement
- Freestanding industrial building with fenced yard
- 16-foot minimum clearance and skylights
- Comprend 2 500 pi² d’espace de bureau dédié
- Espace en excellent état
- Salle de bains privée
- Dock-high loading plus two ground-level doors
| Espace | Taille | Terme | Taux de location | Utilisation de l’espace | Aménagement | Disponible |
| 1er étage | 10 800 pi² | Négociable | 25,63 $ CAD/pi²/an 2,14 $ CAD/pi²/mois 276 809 $ CAD/an 23 067 $ CAD/mois | Industriel | construction complète | Maintenant |
1er étage
| Taille |
| 10 800 pi² |
| Terme |
| Négociable |
| Taux de location |
| 25,63 $ CAD/pi²/an 2,14 $ CAD/pi²/mois 276 809 $ CAD/an 23 067 $ CAD/mois |
| Utilisation de l’espace |
| Industriel |
| Aménagement |
| construction complète |
| Disponible |
| Maintenant |
1er étage
| Taille | 10 800 pi² |
| Terme | Négociable |
| Taux de location | 25,63 $ CAD/pi²/an |
| Utilisation de l’espace | Industriel |
| Aménagement | construction complète |
| Disponible | Maintenant |
Position your business for success at 531 E. Jamie Avenue, a highly functional freestanding industrial building in the thriving La Habra submarket. This 10,800-square-foot property combines efficient warehouse space with 2,500 square feet of office, creating an ideal environment for distribution, light manufacturing, or service operations. The building features a dock-high loading door, two ground-level doors (12’x12’ and 12’x14’), and a large fenced concrete yard, ensuring smooth logistics and secure outdoor storage. Inside, skylights provide natural light, while office and warehouse restrooms enhance convenience for staff. The property offers 16-foot minimum clearance height, 400 amps of power (verify), and concrete tilt-up construction for durability. Located on a 0.47-acre parcel, this site delivers excellent functionality and flexibility for a range of industrial users. Strategically positioned near the 57 Freeway, with quick access to major routes including the 60, 91, and 39, the property connects you to Orange County and Greater Los Angeles markets. Surrounding communities such as Brea, Fullerton, and Whittier provide a strong labor pool and customer base. This location offers proximity to retail amenities, residential neighborhoods, and key business corridors, making it a prime choice for companies seeking operational efficiency and regional reach.
- Le taux inscrit peut ne pas comprendre certains services publics, les services de bâtiment et les dépenses immobilières.
- Comprend 2 500 pi² d’espace de bureau dédié
- 2 accès plain-pied
- Espace en excellent état
- 1 quai de chargement
- Salle de bains privée
- Freestanding industrial building with fenced yard
- Dock-high loading plus two ground-level doors
- 16-foot minimum clearance and skylights
Faits sur l’installation entrepôt
Présenté par
531 Jamie Ave
Hmm, il semble y avoir eu une erreur lors de l’envoi de votre message. Veuillez réessayer.
Merci! Votre message a été envoyé.



