Se Connecter/S’inscrire
Votre courriel a été envoyé.
535 E Turkeyfoot Lake Rd 7 500 pi² Industriel Immeuble Akron, OH 44319 476 178 $ CAD (63,49 $ CAD/pi²)



Certaines informations ont été traduites automatiquement.
Faits saillants de l'investissement
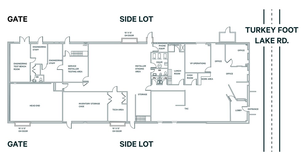
- Positioned on 2.31 acres with frontage along Turkeyfoot Lake Road for strong visibility.
- Equipped with three 10’ x 12’ drive-in doors to accommodate efficient access for vehicles and goods.
- Close proximity to major transportation routes including I-77, enhancing connectivity within the Akron-Canton region.
- Combination of 2,800 SF office and 4,700 SF warehouse space, delivering operational flexibility.
- Zoned B-1 General Business, allowing a range of uses across service, trade, and light industrial sectors.
- Opportunity to improve and reposition for value-add return through renovations and site improvements.
Résumé de l'annonce
Available for $350,000, this ±7,500 SF industrial property offers significant value-add potential in the highly desirable Portage Lakes area of Summit County. Set on a 2.31-acre parcel, the site provides a flexible combination of 2,800 SF of office space and 4,700 SF of warehouse space, making it an attractive option for owner-users or investors seeking redevelopment or repositioning opportunities.
The property features three 10’ x 12’ drive-in doors, accommodating various loading operations, and is supported by 200A 120/208V power service. Its B-1 General Business zoning allows for a range of potential uses. Convenient access to I-77 and key regional corridors positions the site within a strong labor market and close to retail, residential, and commercial activity in southern Akron.
Given its location, acreage, and flexible structure, this asset offers a compelling opportunity to enhance functionality through modernization while capitalizing on long-term growth in the area.
The property features three 10’ x 12’ drive-in doors, accommodating various loading operations, and is supported by 200A 120/208V power service. Its B-1 General Business zoning allows for a range of potential uses. Convenient access to I-77 and key regional corridors positions the site within a strong labor market and close to retail, residential, and commercial activity in southern Akron.
Given its location, acreage, and flexible structure, this asset offers a compelling opportunity to enhance functionality through modernization while capitalizing on long-term growth in the area.
Faits sur la propriété
1 1
Plutôt praticable à pied
30/100
Exceptionnellement facile d’accès en voiture
100/100
Impôts fonciers
| Numéro de lot | 28-07493 | Évaluation des bâtiments | 142 920 $ CAD |
| Évaluation du terrain | 53 099 $ CAD | Évaluation totale | 196 020 $ CAD |
Impôts fonciers
Numéro de lot
28-07493
Évaluation du terrain
53 099 $ CAD
Évaluation des bâtiments
142 920 $ CAD
Évaluation totale
196 020 $ CAD
1 de 7
Vidéos
Visite extérieure 3D Matterport
Visite 3D Matterport
Photos
Vue depuis la rue
Rue
Carte
1 de 1
Présenté par
535 E Turkeyfoot Lake Rd
Vous êtes déjà membre? Connectez-vous
Hmm, il semble y avoir eu une erreur lors de l’envoi de votre message. Veuillez réessayer.
Merci! Votre message a été envoyé.
