Votre courriel a été envoyé.
5836 Chestnut- Retail or Office 5386 Chestnut St 2 179–4 359 pi² d'espace disponible • Bureau/Commerce de détail • Emmaus, PA 18049



Certaines informations ont été traduites automatiquement.
Faits saillants
- HIGH TRAFFIC LOCATION
- PRIVATE PARKING LOT
- IDEAL FOR RETAIL OR OFFICE USERS
Disponibilité des espaces (2)
Afficher les taux de location en
- Espace
- Taille
- Terme
- Taux de location
- Type de loyer
| Espace | Taille | Terme | Taux de location | Type de loyer | ||
| 1er étage | 2 180 pi² | Négociable | Sur demande Sur demande Sur demande Sur demande | À déterminer | ||
| 2e étage | 2 179 pi² | Négociable | Sur demande Sur demande Sur demande Sur demande | À déterminer |
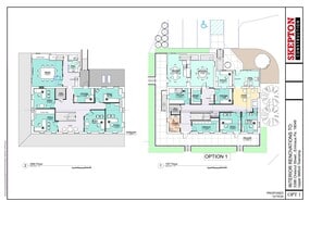
1er étage
Previously the long-time location of Hendrixon’s Furniture, this well maintained classic building offers over 4,300 SF of open space on the first and second floors. Ideal for retail or office users and property owner can facilitate needed fit-out alterations. Off-street parking and excellent visibility with immediate frontage on high-traffic Rt.100. This location enjoys close proximity to Emmaus, the greater Lehigh Valley and points along Rt. 100 South.
- Disposition du plan d’étage ouverte en général
- Convient pour 6 à 18 personnes
- 2 bureaux privés
- Espace en excellent état
- Peut être associé à un ou plusieurs espaces supplémentaires pour obtenir jusqu’à 4 359 pi² d’espace adjacent.
- HIGH TRAFFIC VISIBILITY LOCATION
- IDEAL FOR RETAIL OR OFFICE USERS
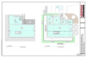
2e étage
- Convient pour 6 à 18 personnes
- Peut être associé à un ou plusieurs espaces supplémentaires pour obtenir jusqu’à 4 359 pi² d’espace adjacent.
Types de loyers
Le type et le montant du loyer que le locataire (preneur) est tenu de payer au propriétaire (bailleur) sur la durée du bail sont négociés avant la signature du bail par les deux parties. Le type de loyer varie selon les services fournis. Par exemple, le prix d’un loyer hypernet est habituellement inférieur à celui d’un bail à service complet puisque le locataire est tenu d’assumer des dépenses additionnelles par rapport au loyer de base. Contactez le courtier inscripteur pour tout connaître sur les frais connexes et additionnels associés à chaque type de loyer.
1. Service complet: Un taux de location qui comprend des services standards liés à l’immeuble fournis par le propriétaire dans le cadre d’une location annuelle de base.
2. Loyer supernet: Le locataire paie seulement deux des frais de l’immeuble. Le propriétaire et le locataire déterminent ces frais spécifiques avant la signature du bail.
3. Loyer hypernet: Un bail en vertu duquel le locataire est responsable de tous les frais liés à sa part proportionnelle d’occupation de l’immeuble.
4. Brut modifié: Le loyer brut modifié désigne un type général de taux de location dans lequel le locataire est habituellement responsable de sa part proportionnelle d’un ou de plusieurs frais. C’est le propriétaire qui paie les frais restants. Considérez les structures tarifaires courantes suivantes applicables aux loyers bruts modifiés: 4. Plus les services: Un type de bail brut modifié suivant lequel le locataire est responsable de sa part proportionnelle des coûts des services publics, en plus du loyer. 4. Plus le nettoyage: Un type de bail brut modifié suivant lequel le locataire est responsable de sa part proportionnelle des coûts de nettoyage, en plus du loyer. 4. Plus l'électricité: Un type de bail brut modifié suivant lequel le locataire est responsable de sa part proportionnelle des coûts d’électricité, en plus du loyer. 4. Plus l’électricité et le nettoyage: Un type de bail brut modifié dans lequel le locataire est responsable de sa part proportionnelle des coûts d’électricité et de nettoyage, en plus du loyer. 4. Plus les services publics et le nettoyage: Un type de bail brut modifié dans lequel le locataire est responsable de sa part proportionnelle des coûts des services publics et de nettoyage, en plus du loyer. 4. Bail industriel brut: Un type de bail brut modifié dans lequel le locataire paie un ou plusieurs des frais, en plus du loyer. Le propriétaire et le locataire déterminent ces frais spécifiques avant la signature du bail.
5. L’électricité est à la charge du locataire: Le propriétaire paie pour tous les services et le locataire est responsable de sa propre utilisation de l’éclairage et des prises électriques dans l’espace qu’il occupe.
6. Négociable ou sur demande: Cette option est utilisée lorsque le contact de location ne précise pas le type de loyer ou de service.
7. À déterminer: À déterminer ; utilisé pour les immeubles dont le type de services ou de loyer n’est pas connu, souvent quand l’immeuble n’est pas encore construit.
Faits sur la propriété
| Superficie totale disponible | 4 359 pi² | Superficie commerciale brute | 4 990 pi² |
| Type de propriété | Commerce de détail | Année de construction/rénovation | 1825/1990 |
| Sous-type de propriété | Bien à usage mixte |
| Superficie totale disponible | 4 359 pi² |
| Type de propriété | Commerce de détail |
| Sous-type de propriété | Bien à usage mixte |
| Superficie commerciale brute | 4 990 pi² |
| Année de construction/rénovation | 1825/1990 |
À propos de la propriété
Previously the long-time location of Hendrixon’s Furniture, this well maintained classic building offers over 4,300 SF of open space on the first and second floors.
Présenté par
5836 Chestnut- Retail or Office | 5386 Chestnut St
Hmm, il semble y avoir eu une erreur lors de l’envoi de votre message. Veuillez réessayer.
Merci! Votre message a été envoyé.



