Se Connecter/S’inscrire
Votre courriel a été envoyé.
5388 Discovery Park Blvd
Williamsburg, VA 23188
Patriot Park · Bureau Propriété À louer
·
1 640 pi²


Certaines informations ont été traduites automatiquement.
Aperçu de la propriété
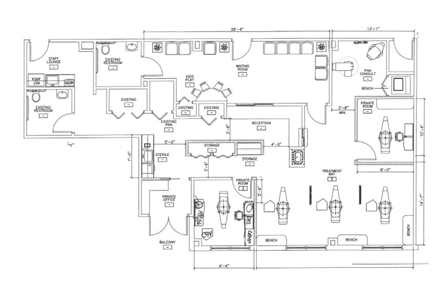
Ancien cabinet de dentiste de 1 640 SF (amplement de puissance au sol, d'oxygène et de baies nitreuses) Excellente mise en page pour une variété d'utilisations commerciales ou médicales Disponible à la vente ou à la location Taux de location négociable Financement offert aux vendeurs Beaucoup de places de stationnement disponibles Situé à New Town Williamsburg, un développement à usage mixte à l'ouest du centre-ville de Williamsburg
- Accès 24 heures
- Ligne d'autobus
- Accès contrôlé
- Affichage
- Cuisine
- Éclairage accentué
- Réception
- Espace d'entreposage
- Entreposage de vélo
- Conforme DDA
- Exposition directe à l'ascenseur
- Réception
- Entreposage sécurisé
- Climatisation
- Balcon
Faits sur la propriété
Type de bâtiment
Bureau
Année de construction
2007
Hauteur du bâtiment
3 étages
Taille du bâtiment
23 807 pi²
Classe d’immeuble
B
Superficie de plancher typique
7 936 pi²
Hauteur du plafond non finie
11’
Stationnement
93 places de stationnement surface
Stationnement Couvert
1 de 20
Vidéos
Visite extérieure 3D Matterport
Visite 3D Matterport
Photos
Vue depuis la rue
Rue
Carte
