Votre courriel a été envoyé.
54 Flinders St 1 270–2 551 pi² d'espace disponible • Bureau • 4 étoiles • Darlinghurst, NSW 2010



Certaines informations ont été traduites automatiquement.
Faits saillants
- Recently renovated mixed-use freehold terrace
- Rear lane access with secure parking
- Close to Oxford Street, Hyde Park, and Surry Hills
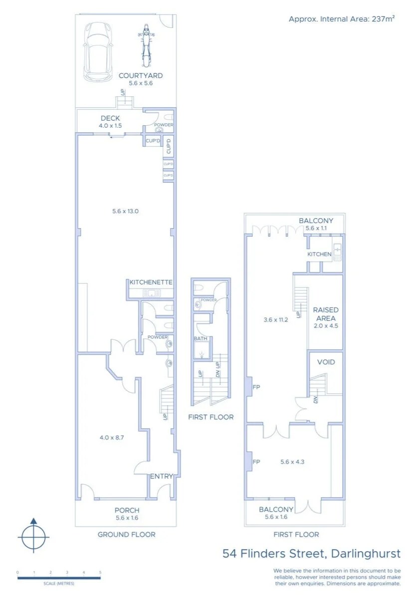
- 237 m² internal space on 190 m² landholding
- High exposure on Flinders Street near CBD
Tous les espaces disponibles(2)
Afficher les taux de location en
- Espace
- Taille
- Terme
- Taux de location
- Utilisation de l’espace
- Aménagement
- Disponible
54 Flinders Street is a fully renovated mixed-use freehold terrace located in the vibrant Darlinghurst precinct. The property occupies a 190 m² landholding and offers approximately 237 m² of internal space across two levels. Featuring a striking façade and rear lane access via Chisholm Street, the building includes secure parking with automated roller door entry. The property is positioned in a high-visibility location along Flinders Street, benefiting from strong pedestrian and vehicle traffic. Its proximity to Oxford Street, Hyde Park, Surry Hills, and Sydney CBD ensures excellent connectivity and access to a wide range of amenities. The building’s design incorporates open-plan work areas, breakout zones, and meeting spaces, creating a functional and contemporary environment for creative, tech, or professional users.
- Entièrement construit comme Bureau standard
- Convient pour 4 à 10 personnes
- Disposition du plan d’étage ouverte en général
54 Flinders Street is a fully renovated mixed-use freehold terrace located in the vibrant Darlinghurst precinct. The property occupies a 190 m² landholding and offers approximately 237 m² of internal space across two levels. Featuring a striking façade and rear lane access via Chisholm Street, the building includes secure parking with automated roller door entry. The property is positioned in a high-visibility location along Flinders Street, benefiting from strong pedestrian and vehicle traffic. Its proximity to Oxford Street, Hyde Park, Surry Hills, and Sydney CBD ensures excellent connectivity and access to a wide range of amenities. The building’s design incorporates open-plan work areas, breakout zones, and meeting spaces, creating a functional and contemporary environment for creative, tech, or professional users.
- Entièrement construit comme Bureau standard
- Convient pour 4 à 10 personnes
- Disposition du plan d’étage ouverte en général
| Espace | Taille | Terme | Taux de location | Utilisation de l’espace | Aménagement | Disponible |
| RDC | 1 270 pi² | Négociable | Sur demande Sur demande Sur demande Sur demande | Bureau | construction complète | Maintenant |
| 1er étage | 1 281 pi² | Négociable | Sur demande Sur demande Sur demande Sur demande | Bureau | construction complète | Maintenant |
RDC
| Taille |
| 1 270 pi² |
| Terme |
| Négociable |
| Taux de location |
| Sur demande Sur demande Sur demande Sur demande |
| Utilisation de l’espace |
| Bureau |
| Aménagement |
| construction complète |
| Disponible |
| Maintenant |
1er étage
| Taille |
| 1 281 pi² |
| Terme |
| Négociable |
| Taux de location |
| Sur demande Sur demande Sur demande Sur demande |
| Utilisation de l’espace |
| Bureau |
| Aménagement |
| construction complète |
| Disponible |
| Maintenant |
RDC
| Taille | 1 270 pi² |
| Terme | Négociable |
| Taux de location | Sur demande |
| Utilisation de l’espace | Bureau |
| Aménagement | construction complète |
| Disponible | Maintenant |
54 Flinders Street is a fully renovated mixed-use freehold terrace located in the vibrant Darlinghurst precinct. The property occupies a 190 m² landholding and offers approximately 237 m² of internal space across two levels. Featuring a striking façade and rear lane access via Chisholm Street, the building includes secure parking with automated roller door entry. The property is positioned in a high-visibility location along Flinders Street, benefiting from strong pedestrian and vehicle traffic. Its proximity to Oxford Street, Hyde Park, Surry Hills, and Sydney CBD ensures excellent connectivity and access to a wide range of amenities. The building’s design incorporates open-plan work areas, breakout zones, and meeting spaces, creating a functional and contemporary environment for creative, tech, or professional users.
- Entièrement construit comme Bureau standard
- Disposition du plan d’étage ouverte en général
- Convient pour 4 à 10 personnes
1er étage
| Taille | 1 281 pi² |
| Terme | Négociable |
| Taux de location | Sur demande |
| Utilisation de l’espace | Bureau |
| Aménagement | construction complète |
| Disponible | Maintenant |
54 Flinders Street is a fully renovated mixed-use freehold terrace located in the vibrant Darlinghurst precinct. The property occupies a 190 m² landholding and offers approximately 237 m² of internal space across two levels. Featuring a striking façade and rear lane access via Chisholm Street, the building includes secure parking with automated roller door entry. The property is positioned in a high-visibility location along Flinders Street, benefiting from strong pedestrian and vehicle traffic. Its proximity to Oxford Street, Hyde Park, Surry Hills, and Sydney CBD ensures excellent connectivity and access to a wide range of amenities. The building’s design incorporates open-plan work areas, breakout zones, and meeting spaces, creating a functional and contemporary environment for creative, tech, or professional users.
- Entièrement construit comme Bureau standard
- Disposition du plan d’étage ouverte en général
- Convient pour 4 à 10 personnes
Aperçu de la propriété
54 Flinders Street is a mixed-use freehold terrace located in Darlinghurst, NSW. The property comprises approximately 237 m² of internal space across two levels on a 190 m² site. It features rear lane access with secure parking and is situated near Oxford Street, Hyde Park, and Sydney CBD. The building has been recently renovated and offers flexible commercial accommodation.
- Lumière naturelle
- Climatisation
Faits sur la propriété
Présenté par
54 Flinders St
Hmm, il semble y avoir eu une erreur lors de l’envoi de votre message. Veuillez réessayer.
Merci! Votre message a été envoyé.



