Se Connecter/S’inscrire
Votre courriel a été envoyé.
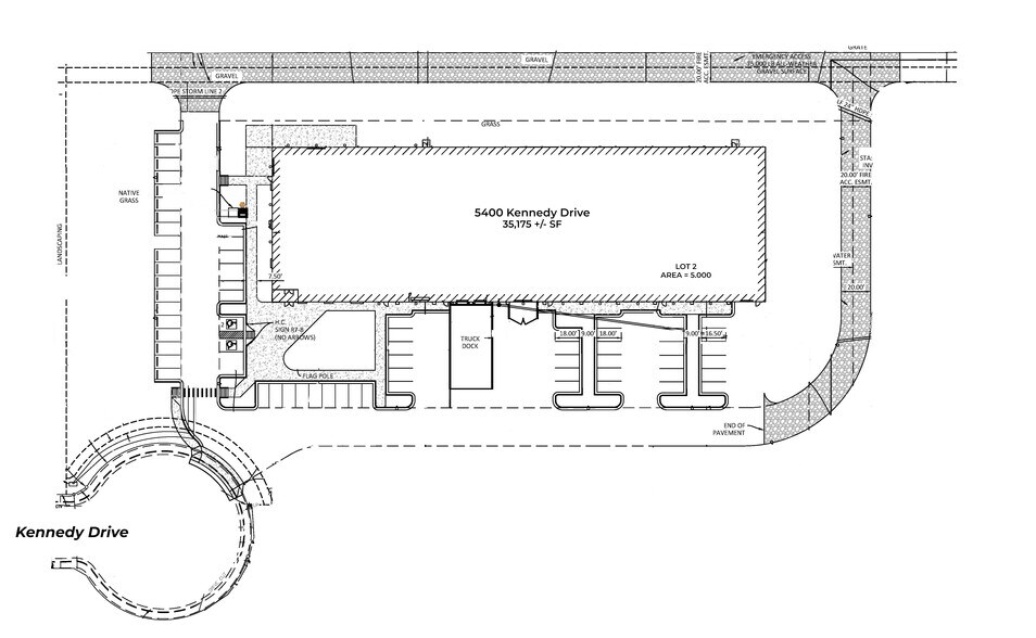
5400 Kennedy
Longmont, CO 80503
Terrain À vendre
·
5,01 AC


Certaines informations ont été traduites automatiquement.
Faits sur la propriété
| Type de vente | Investissement ou propriétaire utilisateur | Sous-type de propriété | Terrain commercial |
| Nombre de lots | 1 | Taille totale du lot | 5,01 AC |
| Type de propriété | Terrain | Rues transversales | N. 75th Street |
| Zonage | N-PE | ||
| Type de vente | Investissement ou propriétaire utilisateur |
| Nombre de lots | 1 |
| Type de propriété | Terrain |
| Sous-type de propriété | Terrain commercial |
| Taille totale du lot | 5,01 AC |
| Rues transversales | N. 75th Street |
| Zonage | N-PE |
1 Lot disponible
Lot 2
| Prix | 1 302 251 $ CAD | Taille du lot | 5,01 AC |
| Prix par AC | 259 930,24 $ CAD |
| Prix | 1 302 251 $ CAD |
| Prix par AC | 259 930,24 $ CAD |
| Taille du lot | 5,01 AC |
Situé dans le sud-ouest de Longmont, près du campus Seagate. Accès facile à la communauté d'affaires de Longmont, à plusieurs commodités et à environ 15 minutes de Boulder. Terrain à vendre avec un bâtiment approuvé de 35 892 pieds carrés.
Description
Terrain à vendre avec un bâtiment approuvé de 35 892 pieds carrés. Situé dans le sud-ouest de Longmont, près du campus Seagate. Accès facile à la communauté d'affaires de Longmont, plusieurs commodités et environ 15 minutes de Boulder. 75 places de stationnement. Emplacement du Cul de sac.
1 de 3
Vidéos
Visite extérieure 3D Matterport
Visite 3D Matterport
Photos
Vue depuis la rue
Rue
Carte
