Se Connecter/S’inscrire
Votre courriel a été envoyé.
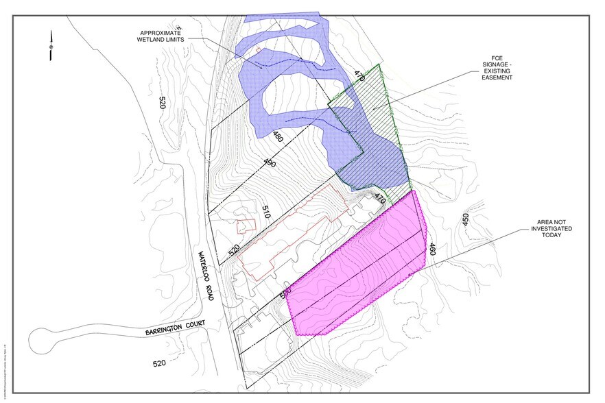
5459 & 5477 Waterloo Rd
Ellicott City, MD 21043
Bradford · Terrain À vendre
·
3,91 AC


Certaines informations ont été traduites automatiquement.
Faits saillants de l'investissement
- Possibilité de développement Prime Land Rt 100
- Meilleures utilisations : Hôtel, Bureau médical, Résidence pour personnes âgées, Appartements
- Peut être joint à des terres adjacentes pour améliorer l'empreinte au sol afin d'aménager
Résumé de l'annonce
Occasion de développement principal des terres brutes à l'heure de la Rt 100
Peut être joint à un terrain adjacent pour améliorer l'empreinte au sol et aménager
Meilleures utilisations : Hôtel, Cabinet médical, Résidence pour personnes âgées, Appartements
Peut être joint à un terrain adjacent pour améliorer l'empreinte au sol et aménager
Meilleures utilisations : Hôtel, Cabinet médical, Résidence pour personnes âgées, Appartements
Faits sur la propriété
| Type de vente | Investissement | Utilisation proposée | Commercial |
| Nombre de lots | 1 | Taille totale du lot | 3,91 AC |
| Type de propriété | Terrain | Rues transversales | Old Annapolis |
| Sous-type de propriété | Terrain commercial | ||
| Zonage | POR | ||
| Type de vente | Investissement |
| Nombre de lots | 1 |
| Type de propriété | Terrain |
| Sous-type de propriété | Terrain commercial |
| Utilisation proposée | Commercial |
| Taille totale du lot | 3,91 AC |
| Rues transversales | Old Annapolis |
| Zonage | POR |
1 Lot disponible
Lot
| Taille du lot | 3,91 AC |
| Taille du lot | 3,91 AC |
Situé près de la Rt 100 sur la Rt 108, sur le viaduc Rt 104, juste à l'ouest d'Ellicott Gardens
Description
Situé au large du Rt 100 sur le Rt 108, @ le passage supérieur Rt 104, juste à l'ouest d'Ellicott Gardens
Impôts fonciers
| Numéro de lot | 01-157450 | Évaluation des bâtiments | 0 $ CAD |
| Évaluation du terrain | 797 262 $ CAD | Évaluation totale | 797 262 $ CAD |
Impôts fonciers
Numéro de lot
01-157450
Évaluation du terrain
797 262 $ CAD
Évaluation des bâtiments
0 $ CAD
Évaluation totale
797 262 $ CAD
1 de 7
Vidéos
Visite extérieure 3D Matterport
Visite 3D Matterport
Photos
Vue depuis la rue
Rue
Carte
