Se Connecter/S’inscrire
Votre courriel a été envoyé.
Bldg C 5497 SE International Way 8 000–16 000 pi² d'espace disponible • Industriel • Milwaukie, OR 97222



Certaines informations ont été traduites automatiquement.
Faits saillants
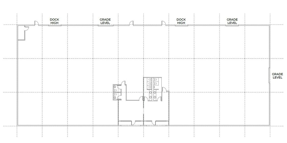
- Two (2) Dock Doors and Two (2) Grade Doors
- Available Now
- 5 Minutes to I-205
- 20+ Off-Street Parking Spots
- 15 Minutes to Downtown Portland
- Fee-standing Building
Caractéristiques
Hauteur libre
16’
Baies d’entrée
3
Places de stationnement standard
20
Tous les espaces disponibles(1)
Afficher les taux de location en
- Espace
- Taille
- Terme
- Taux de location
- Utilisation de l’espace
- Aménagement
- Disponible
up to 16,000 square feet of industrial space located 2 Miles to I-205 in Gramark Business Park
- Le taux de location ne comprend pas les services publics, les services de bâtiment ou les dépenses immobilières.
- 3 accès plain-pied
- Located in the Clackamas Enterprise Zone
- 14 Miles to Portland International Airport
- Comprend 1 500 pi² d’espace de bureau dédié
- Frontage on SE International Way
- One Block from Hwy 224
| Espace | Taille | Terme | Taux de location | Utilisation de l’espace | Aménagement | Disponible |
| 1er étage - 1 | 8 000 à 16 000 pi² | Négociable | 18,19 $ CAD/pi²/an 1,52 $ CAD/pi²/mois 291 063 $ CAD/an 24 255 $ CAD/mois | Industriel | construction complète | Maintenant |
1er étage - 1
| Taille |
| 8 000 à 16 000 pi² |
| Terme |
| Négociable |
| Taux de location |
| 18,19 $ CAD/pi²/an 1,52 $ CAD/pi²/mois 291 063 $ CAD/an 24 255 $ CAD/mois |
| Utilisation de l’espace |
| Industriel |
| Aménagement |
| construction complète |
| Disponible |
| Maintenant |
1 de 1
Vidéos
Visite extérieure 3D Matterport
Visite 3D Matterport
Photos
Vue depuis la rue
Rue
Carte
1er étage - 1
| Taille | 8 000 à 16 000 pi² |
| Terme | Négociable |
| Taux de location | 18,19 $ CAD/pi²/an |
| Utilisation de l’espace | Industriel |
| Aménagement | construction complète |
| Disponible | Maintenant |
up to 16,000 square feet of industrial space located 2 Miles to I-205 in Gramark Business Park
- Le taux de location ne comprend pas les services publics, les services de bâtiment ou les dépenses immobilières.
- Comprend 1 500 pi² d’espace de bureau dédié
- 3 accès plain-pied
- Frontage on SE International Way
- Located in the Clackamas Enterprise Zone
- One Block from Hwy 224
- 14 Miles to Portland International Airport
Aperçu de la propriété
Available Industrial Space - Divisible ±8,000 - 16,000 SF with ± 1,500 SF Office • Frontage on SE International Way • Located in the Clackamas Enterprise Zone • One Block from Hwy 224 • 2 Miles to I-205 • 14 Miles to Portland International Airport
Faits sur l’installation entrepôt
Taille du bâtiment
16 000 pi²
Taille du lot
15,00 AC
Année de construction
1978
Alimentation électrique
Ampères: 400 Volts: 480 Phase: 3
Zonage
BI - Business Industrial - primarily designed to support the North Milwaukie Industrial Area (NMIA), fostering a blend of light manufacturing, maker spaces, and innovative businesses
Moyennement practicable à pied
60/100
Exceptionnellement facile d'accès en voiture
90/100
Transports en commun limités
30/100
Plutôt praticable en vélo
50/100
1 de 6
Vidéos
Visite extérieure 3D Matterport
Visite 3D Matterport
Photos
Vue depuis la rue
Rue
Carte
Présenté par
Bldg C | 5497 SE International Way
Vous êtes déjà membre? Connectez-vous
Hmm, il semble y avoir eu une erreur lors de l’envoi de votre message. Veuillez réessayer.
Merci! Votre message a été envoyé.



