Se Connecter/S’inscrire
Votre courriel a été envoyé.
Certaines informations ont été traduites automatiquement.
Faits saillants de l'investissement
- 2 Quais de chargement
- Ancienne usine de peinture PPG
- Situé avec le parc industriel de l'aéroport municipal Casa Grande
- Portes à 7 niveaux
- 14'-16' de hauteur claire
- À moins de 40 milles de l'aéroport international Sky Harbor de Phoenix
Résumé de l'annonce
Possibilité de vente pour les propriétaires et les utilisateurs industriels de plusieurs immeubles
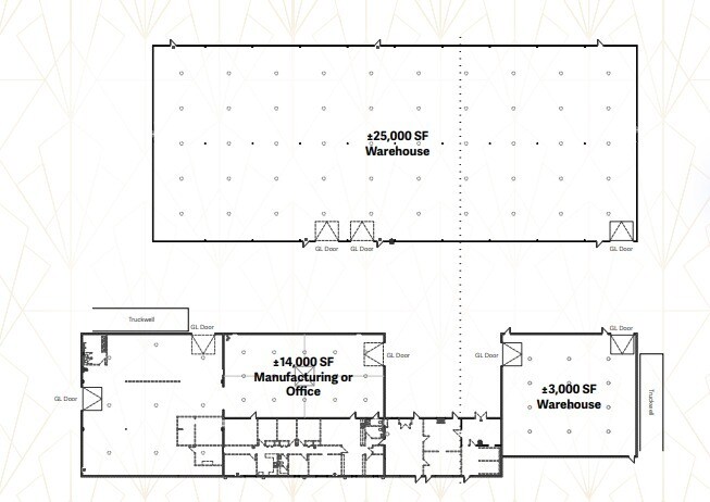
La propriété comprend un entrepôt de ±25 000 pieds carrés sur une parcelle, un bureau et une usine de fabrication de ±18 000 pieds carrés sur une deuxième parcelle et ±2 acres de terrain non aménagé sur une troisième parcelle qui servira de cour à une structure supplémentaire construite
Faits saillants supplémentaires :
-7,4 milles de l'usine de Lucid Motors
-24 Places de stationnement
-Joignez-vous à Nikola, Lucid, Chang Chun, LCY Electronic Materials, Solvay Corporation et Jing He Science Company dans la région de Casa Grande
-Le vendeur est prêt à vendre des immeubles séparément
La propriété comprend un entrepôt de ±25 000 pieds carrés sur une parcelle, un bureau et une usine de fabrication de ±18 000 pieds carrés sur une deuxième parcelle et ±2 acres de terrain non aménagé sur une troisième parcelle qui servira de cour à une structure supplémentaire construite
Faits saillants supplémentaires :
-7,4 milles de l'usine de Lucid Motors
-24 Places de stationnement
-Joignez-vous à Nikola, Lucid, Chang Chun, LCY Electronic Materials, Solvay Corporation et Jing He Science Company dans la région de Casa Grande
-Le vendeur est prêt à vendre des immeubles séparément
Faits sur la propriété
| Prix | 7 521 415 $ CAD | Nombre de propriétés | 3 |
| Prix/pi² | 130,07 $ CAD / pi² | Individuellement en vente | 0 |
| Type de vente | Propriétaire utilisateur | Taille totale du bâtiment | 57 824 pi² |
| Statut | Actif | Superficie totale du terrain | 10,60 AC |
| Prix | 7 521 415 $ CAD |
| Prix/pi² | 130,07 $ CAD / pi² |
| Type de vente | Propriétaire utilisateur |
| Statut | Actif |
| Nombre de propriétés | 3 |
| Individuellement en vente | 0 |
| Taille totale du bâtiment | 57 824 pi² |
| Superficie totale du terrain | 10,60 AC |
Propriétés
| Nom de la propriété/adresse | Type de propriété | Taille | Année de construction | Prix individuel |
|---|---|---|---|---|
| 546-566 W Centennial Blvd, Casa Grande, AZ 85122 | Industriel | 42 865 pi² | 2000 | - |
| 3018 N Lear Ave, Casa Grande, AZ 85122 | Industriel | 14 959 pi² | 2000 | - |
| 550 W Centennial Blvd, Casa Grande, AZ 85122 | Terrain | 3,00 AC | - | - |
1 1
1 de 5
Vidéos
Visite extérieure 3D Matterport
Visite 3D Matterport
Photos
Vue depuis la rue
Rue
Carte
1 de 1
Présenté par
550 W Centennial Blvd
Vous êtes déjà membre? Connectez-vous
Hmm, il semble y avoir eu une erreur lors de l’envoi de votre message. Veuillez réessayer.
Merci! Votre message a été envoyé.



