Se Connecter/S’inscrire
Votre courriel a été envoyé.
5500 E Jurupa St
Ontario, CA 91761
Bldg 1 · Industriel Propriété À vendre


Certaines informations ont été traduites automatiquement.
Faits saillants de l'investissement
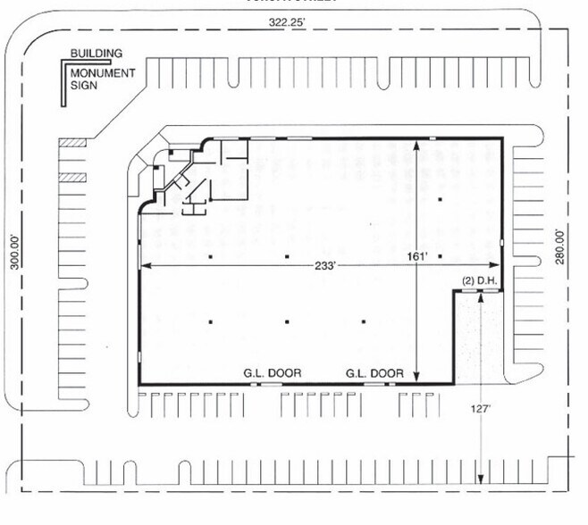
- ±35,313 SF industrial building with integrated office space.
- Two dock-high doors and two grade-level doors for flexible loading.
- Situated on 2.35 acres with approximately 70 auto parking stalls.
- 24-foot warehouse clearance for efficient storage and operations.
- Approximately 1,000 amps of power available (verify).
- Excellent access to I-10, I-15, and SR-60 freeways for regional connectivity.
Résumé de l'annonce
This ±35,313 SF industrial facility offers a rare owner-user or investor opportunity in the thriving Inland Empire market. Situated on 2.35 acres, the property combines functional warehouse space with ±1,868 SF of office area, providing a balanced layout for operational efficiency. The building features 24-foot clear height, two dock-high doors, and two grade-level doors, ensuring smooth loading and distribution capabilities.
The site is equipped with T-5 warehouse lighting and approximately 1,000 amps of power (verification required), supporting a wide range of industrial and manufacturing uses. With approximately 70 auto parking stalls, the property accommodates both workforce and visitor needs.
Located in Ontario, CA, the property offers excellent connectivity to major transportation routes, including convenient access to the I-10, I-15, and SR-60 freeways. This strategic location places businesses within reach of regional distribution networks, airports, and Southern California’s robust consumer base.
The site is equipped with T-5 warehouse lighting and approximately 1,000 amps of power (verification required), supporting a wide range of industrial and manufacturing uses. With approximately 70 auto parking stalls, the property accommodates both workforce and visitor needs.
Located in Ontario, CA, the property offers excellent connectivity to major transportation routes, including convenient access to the I-10, I-15, and SR-60 freeways. This strategic location places businesses within reach of regional distribution networks, airports, and Southern California’s robust consumer base.
Faits sur la propriété
| Type de vente | Propriétaire utilisateur | Année de construction | 1989 |
| Type de propriété | Industriel | Location | Unique |
| Sous-type de propriété | Entrepôt | Ratio de stationnement | 2,37/1 000 pi² |
| Classe d’immeuble | B | Effacer hauteur du plafond | 24’ |
| Taille du lot | 2,36 AC | Nbre de quais à portes élevées/de chargement | 2 |
| Aire du bâtiment louable | 35 313 pi² | Nbre d’entrées dans les portes/au niveau du sol | 2 |
| Nombre d’étages | 1 | ||
| Zonage | M2, Ontario | ||
| Type de vente | Propriétaire utilisateur |
| Type de propriété | Industriel |
| Sous-type de propriété | Entrepôt |
| Classe d’immeuble | B |
| Taille du lot | 2,36 AC |
| Aire du bâtiment louable | 35 313 pi² |
| Nombre d’étages | 1 |
| Année de construction | 1989 |
| Location | Unique |
| Ratio de stationnement | 2,37/1 000 pi² |
| Effacer hauteur du plafond | 24’ |
| Nbre de quais à portes élevées/de chargement | 2 |
| Nbre d’entrées dans les portes/au niveau du sol | 2 |
| Zonage | M2, Ontario |
Commodités
- Affichage
- Puits de lumière
Impôts fonciers
| Numéro de lot | 0238-133-01 | Évaluation des bâtiments | 2 317 628 $ CAD |
| Évaluation du terrain | 1 602 614 $ CAD | Évaluation totale | 3 920 242 $ CAD |
Impôts fonciers
Numéro de lot
0238-133-01
Évaluation du terrain
1 602 614 $ CAD
Évaluation des bâtiments
2 317 628 $ CAD
Évaluation totale
3 920 242 $ CAD
1 de 3
Vidéos
Visite extérieure 3D Matterport
Visite 3D Matterport
Photos
Vue depuis la rue
Rue
Carte
