Votre courriel a été envoyé.
Certaines informations ont été traduites automatiquement.
Faits saillants du parc
- Le parc d'affaires Bandera offre des espaces flexibles allant d'environ 1 000 à 6 000 pieds carrés avec des aménagements standard et spécialisés disponibles.
- Un accès rapide à Loop 410 place les locataires à 10 minutes de l'aéroport de San Antonio, à 14 minutes du centre-ville de San Antonio et à 16 minutes du Camp Bullis.
- Prime location with access to a dense workforce where over 30,000 residents are employed in blue-collar industries within a 5-mile radius.
- Comprend un chargement au niveau des niveaux, des hauteurs dégagées de 14 pieds dans les entrepôts, un système CVC couvert par le propriétaire, des bureaux et des toilettes privées.
- Des équipements pratiques à proximité tels que Walmart, Ingram Park Mall, Home Depot et des dizaines de restaurants sont à moins de cinq minutes en voiture.
- 100% of brokerage commission will be paid upon lease execution.
Faits sur le parc
Caractéristiques et commodités
- Affichage
- Espace d'entreposage
Tous les espaces disponibles(13)
Afficher les taux de location en
- Espace
- Taille
- Terme
- Taux de location
- Utilisation de l’espace
- Aménagement
- Disponible
- Le taux de location ne comprend pas les services publics, les services de bâtiment ou les dépenses immobilières.
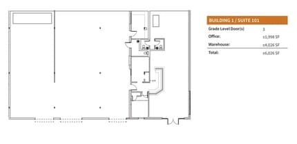
- Comprend 1 998 pi² d’espace de bureau dédié
This combined suite offers an efficient layout with approximately 440 square feet of office and a large warehouse component ideal for production, service operations, or storage. A grade-level door supports convenient loading while the open warehouse format maximizes usable space.
- Le taux de location ne comprend pas les services publics, les services de bâtiment ou les dépenses immobilières.
- Grade-level loading, office entry
- Espace en excellent état
| Espace | Taille | Terme | Taux de location | Utilisation de l’espace | Aménagement | Disponible |
| 1er étage - 101 | 6 024 pi² | Négociable | Sur demande Sur demande Sur demande Sur demande | Industriel | - | Maintenant |
| 1er étage - 102 & 104 | 3 967 pi² | Négociable | Sur demande Sur demande Sur demande Sur demande | Industriel | construction complète | Maintenant |
5504-1 Bandera Rd - 1er étage - 101
5504-1 Bandera Rd - 1er étage - 102 & 104
- Espace
- Taille
- Terme
- Taux de location
- Utilisation de l’espace
- Aménagement
- Disponible
A compact flex suite combining a functional warehouse layout with a clean office area designed for smaller operators or satellite uses.
- Le taux de location ne comprend pas les services publics, les services de bâtiment ou les dépenses immobilières.
- Compact office warehouse
- Espace en excellent état
Well-balanced flex suite suitable for small contractors, storage tenants, or business service groups requiring efficient operational space.
- Le taux de location ne comprend pas les services publics, les services de bâtiment ou les dépenses immobilières.
- Efficient flex layout
- Espace en excellent état
Ideal for users needing more storage volume with flexible work areas; open warehouse layout supports equipment or light industrial operations.
- Le taux de location ne comprend pas les services publics, les services de bâtiment ou les dépenses immobilières.
- Open warehouse plan
- Espace en excellent état
| Espace | Taille | Terme | Taux de location | Utilisation de l’espace | Aménagement | Disponible |
| 1er étage - 204 | 1 253 pi² | Négociable | Sur demande Sur demande Sur demande Sur demande | Industriel | construction complète | Maintenant |
| 1er étage - 205 | 1 257 pi² | Négociable | Sur demande Sur demande Sur demande Sur demande | Industriel | construction complète | Maintenant |
| 1er étage - 206 | 1 793 pi² | Négociable | Sur demande Sur demande Sur demande Sur demande | Industriel | construction partielle | Maintenant |
5504-2 Bandera Rd - 1er étage - 204
5504-2 Bandera Rd - 1er étage - 205
5504-2 Bandera Rd - 1er étage - 206
- Espace
- Taille
- Terme
- Taux de location
- Utilisation de l’espace
- Aménagement
- Disponible
A practical space for service companies or distribution-light users needing a blend of office and warehouse functions.
- Le taux de location ne comprend pas les services publics, les services de bâtiment ou les dépenses immobilières.
- Espace en excellent état
- Salle de bains privée
- 1 large drive-in door for loading and unloading
- 1 accès plain-pied
- Climatisation centrale
- 14-foot clear height
- Private restroom located adjacent to office
Adaptable footprint suited for growing users requiring a modest but efficient warehouse area with optional office.
- Le taux de location ne comprend pas les services publics, les services de bâtiment ou les dépenses immobilières.
- Espace en excellent état
- Hauteur claire de 14 pieds
- Salle de bain privée adjacente au bureau
- 1 accès plain-pied
- Salle de bains privée
- 1 grande porte d'entrée pour le chargement et le déchargement
- Emplacement idéal au cœur du bâtiment 3
Mid-size suite supporting a variety of operational layouts.
- Le taux de location ne comprend pas les services publics, les services de bâtiment ou les dépenses immobilières.
- Espace en excellent état
- Hauteur claire de 14 pieds
- Salle de bain privée adjacente au bureau
- 1 accès plain-pied
- Salle de bains privée
- 1 grande porte d'entrée pour le chargement et le déchargement
- Emplacement idéal au cœur du bâtiment 3
| Espace | Taille | Terme | Taux de location | Utilisation de l’espace | Aménagement | Disponible |
| 1er étage - 301 | 1 292 pi² | Négociable | Sur demande Sur demande Sur demande Sur demande | Industriel | construction complète | Maintenant |
| 1er étage - 302 | 1 273 pi² | Négociable | Sur demande Sur demande Sur demande Sur demande | Industriel | construction complète | Maintenant |
| 1er étage - 306 | 1 531 pi² | Négociable | Sur demande Sur demande Sur demande Sur demande | Industriel | construction complète | Maintenant |
5504-3 Bandera Rd - 1er étage - 301
5504-3 Bandera Rd - 1er étage - 302
5504-3 Bandera Rd - 1er étage - 306
- Espace
- Taille
- Terme
- Taux de location
- Utilisation de l’espace
- Aménagement
- Disponible
Highly functional flex suite supporting light industrial or service operations.
- Le taux de location ne comprend pas les services publics, les services de bâtiment ou les dépenses immobilières.
- Light industrial
- Espace en excellent état
| Espace | Taille | Terme | Taux de location | Utilisation de l’espace | Aménagement | Disponible |
| 1er étage - 511 | 1 265 pi² | Négociable | Sur demande Sur demande Sur demande Sur demande | Industriel | construction complète | Maintenant |
5504-5 Bandera Rd - 1er étage - 511
- Espace
- Taille
- Terme
- Taux de location
- Utilisation de l’espace
- Aménagement
- Disponible
Larger warehouse footprint suited for storage, operations, or service tenants with equipment needs.
- Le taux de location ne comprend pas les services publics, les services de bâtiment ou les dépenses immobilières.
- Espace en excellent état
- Hauteur claire de 14 pieds
- Salle de bain privée adjacente au bureau
- 1 accès plain-pied
- Salle de bains privée
- 1 grande porte d'entrée pour le chargement et le déchargement
- Emplacement idéal au cœur du bâtiment 6
Efficient smaller suite with flexible warehouse usability.
- Le taux de location ne comprend pas les services publics, les services de bâtiment ou les dépenses immobilières.
- Espace en excellent état
- Salle de bains privée
- 1 accès plain-pied
- Climatisation centrale
- Small flexible bay
| Espace | Taille | Terme | Taux de location | Utilisation de l’espace | Aménagement | Disponible |
| 1er étage - 609 | 2 059 pi² | Négociable | Sur demande Sur demande Sur demande Sur demande | Industriel | construction complète | Maintenant |
| 1er étage - 615 | 1 270 pi² | Négociable | Sur demande Sur demande Sur demande Sur demande | Industriel | construction complète | Maintenant |
5504-6 Bandera Rd - 1er étage - 609
5504-6 Bandera Rd - 1er étage - 615
- Espace
- Taille
- Terme
- Taux de location
- Utilisation de l’espace
- Aménagement
- Disponible
A larger flex space offering increased volume for operations requiring equipment staging or expanded storage.
- Le taux de location ne comprend pas les services publics, les services de bâtiment ou les dépenses immobilières.
- Larger operating space
- Espace en excellent état
Includes approximately 326 square feet of office and 1,880 square feet of warehouse with grade-level loading; excellent for balanced administrative and operational uses.
- Le taux de location ne comprend pas les services publics, les services de bâtiment ou les dépenses immobilières.
- 1 accès plain-pied
- Salle de bains privée
- 1 grande porte d'entrée pour le chargement et le déchargement
- Emplacement idéal au cœur du bâtiment 7
- Comprend 326 pi² d’espace de bureau dédié
- Espace en excellent état
- Hauteur claire de 14 pieds
- Salle de bain privée adjacente au bureau
| Espace | Taille | Terme | Taux de location | Utilisation de l’espace | Aménagement | Disponible |
| 1er étage - 704 | 2 224 pi² | Négociable | Sur demande Sur demande Sur demande Sur demande | Industriel | construction complète | Maintenant |
| 1er étage - 705 | 2 206 pi² | Négociable | Sur demande Sur demande Sur demande Sur demande | Industriel | construction complète | Maintenant |
5504 Bandera Rd - 1er étage - 704
5504 Bandera Rd - 1er étage - 705
5504-1 Bandera Rd - 1er étage - 101
| Taille | 6 024 pi² |
| Terme | Négociable |
| Taux de location | Sur demande |
| Utilisation de l’espace | Industriel |
| Aménagement | - |
| Disponible | Maintenant |
- Le taux de location ne comprend pas les services publics, les services de bâtiment ou les dépenses immobilières.
- Comprend 1 998 pi² d’espace de bureau dédié
5504-1 Bandera Rd - 1er étage - 102 & 104
| Taille | 3 967 pi² |
| Terme | Négociable |
| Taux de location | Sur demande |
| Utilisation de l’espace | Industriel |
| Aménagement | construction complète |
| Disponible | Maintenant |
This combined suite offers an efficient layout with approximately 440 square feet of office and a large warehouse component ideal for production, service operations, or storage. A grade-level door supports convenient loading while the open warehouse format maximizes usable space.
- Le taux de location ne comprend pas les services publics, les services de bâtiment ou les dépenses immobilières.
- Espace en excellent état
- Grade-level loading, office entry
5504-2 Bandera Rd - 1er étage - 204
| Taille | 1 253 pi² |
| Terme | Négociable |
| Taux de location | Sur demande |
| Utilisation de l’espace | Industriel |
| Aménagement | construction complète |
| Disponible | Maintenant |
A compact flex suite combining a functional warehouse layout with a clean office area designed for smaller operators or satellite uses.
- Le taux de location ne comprend pas les services publics, les services de bâtiment ou les dépenses immobilières.
- Espace en excellent état
- Compact office warehouse
5504-2 Bandera Rd - 1er étage - 205
| Taille | 1 257 pi² |
| Terme | Négociable |
| Taux de location | Sur demande |
| Utilisation de l’espace | Industriel |
| Aménagement | construction complète |
| Disponible | Maintenant |
Well-balanced flex suite suitable for small contractors, storage tenants, or business service groups requiring efficient operational space.
- Le taux de location ne comprend pas les services publics, les services de bâtiment ou les dépenses immobilières.
- Espace en excellent état
- Efficient flex layout
5504-2 Bandera Rd - 1er étage - 206
| Taille | 1 793 pi² |
| Terme | Négociable |
| Taux de location | Sur demande |
| Utilisation de l’espace | Industriel |
| Aménagement | construction partielle |
| Disponible | Maintenant |
Ideal for users needing more storage volume with flexible work areas; open warehouse layout supports equipment or light industrial operations.
- Le taux de location ne comprend pas les services publics, les services de bâtiment ou les dépenses immobilières.
- Espace en excellent état
- Open warehouse plan
5504-3 Bandera Rd - 1er étage - 301
| Taille | 1 292 pi² |
| Terme | Négociable |
| Taux de location | Sur demande |
| Utilisation de l’espace | Industriel |
| Aménagement | construction complète |
| Disponible | Maintenant |
A practical space for service companies or distribution-light users needing a blend of office and warehouse functions.
- Le taux de location ne comprend pas les services publics, les services de bâtiment ou les dépenses immobilières.
- 1 accès plain-pied
- Espace en excellent état
- Climatisation centrale
- Salle de bains privée
- 14-foot clear height
- 1 large drive-in door for loading and unloading
- Private restroom located adjacent to office
5504-3 Bandera Rd - 1er étage - 302
| Taille | 1 273 pi² |
| Terme | Négociable |
| Taux de location | Sur demande |
| Utilisation de l’espace | Industriel |
| Aménagement | construction complète |
| Disponible | Maintenant |
Adaptable footprint suited for growing users requiring a modest but efficient warehouse area with optional office.
- Le taux de location ne comprend pas les services publics, les services de bâtiment ou les dépenses immobilières.
- 1 accès plain-pied
- Espace en excellent état
- Salle de bains privée
- Hauteur claire de 14 pieds
- 1 grande porte d'entrée pour le chargement et le déchargement
- Salle de bain privée adjacente au bureau
- Emplacement idéal au cœur du bâtiment 3
5504-3 Bandera Rd - 1er étage - 306
| Taille | 1 531 pi² |
| Terme | Négociable |
| Taux de location | Sur demande |
| Utilisation de l’espace | Industriel |
| Aménagement | construction complète |
| Disponible | Maintenant |
Mid-size suite supporting a variety of operational layouts.
- Le taux de location ne comprend pas les services publics, les services de bâtiment ou les dépenses immobilières.
- 1 accès plain-pied
- Espace en excellent état
- Salle de bains privée
- Hauteur claire de 14 pieds
- 1 grande porte d'entrée pour le chargement et le déchargement
- Salle de bain privée adjacente au bureau
- Emplacement idéal au cœur du bâtiment 3
5504-5 Bandera Rd - 1er étage - 511
| Taille | 1 265 pi² |
| Terme | Négociable |
| Taux de location | Sur demande |
| Utilisation de l’espace | Industriel |
| Aménagement | construction complète |
| Disponible | Maintenant |
Highly functional flex suite supporting light industrial or service operations.
- Le taux de location ne comprend pas les services publics, les services de bâtiment ou les dépenses immobilières.
- Espace en excellent état
- Light industrial
5504-6 Bandera Rd - 1er étage - 609
| Taille | 2 059 pi² |
| Terme | Négociable |
| Taux de location | Sur demande |
| Utilisation de l’espace | Industriel |
| Aménagement | construction complète |
| Disponible | Maintenant |
Larger warehouse footprint suited for storage, operations, or service tenants with equipment needs.
- Le taux de location ne comprend pas les services publics, les services de bâtiment ou les dépenses immobilières.
- 1 accès plain-pied
- Espace en excellent état
- Salle de bains privée
- Hauteur claire de 14 pieds
- 1 grande porte d'entrée pour le chargement et le déchargement
- Salle de bain privée adjacente au bureau
- Emplacement idéal au cœur du bâtiment 6
5504-6 Bandera Rd - 1er étage - 615
| Taille | 1 270 pi² |
| Terme | Négociable |
| Taux de location | Sur demande |
| Utilisation de l’espace | Industriel |
| Aménagement | construction complète |
| Disponible | Maintenant |
Efficient smaller suite with flexible warehouse usability.
- Le taux de location ne comprend pas les services publics, les services de bâtiment ou les dépenses immobilières.
- 1 accès plain-pied
- Espace en excellent état
- Climatisation centrale
- Salle de bains privée
- Small flexible bay
5504 Bandera Rd - 1er étage - 704
| Taille | 2 224 pi² |
| Terme | Négociable |
| Taux de location | Sur demande |
| Utilisation de l’espace | Industriel |
| Aménagement | construction complète |
| Disponible | Maintenant |
A larger flex space offering increased volume for operations requiring equipment staging or expanded storage.
- Le taux de location ne comprend pas les services publics, les services de bâtiment ou les dépenses immobilières.
- Espace en excellent état
- Larger operating space
5504 Bandera Rd - 1er étage - 705
| Taille | 2 206 pi² |
| Terme | Négociable |
| Taux de location | Sur demande |
| Utilisation de l’espace | Industriel |
| Aménagement | construction complète |
| Disponible | Maintenant |
Includes approximately 326 square feet of office and 1,880 square feet of warehouse with grade-level loading; excellent for balanced administrative and operational uses.
- Le taux de location ne comprend pas les services publics, les services de bâtiment ou les dépenses immobilières.
- Comprend 326 pi² d’espace de bureau dédié
- 1 accès plain-pied
- Espace en excellent état
- Salle de bains privée
- Hauteur claire de 14 pieds
- 1 grande porte d'entrée pour le chargement et le déchargement
- Salle de bain privée adjacente au bureau
- Emplacement idéal au cœur du bâtiment 7
Sélectionner des locataires à cette propriété
- Étage
- Nom du locataire
- Secteur
- 1ᵉʳ
- Alamo Truck Gear
- Fabrication
- 1ᵉʳ
- Artel Furniture
- Détaillant
- 1ᵉʳ
- D&K Distributing LLC
- Transport et entreposage
- 1ᵉʳ
- Ike's Air Conditioning
- Services professionnels, scientifiques et techniques
- 1ᵉʳ
- JR's Wheels & Tires
- Services professionnels, scientifiques et techniques
Aperçu du parc
Situé à San Antonio, le parc d'affaires Bandera est conçu pour répondre à un large éventail de besoins commerciaux. La majorité des suites ont une disposition rectangulaire de base comprenant un bureau d'une seule pièce, des toilettes privées et un grand entrepôt avec une porte de niveau. Les autres ont des formes différentes, des rapports bureau/entrepôt et le nombre de portes de chargement. Bénéficiant d'une hauteur dégagée de 14 pieds et de multiples options d'aménagement, la propriété a la flexibilité nécessaire pour s'adapter aux industries telles que l'automobile, l'entreposage, la réparation générale, les salles d'exposition et les opérations de commerce électronique. Parmi les autres facteurs qui aident à simplifier les opérations, mentionnons la facilité d'accès au chargement, les grandes allées de transmission pour faciliter les manœuvres des véhicules et les coûts de CVC payés par le propriétaire, ce qui est idéal pour les petites entreprises qui cherchent à réduire les coûts d'exploitation. Situé à seulement un demi-mile de la Loop 410, le parc d'affaires Bandera offre un accès facile aux clients, aux livraisons et aux employés qui effectuent des déplacements domicile-travail. Son emplacement privilégié offre une excellente connectivité aux principaux quartiers de San Antonio, et les employés peuvent profiter des commodités à proximité comme Longtab Brewing Company, H-E-B, Office Depot, LA Fitness et GameStop, avec encore plus d'accessibilité grâce à un trajet rapide. Cette région dispose également d'une main-d'œuvre bien ciblée, car plus de 30 000 résidents travaillent dans des industries de col bleu dans un rayon de 5 milles.
Données démographiques
Accessibilité régionale
Présenté par
Bandera Business Park | San Antonio, TX 78238
Hmm, il semble y avoir eu une erreur lors de l’envoi de votre message. Veuillez réessayer.
Merci! Votre message a été envoyé.






















