Votre courriel a été envoyé.
NEW SHELBY TOWNSHIP MULTI-USE DEVELOPMENT 55133 Van Dyke Ave 1 973–37 151 pi² d'espace disponible • Shelby Township, MI 48316



Certaines informations ont été traduites automatiquement.
Faits saillants
- Custom Buildouts Available.
- 250 parking spaces.
- Highly Desirable, High Traffic Area - Close to M-53.
- Retail, Office and Restaurant Spaces will be available
Disponibilité des espaces (4)
Afficher les taux de location en
- Espace
- Taille
- Plafond
- Terme
- Taux de location
- Type de loyer
| Espace | Taille | Plafond | Terme | Taux de location | Type de loyer | |
| 1er étage, ste Offices | 10 710 pi² | 8’ | Négociable | Sur demande Sur demande Sur demande Sur demande | Négociable | |
| 1er étage, ste Restaurant | 5 990 pi² | 8’ | Négociable | Sur demande Sur demande Sur demande Sur demande | Négociable | |
| 1er étage, ste Retail | 1 973 à 12 243 pi² | - | Négociable | Sur demande Sur demande Sur demande Sur demande | À déterminer | |
| 1er étage, ste Retail | 8 208 pi² | - | Négociable | Sur demande Sur demande Sur demande Sur demande | À déterminer |
55133 Van Dyke Ave - 1er étage - ste Offices
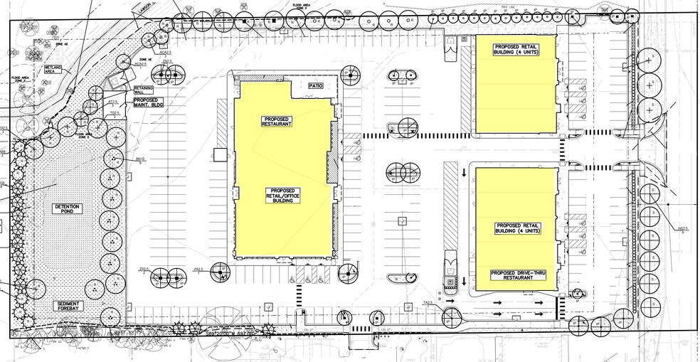
Building #1 (South Building)-- • 1,973 SF Drive Thru available • 10,270 SF Retail available Building #2 (North Building) • 8,208 SF Retail available Building #3 • 5,990 SF Restaurant available with outdoor patio • 10,710 SF Office available • 250 parking spaces. • Close proximity to M-53. • Excellent visibility along high traffic corridor with convenient access.
- Entièrement construit comme Bureau standard
- Disposition du plan d’étage ouverte en général
- Plafonds finis: 8’
- Espace en excellent état
- Air central et chauffage
- Will Divide - Construction personnalisée disponible
55133 Van Dyke Ave - 1er étage - ste Restaurant
Building #1 (South Building)--Construction starting 5/2025 ending 9/2025 • 1,973 SF Drive Thru available • 10,270 SF Retail available Building #2 (North Building) • 8,208 SF Retail available Building #3 • 5,990 SF Restaurant available with outdoor patio • 10,710 SF Office available • 250 parking spaces. • Close proximity to M-53. • Excellent visibility along high traffic corridor with convenient access.
- Entièrement construit comme Espace pour un restaurant ou un café
- Espace embout très recherché
- Espace en excellent état
- Air central et chauffage
- Plafonds finis: 8’
55133 Van Dyke Ave - 1er étage - ste Retail
55133 Van Dyke Ave in Shelby Township, MI is a Multi-building Multi-Use proposed development Located just North of 25 mile, West side of Van Dyke Avenue with Close proximity to M-53 and Excellent visibility along high traffic corridor with convenient access. Building #1 (South Building): 1,973 SF Drive Thru available, up to 10,270 SF Retail available
- L’espace est une parcelle de terrain de cette propriété
- Espace en excellent état
- Climatisation centrale
- Service au volant
- Build to suit retail/office.
55133 Van Dyke Ave - 1er étage - ste Retail
Building #2 (North Building) 8,208 SF Retail Building Available. 4-Units
- L’espace est une parcelle de terrain de cette propriété
- Espace en excellent état
- Climatisation centrale
- Build to suit.
Types de loyers
Le type et le montant du loyer que le locataire (preneur) est tenu de payer au propriétaire (bailleur) sur la durée du bail sont négociés avant la signature du bail par les deux parties. Le type de loyer varie selon les services fournis. Par exemple, le prix d’un loyer hypernet est habituellement inférieur à celui d’un bail à service complet puisque le locataire est tenu d’assumer des dépenses additionnelles par rapport au loyer de base. Contactez le courtier inscripteur pour tout connaître sur les frais connexes et additionnels associés à chaque type de loyer.
1. Service complet: Un taux de location qui comprend des services standards liés à l’immeuble fournis par le propriétaire dans le cadre d’une location annuelle de base.
2. Loyer supernet: Le locataire paie seulement deux des frais de l’immeuble. Le propriétaire et le locataire déterminent ces frais spécifiques avant la signature du bail.
3. Loyer hypernet: Un bail en vertu duquel le locataire est responsable de tous les frais liés à sa part proportionnelle d’occupation de l’immeuble.
4. Brut modifié: Le loyer brut modifié désigne un type général de taux de location dans lequel le locataire est habituellement responsable de sa part proportionnelle d’un ou de plusieurs frais. C’est le propriétaire qui paie les frais restants. Considérez les structures tarifaires courantes suivantes applicables aux loyers bruts modifiés: 4. Plus les services: Un type de bail brut modifié suivant lequel le locataire est responsable de sa part proportionnelle des coûts des services publics, en plus du loyer. 4. Plus le nettoyage: Un type de bail brut modifié suivant lequel le locataire est responsable de sa part proportionnelle des coûts de nettoyage, en plus du loyer. 4. Plus l'électricité: Un type de bail brut modifié suivant lequel le locataire est responsable de sa part proportionnelle des coûts d’électricité, en plus du loyer. 4. Plus l’électricité et le nettoyage: Un type de bail brut modifié dans lequel le locataire est responsable de sa part proportionnelle des coûts d’électricité et de nettoyage, en plus du loyer. 4. Plus les services publics et le nettoyage: Un type de bail brut modifié dans lequel le locataire est responsable de sa part proportionnelle des coûts des services publics et de nettoyage, en plus du loyer. 4. Bail industriel brut: Un type de bail brut modifié dans lequel le locataire paie un ou plusieurs des frais, en plus du loyer. Le propriétaire et le locataire déterminent ces frais spécifiques avant la signature du bail.
5. L’électricité est à la charge du locataire: Le propriétaire paie pour tous les services et le locataire est responsable de sa propre utilisation de l’éclairage et des prises électriques dans l’espace qu’il occupe.
6. Négociable ou sur demande: Cette option est utilisée lorsque le contact de location ne précise pas le type de loyer ou de service.
7. À déterminer: À déterminer ; utilisé pour les immeubles dont le type de services ou de loyer n’est pas connu, souvent quand l’immeuble n’est pas encore construit.
Faits sur la propriété
| Superficie totale disponible | 37 151 pi² | Propriétés du centre | 3 |
| Min. divisible | 1 973 pi² | Façade | 500’ le Van Dyke Ave |
| Type de centre | Centre commercial à ciel ouvert | Superficie commerciale brute | 26 441 pi² |
| Stationnement | 255 places | Superficie totale du terrain | 8,97 AC |
| Magasins | 14 | Année de construction | 2027 |
| Superficie totale disponible | 37 151 pi² |
| Min. divisible | 1 973 pi² |
| Type de centre | Centre commercial à ciel ouvert |
| Stationnement | 255 places |
| Magasins | 14 |
| Propriétés du centre | 3 |
| Façade | 500’ le Van Dyke Ave |
| Superficie commerciale brute | 26 441 pi² |
| Superficie totale du terrain | 8,97 AC |
| Année de construction | 2027 |
À propos de la propriété
Bâtiment #1 (Édifice Sud) • Disque dur de 1 973 SF disponible • 10 270 SF au détail disponibles Bâtiment #2 (Édifice Nord) • 8 208 Pièce (s) au détail disponible Bâtiment #3 • Restaurant de 5 990 pieds pieds 2 disponible avec terrasse extérieure • Bureau de 10 710 SF disponible • 250 places de stationnement. • Proche de la M-53. • Excellente visibilité le long des couloirs à forte circulation avec un accès pratique.
Principaux détaillants à proximité
Présenté par
NEW SHELBY TOWNSHIP MULTI-USE DEVELOPMENT | 55133 Van Dyke Ave
Hmm, il semble y avoir eu une erreur lors de l’envoi de votre message. Veuillez réessayer.
Merci! Votre message a été envoyé.








