Votre courriel a été envoyé.
Certaines informations ont été traduites automatiquement.
FAITS SAILLANTS DE LA SOUS-LOCATION
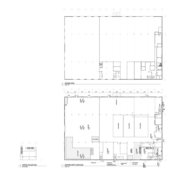
- 65 235 SF, Rez de chaussée : 51 354 SF, Mezzanine : 13 881 SF
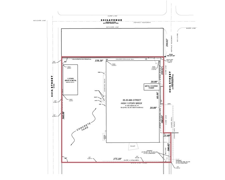
- Taille du lot : 2,86 acres, Dimensions du lot : 360' x 350'
- Entièrement giclé, disponible mi-2022
- 5 portes de quai, 1 porte de niveau, hauteur claire de 25 pi (hauteur du plafond de 31 pi)
- Dimensions du bâtiment : 282 pi x 182 pi, grand espacement entre les colonnes
CARACTÉRISTIQUES
TOUS LES ESPACES DISPONIBLES(1)
Afficher les taux de location en
- ESPACE
- TAILLE
- TERME
- TAUX DE LOCATION
- UTILISATION DE L’ESPACE
- ÉTAT
- DISPONIBLE
Ground Floor 51,354 SF & Mezzanine 13,881 SF for a total of 65,235 SF of Industrial space on 2.86 acre lot. 5 dock doors, 1 grade level door with 25' clear height (31' ceiling height). Available mid-2022.
- Espace de sous-location disponible auprès du locataire actuel
- Possibilité de construction complète
- Accès facile aux I-278 et I-495
| Espace | Taille | Terme | Taux de location | Utilisation de l’espace | État | Disponible |
| 1er étage | 51 354 pi² | Mai 2032 | Sur demande Sur demande Sur demande Sur demande | Industriel | construction partielle | Maintenant |
1er étage
| Taille |
| 51 354 pi² |
| Terme |
| Mai 2032 |
| Taux de location |
| Sur demande Sur demande Sur demande Sur demande |
| Utilisation de l’espace |
| Industriel |
| État |
| construction partielle |
| Disponible |
| Maintenant |
1er étage
| Taille | 51 354 pi² |
| Terme | Mai 2032 |
| Taux de location | Sur demande |
| Utilisation de l’espace | Industriel |
| État | construction partielle |
| Disponible | Maintenant |
Ground Floor 51,354 SF & Mezzanine 13,881 SF for a total of 65,235 SF of Industrial space on 2.86 acre lot. 5 dock doors, 1 grade level door with 25' clear height (31' ceiling height). Available mid-2022.
- Espace de sous-location disponible auprès du locataire actuel
- Accès facile aux I-278 et I-495
- Possibilité de construction complète
APERÇU DE LA PROPRIÉTÉ
Installation de distribution à plafond élevé de 65 235 pc sur un lot d'environ 124 500 pc Disponible à la mi-2022 pour la sous-location Bien qu'il ait déjà été utilisé comme concessionnaire d'automobiles, le certificat d'occupation permet les catégories 15 et 16, ce qui permet une utilisation supplémentaire possible d'inclure : entrepôt, cueillette, emballage/expédition, distribution et plus encore.
FAITS SUR L’INSTALLATION DISTRIBUTION
Présenté par
5530 46th St
Hmm, il semble y avoir eu une erreur lors de l’envoi de votre message. Veuillez réessayer.
Merci! Votre message a été envoyé.






