Votre courriel a été envoyé.
Certaines informations ont été traduites automatiquement.
Faits saillants
- Flexible suite size: ±4,733 SF, divisible to ±2,366 SF
- Four (4) private offices and Two (2) Restrooms
- Insulated
- Approximately 15-foot clear ceiling height in warehouse areas, maximizing vertical storage and operational flexibility
- Power: 200 AMPS (Tenant to confirm)
- HVAC system
Caractéristiques
Tous les espaces disponibles(1)
Afficher les taux de location en
- Espace
- Taille
- Terme
- Taux de location
- Utilisation de l’espace
- Aménagement
- Disponible
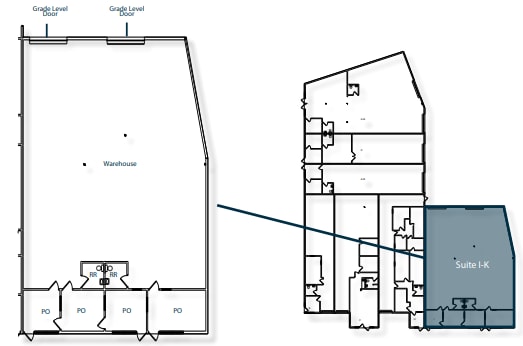
Suite I-K at 5542 Brisa Street is designed for versatility, offering a blend of warehouse and office space that can be tailored to a variety of industrial or manufacturing operations. The suite’s two grade-level doors facilitate smooth logistics, while the clear ceiling heights provide ample room for racking or equipment. The office component includes four private offices, ideal for management or administrative teams, and two restrooms for staff convenience. The property’s infrastructure supports a range of business activities, with robust power, HVAC, and fire safety systems in place.
- Le taux inscrit peut ne pas comprendre certains services publics, les services de bâtiment et les dépenses immobilières.
- Bureaux partitionnés
- 4 private offices
- 2 grade level doors
- 2 accès plain-pied
- Salle de bains privée
- 2 restrooms
- Call listing brokers for more information.
| Espace | Taille | Terme | Taux de location | Utilisation de l’espace | Aménagement | Disponible |
| 1er étage - 5542 | 2 366 à 4 733 pi² | Négociable | 26,25 $ CAD/pi²/an 2,19 $ CAD/pi²/mois 124 219 $ CAD/an 10 352 $ CAD/mois | Industriel | construction partielle | Maintenant |
1er étage - 5542
| Taille |
| 2 366 à 4 733 pi² |
| Terme |
| Négociable |
| Taux de location |
| 26,25 $ CAD/pi²/an 2,19 $ CAD/pi²/mois 124 219 $ CAD/an 10 352 $ CAD/mois |
| Utilisation de l’espace |
| Industriel |
| Aménagement |
| construction partielle |
| Disponible |
| Maintenant |
1er étage - 5542
| Taille | 2 366 à 4 733 pi² |
| Terme | Négociable |
| Taux de location | 26,25 $ CAD/pi²/an |
| Utilisation de l’espace | Industriel |
| Aménagement | construction partielle |
| Disponible | Maintenant |
Suite I-K at 5542 Brisa Street is designed for versatility, offering a blend of warehouse and office space that can be tailored to a variety of industrial or manufacturing operations. The suite’s two grade-level doors facilitate smooth logistics, while the clear ceiling heights provide ample room for racking or equipment. The office component includes four private offices, ideal for management or administrative teams, and two restrooms for staff convenience. The property’s infrastructure supports a range of business activities, with robust power, HVAC, and fire safety systems in place.
- Le taux inscrit peut ne pas comprendre certains services publics, les services de bâtiment et les dépenses immobilières.
- 2 accès plain-pied
- Bureaux partitionnés
- Salle de bains privée
- 4 private offices
- 2 restrooms
- 2 grade level doors
- Call listing brokers for more information.
Aperçu de la propriété
5542 Brisa Street, Suite I-K, Livermore, CA, offers a premier light industrial and manufacturing opportunity in the heart of the East Bay’s thriving industrial corridor. This flexible ±4,733 square foot office/warehouse suite can be demised to ±2,366 square feet to accommodate a range of tenant requirements. The property features a modern façade, efficient layout, and robust infrastructure, making it ideal for businesses seeking a strategic location with excellent regional and West Coast connectivity. With immediate access to major transportation routes and proximity to key ports and airports, this facility supports seamless logistics and distribution operations. The suite is professionally managed by Lee & Associates, ensuring responsive service and a high standard of property maintenance.
Faits sur l’installation entrepôt
Sélectionner des locataires
- Étage
- Nom du locataire
- Secteur
- 1ᵉʳ
- Eagle Air Conditioning
- Construction
- 1ᵉʳ
- EagleAir
- Services
- 1ᵉʳ
- J B Mechanical Inc
- Grossiste
- 1ᵉʳ
- J W Sweetness Llc
- Détaillant
- 1ᵉʳ
- Mechanical Air Service Corp
- Construction
- 1ᵉʳ
- Sidecar Sports Ltd
- Détaillant
- 1ᵉʳ
- Working Man Brewing Co
- Fabrication
Présenté par
5542 Brisa St
Hmm, il semble y avoir eu une erreur lors de l’envoi de votre message. Veuillez réessayer.
Merci! Votre message a été envoyé.





