Votre courriel a été envoyé.
Certaines informations ont été traduites automatiquement.
Faits saillants
- LEED Platinum certified Class A tower with panoramic Bay views and efficient, modern floor plates.
- Premier South Financial District location with immediate access to retail, dining, culture, and major transit.
- Exceptional amenity center offering fitness, wellness, golf simulator, conferencing, and entertainment spaces.
- Floor-to-ceiling glass architecture designed by renowned firms Kohn Pedersen Fox and Heller Manus.
Tous les espaces disponibles(8)
Afficher les taux de location en
- Espace
- Taille
- Terme
- Taux de location
- Utilisation de l’espace
- Aménagement
- Disponible
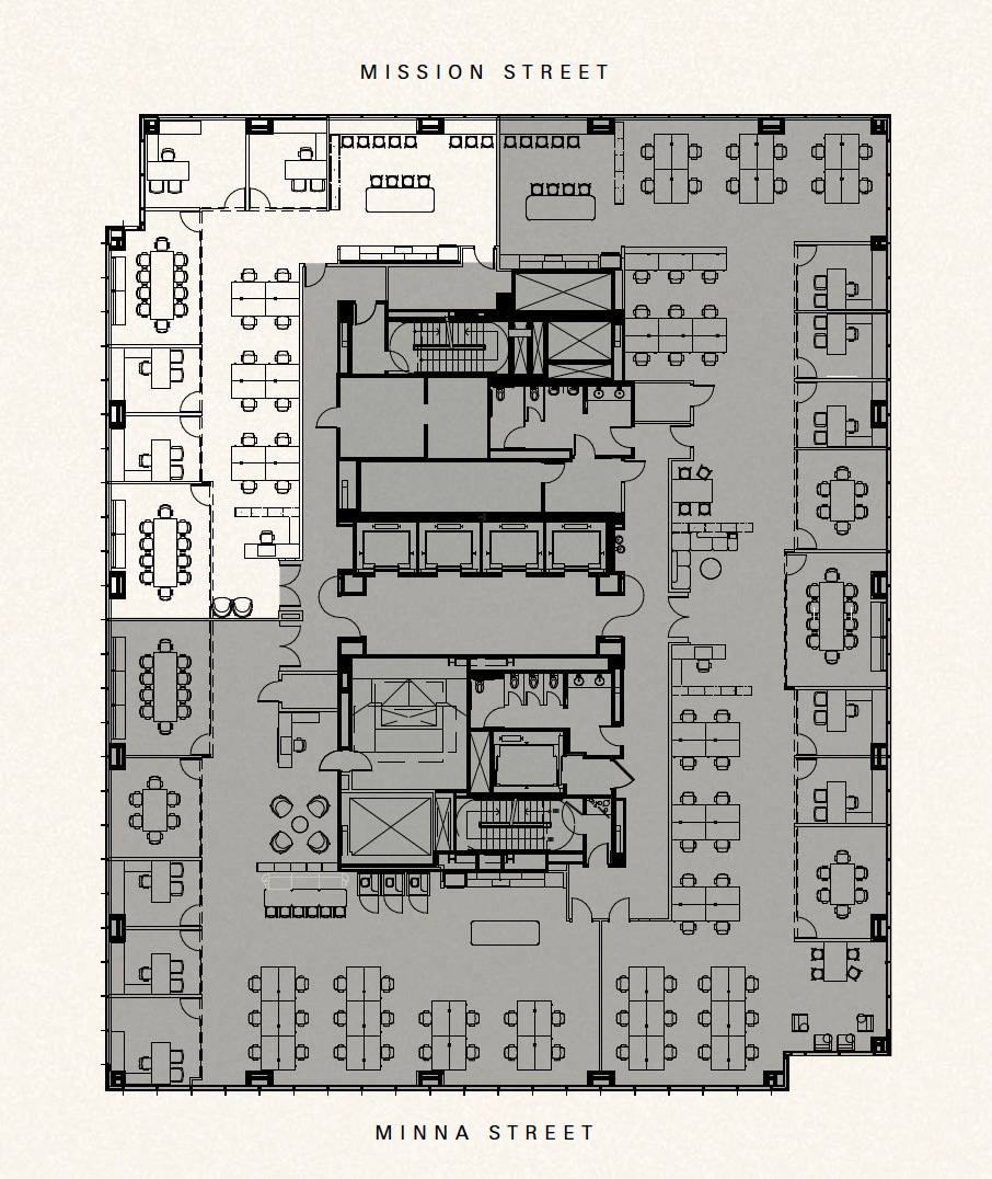
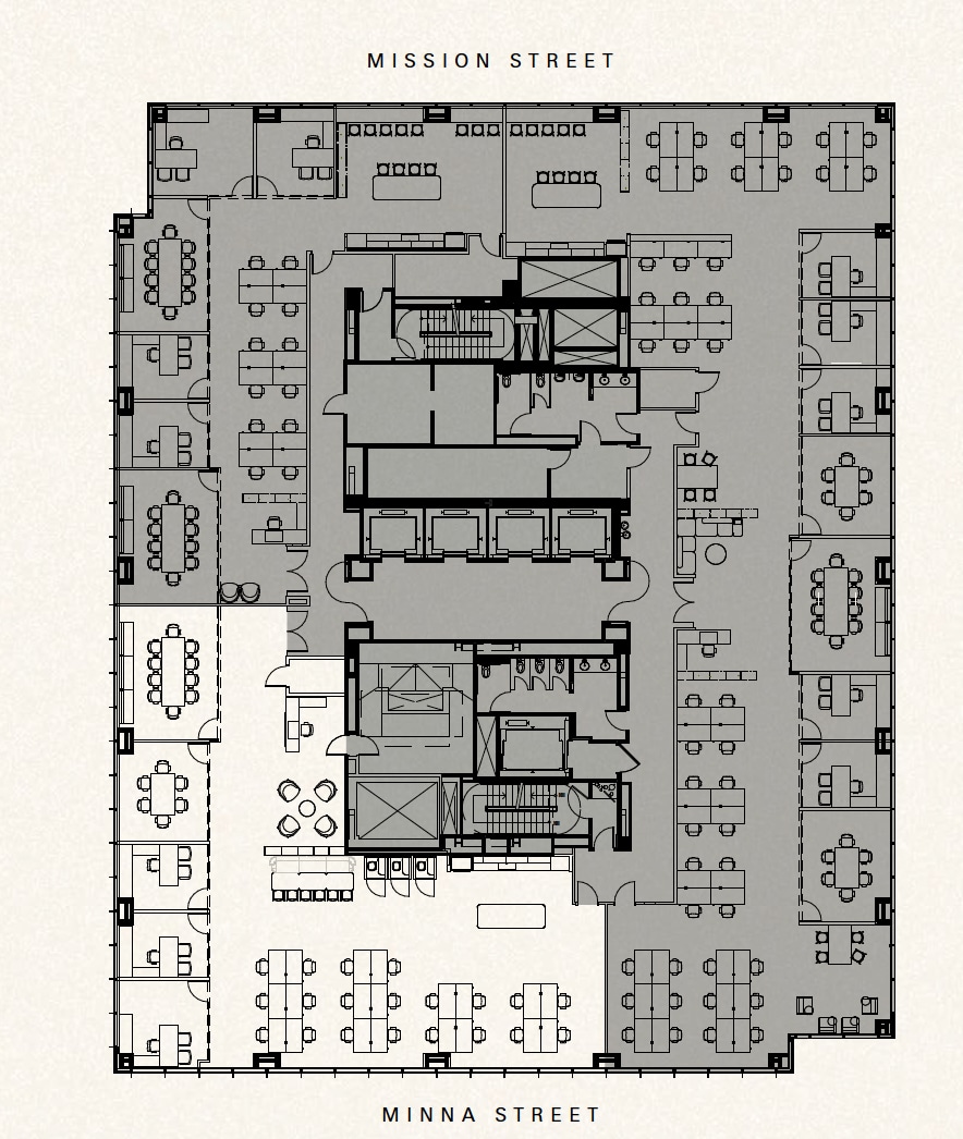
This creative floor includes high exposed ceilings, plaza views, five private offices, seven conference rooms, three phone rooms, two copy rooms, two kitchens, and an open plan layout.
- Entièrement construit comme Bureau standard
- 5 bureaux privés
- Plafonds finis: 10’ - 11’
- Plafond exposé
- Vues sur la Plaza
- Disposition du plan d’étage ouverte
- 7 salles de conférence
- Espace en excellent état
- Plan ouvert
Available 9/1/26, Brand new spec suite, Creative open plan, Exposed ceiling, Abundant natural light, 2 medium conference rooms, Kitchen, and Storage/IT room
- Disposition du plan d’étage ouverte en général
- 1 salle de conférence
- Espace en excellent état
- Salle d’impression/Photocopie
- Entreposage sécurisé
- Quantité abondante de lumière
- 2 bureaux privés
- Plafonds finis: 10’ - 11’
- Accès aux ascenseurs
- Plafond exposé
- Lumière naturelle
This provide abundant natural light along with four private offices, four conference rooms, a kitchen and break area, a copy and print room, a storage and IT room, a mother’s room, three phone rooms, and double-door identity off the elevator lobby.
- Entièrement construit comme Bureau standard
- 4 bureaux privés
- Plafonds finis: 10’ - 11’
- Accès aux ascenseurs
- Entreposage sécurisé
- Disposition du plan d’étage ouverte en général
- 4 salles de conférence
- Espace en excellent état
- Salle d’impression/Photocopie
- Lumière naturelle
Available on 05/01/27, 45 private Offices, 12 workstations, 4 conference rooms, Kitchenette, and 2 teams rooms
- Entièrement construit comme Bureau standard
- 45 bureaux privés
- 12 postes de travail
- Disposition du plan d’étage ouverte en général
- 4 salles de conférence
This brand-new creative spec suite features exposed ceilings, seven private offices, three conference rooms, an IT and storage closet, a reception area, an open work area with space for twenty-four workstations, and double-door identity.
- Disposition du plan d’étage ouverte
- 2 salles de conférence
- Plafonds finis: 10’ - 11’
- Aire de réception
- Salle d’impression/Photocopie
- Identité à deux portes
- 15 bureaux privés
- 24 postes de travail
- Espace en excellent état
- Accès aux ascenseurs
- Plafond exposé
Brand new spec suite, Incredible views, 5 private offices, 3 conference rooms, Kitchen / Break Area, Reception, and IT/storage/copy room
- Entièrement construit comme Bureau standard
- 5 bureaux privés
- Plafonds finis: 10’ - 11’
- Aire de réception
- Plafond exposé
- Points de vue exceptionnels
- Disposition du plan d’étage ouverte en général
- 3 salles de conférence
- Espace en excellent état
- Salle d’impression/Photocopie
- Entreposage sécurisé
Brand new spec suite, Incredible views, 2 private offices, 2 conference rooms, Kitchen / Break area, and Reception
- Disposition du plan d’étage ouverte
- 2 salles de conférence
- 2 bureaux privés
- Aire de réception
Brand new spec suite, Incredible views, 3 private offices, 2 conference rooms, Kitchen / break area, Reception, and IT/storage/copy room
- Disposition du plan d’étage ouverte
- Aire de réception
- Entreposage sécurisé
- 3 bureaux privés
- Salle d’impression/Photocopie
| Espace | Taille | Terme | Taux de location | Utilisation de l’espace | Aménagement | Disponible |
| 3e étage, ste 300 | 10 000 à 21 582 pi² | Négociable | Sur demande Sur demande Sur demande Sur demande | Bureau | construction complète | 2027-07-01 |
| 18e étage, ste 1850 | 4 176 pi² | Négociable | Sur demande Sur demande Sur demande Sur demande | Bureau | selon spécifications | Maintenant |
| 19e étage, ste 1950 | 9 836 pi² | Négociable | Sur demande Sur demande Sur demande Sur demande | Bureau | construction complète | Maintenant |
| 25e étage, ste 2500 | 16 148 pi² | Négociable | Sur demande Sur demande Sur demande Sur demande | Bureau | construction complète | 2027-02-01 |
| 26e étage, ste 2600 | 7 585 pi² | Négociable | Sur demande Sur demande Sur demande Sur demande | Bureau | selon spécifications | Maintenant |
| 27e étage, ste 2700 | 7 492 pi² | Négociable | Sur demande Sur demande Sur demande Sur demande | Bureau | construction complète | 2026-10-01 |
| 27e étage, ste 2725 | 3 790 pi² | Négociable | Sur demande Sur demande Sur demande Sur demande | Bureau | selon spécifications | 2026-10-01 |
| 27e étage, ste 2750 | 4 913 pi² | Négociable | Sur demande Sur demande Sur demande Sur demande | Bureau | selon spécifications | 2026-10-01 |
3e étage, ste 300
| Taille |
| 10 000 à 21 582 pi² |
| Terme |
| Négociable |
| Taux de location |
| Sur demande Sur demande Sur demande Sur demande |
| Utilisation de l’espace |
| Bureau |
| Aménagement |
| construction complète |
| Disponible |
| 2027-07-01 |
18e étage, ste 1850
| Taille |
| 4 176 pi² |
| Terme |
| Négociable |
| Taux de location |
| Sur demande Sur demande Sur demande Sur demande |
| Utilisation de l’espace |
| Bureau |
| Aménagement |
| selon spécifications |
| Disponible |
| Maintenant |
19e étage, ste 1950
| Taille |
| 9 836 pi² |
| Terme |
| Négociable |
| Taux de location |
| Sur demande Sur demande Sur demande Sur demande |
| Utilisation de l’espace |
| Bureau |
| Aménagement |
| construction complète |
| Disponible |
| Maintenant |
25e étage, ste 2500
| Taille |
| 16 148 pi² |
| Terme |
| Négociable |
| Taux de location |
| Sur demande Sur demande Sur demande Sur demande |
| Utilisation de l’espace |
| Bureau |
| Aménagement |
| construction complète |
| Disponible |
| 2027-02-01 |
26e étage, ste 2600
| Taille |
| 7 585 pi² |
| Terme |
| Négociable |
| Taux de location |
| Sur demande Sur demande Sur demande Sur demande |
| Utilisation de l’espace |
| Bureau |
| Aménagement |
| selon spécifications |
| Disponible |
| Maintenant |
27e étage, ste 2700
| Taille |
| 7 492 pi² |
| Terme |
| Négociable |
| Taux de location |
| Sur demande Sur demande Sur demande Sur demande |
| Utilisation de l’espace |
| Bureau |
| Aménagement |
| construction complète |
| Disponible |
| 2026-10-01 |
27e étage, ste 2725
| Taille |
| 3 790 pi² |
| Terme |
| Négociable |
| Taux de location |
| Sur demande Sur demande Sur demande Sur demande |
| Utilisation de l’espace |
| Bureau |
| Aménagement |
| selon spécifications |
| Disponible |
| 2026-10-01 |
27e étage, ste 2750
| Taille |
| 4 913 pi² |
| Terme |
| Négociable |
| Taux de location |
| Sur demande Sur demande Sur demande Sur demande |
| Utilisation de l’espace |
| Bureau |
| Aménagement |
| selon spécifications |
| Disponible |
| 2026-10-01 |
3e étage, ste 300
| Taille | 10 000 à 21 582 pi² |
| Terme | Négociable |
| Taux de location | Sur demande |
| Utilisation de l’espace | Bureau |
| Aménagement | construction complète |
| Disponible | 2027-07-01 |
This creative floor includes high exposed ceilings, plaza views, five private offices, seven conference rooms, three phone rooms, two copy rooms, two kitchens, and an open plan layout.
- Entièrement construit comme Bureau standard
- Disposition du plan d’étage ouverte
- 5 bureaux privés
- 7 salles de conférence
- Plafonds finis: 10’ - 11’
- Espace en excellent état
- Plafond exposé
- Plan ouvert
- Vues sur la Plaza
18e étage, ste 1850
| Taille | 4 176 pi² |
| Terme | Négociable |
| Taux de location | Sur demande |
| Utilisation de l’espace | Bureau |
| Aménagement | selon spécifications |
| Disponible | Maintenant |
Available 9/1/26, Brand new spec suite, Creative open plan, Exposed ceiling, Abundant natural light, 2 medium conference rooms, Kitchen, and Storage/IT room
- Disposition du plan d’étage ouverte en général
- 2 bureaux privés
- 1 salle de conférence
- Plafonds finis: 10’ - 11’
- Espace en excellent état
- Accès aux ascenseurs
- Salle d’impression/Photocopie
- Plafond exposé
- Entreposage sécurisé
- Lumière naturelle
- Quantité abondante de lumière
19e étage, ste 1950
| Taille | 9 836 pi² |
| Terme | Négociable |
| Taux de location | Sur demande |
| Utilisation de l’espace | Bureau |
| Aménagement | construction complète |
| Disponible | Maintenant |
This provide abundant natural light along with four private offices, four conference rooms, a kitchen and break area, a copy and print room, a storage and IT room, a mother’s room, three phone rooms, and double-door identity off the elevator lobby.
- Entièrement construit comme Bureau standard
- Disposition du plan d’étage ouverte en général
- 4 bureaux privés
- 4 salles de conférence
- Plafonds finis: 10’ - 11’
- Espace en excellent état
- Accès aux ascenseurs
- Salle d’impression/Photocopie
- Entreposage sécurisé
- Lumière naturelle
25e étage, ste 2500
| Taille | 16 148 pi² |
| Terme | Négociable |
| Taux de location | Sur demande |
| Utilisation de l’espace | Bureau |
| Aménagement | construction complète |
| Disponible | 2027-02-01 |
Available on 05/01/27, 45 private Offices, 12 workstations, 4 conference rooms, Kitchenette, and 2 teams rooms
- Entièrement construit comme Bureau standard
- Disposition du plan d’étage ouverte en général
- 45 bureaux privés
- 4 salles de conférence
- 12 postes de travail
26e étage, ste 2600
| Taille | 7 585 pi² |
| Terme | Négociable |
| Taux de location | Sur demande |
| Utilisation de l’espace | Bureau |
| Aménagement | selon spécifications |
| Disponible | Maintenant |
This brand-new creative spec suite features exposed ceilings, seven private offices, three conference rooms, an IT and storage closet, a reception area, an open work area with space for twenty-four workstations, and double-door identity.
- Disposition du plan d’étage ouverte
- 15 bureaux privés
- 2 salles de conférence
- 24 postes de travail
- Plafonds finis: 10’ - 11’
- Espace en excellent état
- Aire de réception
- Accès aux ascenseurs
- Salle d’impression/Photocopie
- Plafond exposé
- Identité à deux portes
27e étage, ste 2700
| Taille | 7 492 pi² |
| Terme | Négociable |
| Taux de location | Sur demande |
| Utilisation de l’espace | Bureau |
| Aménagement | construction complète |
| Disponible | 2026-10-01 |
Brand new spec suite, Incredible views, 5 private offices, 3 conference rooms, Kitchen / Break Area, Reception, and IT/storage/copy room
- Entièrement construit comme Bureau standard
- Disposition du plan d’étage ouverte en général
- 5 bureaux privés
- 3 salles de conférence
- Plafonds finis: 10’ - 11’
- Espace en excellent état
- Aire de réception
- Salle d’impression/Photocopie
- Plafond exposé
- Entreposage sécurisé
- Points de vue exceptionnels
27e étage, ste 2725
| Taille | 3 790 pi² |
| Terme | Négociable |
| Taux de location | Sur demande |
| Utilisation de l’espace | Bureau |
| Aménagement | selon spécifications |
| Disponible | 2026-10-01 |
Brand new spec suite, Incredible views, 2 private offices, 2 conference rooms, Kitchen / Break area, and Reception
- Disposition du plan d’étage ouverte
- 2 bureaux privés
- 2 salles de conférence
- Aire de réception
27e étage, ste 2750
| Taille | 4 913 pi² |
| Terme | Négociable |
| Taux de location | Sur demande |
| Utilisation de l’espace | Bureau |
| Aménagement | selon spécifications |
| Disponible | 2026-10-01 |
Brand new spec suite, Incredible views, 3 private offices, 2 conference rooms, Kitchen / break area, Reception, and IT/storage/copy room
- Disposition du plan d’étage ouverte
- 3 bureaux privés
- Aire de réception
- Salle d’impression/Photocopie
- Entreposage sécurisé
Aperçu de la propriété
555 Mission Street stands as a signature Class A tower in San Francisco’s South Financial District, celebrated for its floor-to-ceiling glass façade, illuminated crown, and striking architectural presence crafted by Kohn Pedersen Fox and Heller Manus Architects. The building’s efficient floor plates, panoramic Bay views, and 13-foot ceiling heights create a modern workplace environment that blends functionality with aesthetic appeal. Tenants benefit from a robust amenity center that includes a state-of-the-art fitness facility, golf simulator and lounge, conference center, entertainment bar, wellness rooms, and flexible work suites, all supported by on-site property management and 24-hour security. Positioned amid a vibrant mix of retail, dining, cultural venues, and strong transit connections, 555 Mission Street offers an elevated tenant experience in one of the city’s most sought-after commercial corridors.
- Accès 24 heures
- Atrium
- Banque
- Ligne d'autobus
- Accès contrôlé
- Train de banlieue
- Cour
- Métro
- Gestionnaire d'immeuble sur place
- Système de sécurité
- Certifié Energy Star
- Terrasse sur le toit
- Hauts plafonds
- Lumière naturelle
- Affichage sur monument
- Sièges extérieurs
- Climatisation
- Balcon
Faits sur la propriété
Durabilité
Durabilité
Certification LEED Établi par le U.S. Green Building Council (USGBC, Conseil américain du bâtiment durable), le programme de certification LEED (Leadership in Energy and Environmental Design) est axé sur la conception, la construction, l’exploitation et l’entretien de bâtiments, de maisons et de quartiers écologiques. Sa vocation est d’aider les propriétaires et les exploitants à adopter des pratiques écoresponsables et à utiliser les ressources de façon efficace. La certification LEED est un symbole mondialement reconnu de réussite et de leadership en matière de développement durable. Pour obtenir la certification LEED, un projet doit obtenir des points en respectant des conditions préalables et un barème de crédits qui tiennent compte des émissions de carbone, de l’énergie, de l’eau, des déchets, du transport, des matériaux, de la santé et de la qualité de l’environnement intérieur. Les projets passent par un processus de vérification et d’évaluation et reçoivent un pointage correspondant à un niveau de certification LEED: Platine (80 points et plus) Or (60 à 79 points) Silver (50-59 points) Certifié (40 à 49 points)
Présenté par
555 Mission St
Hmm, il semble y avoir eu une erreur lors de l’envoi de votre message. Veuillez réessayer.
Merci! Votre message a été envoyé.



















