Se Connecter/S’inscrire
Votre courriel a été envoyé.
Medical/Professional Space for Lease 555 Petaluma Ave 1 230 pi² d'espace disponible • Bureau/Médical • Sebastopol, CA 95472



Certaines informations ont été traduites automatiquement.
Tous les espaces disponibles(1)
Afficher les taux de location en
- Espace
- Taille
- Terme
- Taux de location
- Utilisation de l’espace
- Aménagement
- Disponible
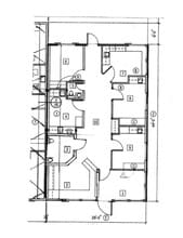
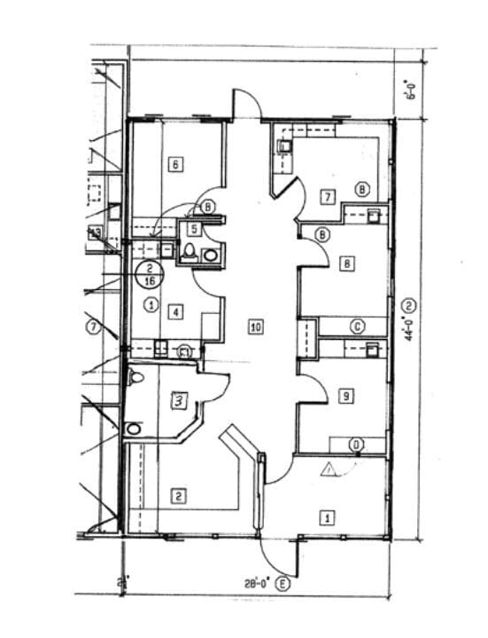
1,230 square foot of mostly open office space with private rooms available.
- Le taux inscrit peut ne pas comprendre certains services publics, les services de bâtiment et les dépenses immobilières.
- Disposition du plan d’étage ouverte en général
- 5 bureaux privés
- Salle de bains privée
- Lumière naturelle
- Great for many medical or professional users
- Entièrement construit comme Bureau standard
- Convient pour 4 à 10 personnes
- Plafonds finis: 12’
- Hauts plafonds
- Great for many medical or professional users
| Espace | Taille | Terme | Taux de location | Utilisation de l’espace | Aménagement | Disponible |
| 1er étage | 1 230 pi² | Négociable | 36,95 $ CAD/pi²/an 3,08 $ CAD/pi²/mois 45 448 $ CAD/an 3 787 $ CAD/mois | Bureau/Médical | construction complète | Maintenant |
1er étage
| Taille |
| 1 230 pi² |
| Terme |
| Négociable |
| Taux de location |
| 36,95 $ CAD/pi²/an 3,08 $ CAD/pi²/mois 45 448 $ CAD/an 3 787 $ CAD/mois |
| Utilisation de l’espace |
| Bureau/Médical |
| Aménagement |
| construction complète |
| Disponible |
| Maintenant |
1 de 1
Vidéos
Visite extérieure 3D Matterport
Visite 3D Matterport
Photos
Vue depuis la rue
Rue
Carte
1er étage
| Taille | 1 230 pi² |
| Terme | Négociable |
| Taux de location | 36,95 $ CAD/pi²/an |
| Utilisation de l’espace | Bureau/Médical |
| Aménagement | construction complète |
| Disponible | Maintenant |
1,230 square foot of mostly open office space with private rooms available.
- Le taux inscrit peut ne pas comprendre certains services publics, les services de bâtiment et les dépenses immobilières.
- Entièrement construit comme Bureau standard
- Disposition du plan d’étage ouverte en général
- Convient pour 4 à 10 personnes
- 5 bureaux privés
- Plafonds finis: 12’
- Salle de bains privée
- Hauts plafonds
- Lumière naturelle
- Great for many medical or professional users
- Great for many medical or professional users
Faits sur la propriété
Type de bâtiment
Bureau
Année de construction
1990
Hauteur du bâtiment
1 étage
Taille du bâtiment
8 172 pi²
Classe d’immeuble
B
Superficie de plancher typique
8 172 pi²
Stationnement
10 places de stationnement surface
1 1
Assez practicable à pied
50/100
Moyennement facile d'accès en voiture
70/100
Transports en commun limités
30/100
Assez praticable en vélo
30/100
1 de 6
Vidéos
Visite extérieure 3D Matterport
Visite 3D Matterport
Photos
Vue depuis la rue
Rue
Carte
1 de 1
Présenté par
Medical/Professional Space for Lease | 555 Petaluma Ave
Vous êtes déjà membre? Connectez-vous
Hmm, il semble y avoir eu une erreur lors de l’envoi de votre message. Veuillez réessayer.
Merci! Votre message a été envoyé.


