Votre courriel a été envoyé.
Certaines informations ont été traduites automatiquement.
Faits saillants
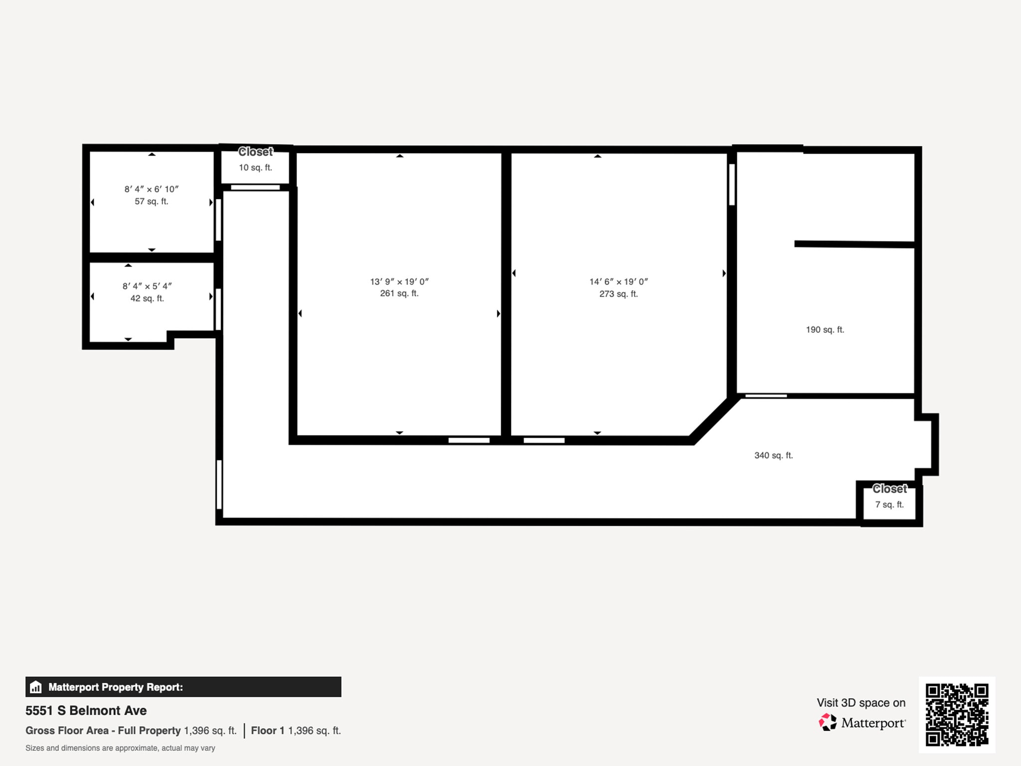
- Three (3) private offices
- Immediate access to I-69 and I-465
- Brand new fixtures and paint within the space
- Private security system
- Signage available facing S Belmont Ave
- Five (5) parking spots available on site
Caractéristiques
Tous les espaces disponibles(1)
Afficher les taux de location en
- Espace
- Taille
- Terme
- Taux de location
- Utilisation de l’espace
- Aménagement
- Disponible
1,200 SF first-floor office space for lease at 5551 S Belmont Ave. Space has excellent visibility from S Belmont Ave, and immediate connectivity to I-69 and I-465.
- Le taux comprend les services publics, les services de bâtiment et les dépenses immobilières.
- Three (3) private offices
- Immediate access to I-69 and I-465
- Brand new fixtures and paint within the space
- 3 bureaux privés
- Private security system
- Signage available facing S Belmont Ave
- Five (5) parking spots available on site
| Espace | Taille | Terme | Taux de location | Utilisation de l’espace | Aménagement | Disponible |
| 1er étage | 1 200 pi² | Négociable | 24,44 $ CAD/pi²/an 2,04 $ CAD/pi²/mois 29 333 $ CAD/an 2 444 $ CAD/mois | Bureau | construction complète | Maintenant |
1er étage
| Taille |
| 1 200 pi² |
| Terme |
| Négociable |
| Taux de location |
| 24,44 $ CAD/pi²/an 2,04 $ CAD/pi²/mois 29 333 $ CAD/an 2 444 $ CAD/mois |
| Utilisation de l’espace |
| Bureau |
| Aménagement |
| construction complète |
| Disponible |
| Maintenant |
1er étage
| Taille | 1 200 pi² |
| Terme | Négociable |
| Taux de location | 24,44 $ CAD/pi²/an |
| Utilisation de l’espace | Bureau |
| Aménagement | construction complète |
| Disponible | Maintenant |
1,200 SF first-floor office space for lease at 5551 S Belmont Ave. Space has excellent visibility from S Belmont Ave, and immediate connectivity to I-69 and I-465.
- Le taux comprend les services publics, les services de bâtiment et les dépenses immobilières.
- 3 bureaux privés
- Three (3) private offices
- Private security system
- Immediate access to I-69 and I-465
- Signage available facing S Belmont Ave
- Brand new fixtures and paint within the space
- Five (5) parking spots available on site
Aperçu de la propriété
1,200 SF first-floor office space for lease at 5551 S Belmont Ave. Space has excellent visibility from S Belmont Ave, and immediate connectivity to I-69 and I-465.
Faits sur l’installation entrepôt
Présenté par
5551 S Belmont Ave
Hmm, il semble y avoir eu une erreur lors de l’envoi de votre message. Veuillez réessayer.
Merci! Votre message a été envoyé.





