Votre courriel a été envoyé.
Washington Square 562 E Washington St 1 500–6 570 pi² d'espace disponible • Bureau/Médical • North Attleboro, MA 02760



Certaines informations ont été traduites automatiquement.
Disponibilité de l’espace (1)
Afficher les taux de location en
- Espace
- Taille
- Terme
- Taux de location
- Type de loyer
| Espace | Taille | Terme | Taux de location | Type de loyer | ||
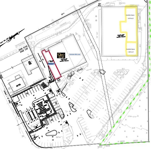
| 1er étage, ste 562 | 1 500 à 6 570 pi² | 1-5 ans | Sur demande Sur demande Sur demande Sur demande | Loyer hypernet |
562 E Washington St - 1er étage - ste 562
1,500-6,570 sq ft available. Zoned C-30.
- Le taux de location ne comprend pas les services publics, les services de bâtiment ou les dépenses immobilières.
- Partiellement construit comme Bureau standard
- Disposition du plan d’étage ouverte en général
- Convient pour 4 à 53 personnes
- Air central et chauffage
- Established business location
Types de loyers
Le type et le montant du loyer que le locataire (preneur) est tenu de payer au propriétaire (bailleur) sur la durée du bail sont négociés avant la signature du bail par les deux parties. Le type de loyer varie selon les services fournis. Par exemple, le prix d’un loyer hypernet est habituellement inférieur à celui d’un bail à service complet puisque le locataire est tenu d’assumer des dépenses additionnelles par rapport au loyer de base. Contactez le courtier inscripteur pour tout connaître sur les frais connexes et additionnels associés à chaque type de loyer.
1. Service complet: Un taux de location qui comprend des services standards liés à l’immeuble fournis par le propriétaire dans le cadre d’une location annuelle de base.
2. Loyer supernet: Le locataire paie seulement deux des frais de l’immeuble. Le propriétaire et le locataire déterminent ces frais spécifiques avant la signature du bail.
3. Loyer hypernet: Un bail en vertu duquel le locataire est responsable de tous les frais liés à sa part proportionnelle d’occupation de l’immeuble.
4. Brut modifié: Le loyer brut modifié désigne un type général de taux de location dans lequel le locataire est habituellement responsable de sa part proportionnelle d’un ou de plusieurs frais. C’est le propriétaire qui paie les frais restants. Considérez les structures tarifaires courantes suivantes applicables aux loyers bruts modifiés: 4. Plus les services: Un type de bail brut modifié suivant lequel le locataire est responsable de sa part proportionnelle des coûts des services publics, en plus du loyer. 4. Plus le nettoyage: Un type de bail brut modifié suivant lequel le locataire est responsable de sa part proportionnelle des coûts de nettoyage, en plus du loyer. 4. Plus l'électricité: Un type de bail brut modifié suivant lequel le locataire est responsable de sa part proportionnelle des coûts d’électricité, en plus du loyer. 4. Plus l’électricité et le nettoyage: Un type de bail brut modifié dans lequel le locataire est responsable de sa part proportionnelle des coûts d’électricité et de nettoyage, en plus du loyer. 4. Plus les services publics et le nettoyage: Un type de bail brut modifié dans lequel le locataire est responsable de sa part proportionnelle des coûts des services publics et de nettoyage, en plus du loyer. 4. Bail industriel brut: Un type de bail brut modifié dans lequel le locataire paie un ou plusieurs des frais, en plus du loyer. Le propriétaire et le locataire déterminent ces frais spécifiques avant la signature du bail.
5. L’électricité est à la charge du locataire: Le propriétaire paie pour tous les services et le locataire est responsable de sa propre utilisation de l’éclairage et des prises électriques dans l’espace qu’il occupe.
6. Négociable ou sur demande: Cette option est utilisée lorsque le contact de location ne précise pas le type de loyer ou de service.
7. À déterminer: À déterminer ; utilisé pour les immeubles dont le type de services ou de loyer n’est pas connu, souvent quand l’immeuble n’est pas encore construit.
Faits sur la propriété
| Superficie totale disponible | 6 570 pi² | Façade | 243’ le Washington St |
| Min. divisible | 1 500 pi² | Superficie commerciale brute | 32 988 pi² |
| Type de centre | Centre de voisinage | Superficie totale du terrain | 4,67 AC |
| Stationnement | 310 places | Année de construction | 1970 |
| Propriétés du centre | 2 |
| Superficie totale disponible | 6 570 pi² |
| Min. divisible | 1 500 pi² |
| Type de centre | Centre de voisinage |
| Stationnement | 310 places |
| Propriétés du centre | 2 |
| Façade | 243’ le Washington St |
| Superficie commerciale brute | 32 988 pi² |
| Superficie totale du terrain | 4,67 AC |
| Année de construction | 1970 |
À propos de la propriété
À la recherche d'un locataire à long terme qui correspond bien aux locataires actuels. Les locataires actuels comprennent : Rockland Federal Credit Union, Quan's Kitchen Restaurant, Sherwin Williams, Peak Pediatrics, North Attleboro Pharmacy, Route 1 Cinema Pub.
- Banque
- Affichage
- CVCA contrôlé par le locataire
- Service au volant
- Climatisation
Principaux détaillants à proximité
Présenté par
TBFW LLC
Washington Square | 562 E Washington St
Hmm, il semble y avoir eu une erreur lors de l’envoi de votre message. Veuillez réessayer.
Merci! Votre message a été envoyé.



