Votre courriel a été envoyé.
Join the Downtown Revival | 1,892 SF Office 565 Harrison Ave 1 892 pi² d'espace disponible • Bureau/Médical • Panama City, FL 32401



Certaines informations ont été traduites automatiquement.
Faits saillants
- 1,892 SF freestanding office building
- Flexible layout for professional or retail use
- Easy access to major roadways and surrounding amenities
- Standalone structure with strong tenant identity
- Convenient Panama City Beach location
Tous les espaces disponibles(1)
Afficher les taux de location en
- Espace
- Taille
- Terme
- Taux de location
- Utilisation de l’espace
- Aménagement
- Disponible
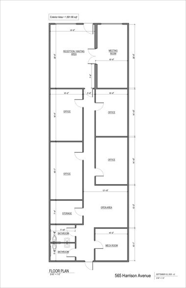
Available: Early 2026 Size: 1,892 SF Base Rent: $22.00/SF Estimated NNN: $6.14/SF Zoning: Downtown District (DTD) – ideal for office, retail, or service use 565 Harrison Ave | Downtown Panama City, FL Be part of the momentum in Historic Downtown Panama City at 565 Harrison Avenue. Available early 2026, this completely rebuilt professional office suite offers 1,891.66 square feet of brand-new interior space, ideal setting for personal or professional service businesses that value walkability, visibility, and a sense of place. The property is undergoing a full interior renovation, allowing incoming occupiers the rare opportunity to lease like-new space in a well-maintained, updated building. The layout includes a welcoming reception area, private offices, open workspaces, and dedicated restrooms, thoughtfully designed to support day-to-day operations for a variety of service-oriented users. Located in the heart of the Harrison Avenue recently completed streetscape improvement, this address offers both character and convenience, surrounded by shops, restaurants, government offices, and other established businesses.
- Le taux de location ne comprend pas les services publics, les services de bâtiment ou les dépenses immobilières.
- Convient pour 5 à 16 personnes
- Situé en ligne avec d’autres commerces de détail
- Standalone structure with strong tenant identity
- Convenient Panama City Beach location
- Disposition intensive du bureau
- Climatisation centrale
- 1,892 SF freestanding office building
- Flexible layout for professional or medical use
- Easy access to major roadways and surrounding amen
| Espace | Taille | Terme | Taux de location | Utilisation de l’espace | Aménagement | Disponible |
| 1er étage | 1 892 pi² | 3-5 ans | 30,09 $ CAD/pi²/an 2,51 $ CAD/pi²/mois 56 928 $ CAD/an 4 744 $ CAD/mois | Bureau/Médical | - | Maintenant |
1er étage
| Taille |
| 1 892 pi² |
| Terme |
| 3-5 ans |
| Taux de location |
| 30,09 $ CAD/pi²/an 2,51 $ CAD/pi²/mois 56 928 $ CAD/an 4 744 $ CAD/mois |
| Utilisation de l’espace |
| Bureau/Médical |
| Aménagement |
| - |
| Disponible |
| Maintenant |
1er étage
| Taille | 1 892 pi² |
| Terme | 3-5 ans |
| Taux de location | 30,09 $ CAD/pi²/an |
| Utilisation de l’espace | Bureau/Médical |
| Aménagement | - |
| Disponible | Maintenant |
Available: Early 2026 Size: 1,892 SF Base Rent: $22.00/SF Estimated NNN: $6.14/SF Zoning: Downtown District (DTD) – ideal for office, retail, or service use 565 Harrison Ave | Downtown Panama City, FL Be part of the momentum in Historic Downtown Panama City at 565 Harrison Avenue. Available early 2026, this completely rebuilt professional office suite offers 1,891.66 square feet of brand-new interior space, ideal setting for personal or professional service businesses that value walkability, visibility, and a sense of place. The property is undergoing a full interior renovation, allowing incoming occupiers the rare opportunity to lease like-new space in a well-maintained, updated building. The layout includes a welcoming reception area, private offices, open workspaces, and dedicated restrooms, thoughtfully designed to support day-to-day operations for a variety of service-oriented users. Located in the heart of the Harrison Avenue recently completed streetscape improvement, this address offers both character and convenience, surrounded by shops, restaurants, government offices, and other established businesses.
- Le taux de location ne comprend pas les services publics, les services de bâtiment ou les dépenses immobilières.
- Disposition intensive du bureau
- Convient pour 5 à 16 personnes
- Climatisation centrale
- Situé en ligne avec d’autres commerces de détail
- 1,892 SF freestanding office building
- Standalone structure with strong tenant identity
- Flexible layout for professional or medical use
- Convenient Panama City Beach location
- Easy access to major roadways and surrounding amen
Aperçu de la propriété
Introducing 565 Harrison Ave, a prime commercial property located in Panama City, FL, available for lease. This spacious property offers a versatile floor plan suitable for various business needs, making it ideal for retail, office, or restaurant use. With its prominent location and high visibility, this property provides an excellent opportunity to establish a thriving business. The modern architecture, ample parking, and proximity to major amenities make it an attractive choice for prospective tenants. Don't miss the chance to secure this sought-after space for your business. Inquire today and make 565 Harrison Ave the future home of your successful enterprise. Size: 1,892 SF Base Rent: $22.00/SF Estimated NNN: $6.14/SF Zoning: Downtown District (DTD) – ideal for office, retail, or service use
Faits sur la propriété
Présenté par
Join the Downtown Revival | 1,892 SF Office | 565 Harrison Ave
Hmm, il semble y avoir eu une erreur lors de l’envoi de votre message. Veuillez réessayer.
Merci! Votre message a été envoyé.



