Votre courriel a été envoyé.
Premiere Office Space for Lease 5789 State Farm Dr 1 443–81 379 pi² d'espace disponible • Bureau • Rohnert Park, CA 94928



Certaines informations ont été traduites automatiquement.
Faits saillants
- Immeuble très visible avec des possibilités de signalisation
- Beaucoup de places de stationnement gratuites
- Ascenseur
- Design d'intérieur contemporain avec éléments architecturaux artistiques et éclairage
- Vastes espaces communs comprenant un salon avec cheminée, une terrasse donnant sur des jardins luxuriants, un terrain de basket, un amphithéâtre sur gazon pour les rassemblements d'entreprise
- Basketball court
Tous les espaces disponibles(9)
Afficher les taux de location en
- Espace
- Taille
- Terme
- Taux de location
- Utilisation de l’espace
- État
- Disponible
Large open floor plan for office, lab or storage use with 11' ceiling height. Combine with Suite 130 for a stunning central suite.
- Partiellement construit comme Bureau standard
- Plafonds finis: 11’
- Peut être associé à un ou plusieurs espaces supplémentaires pour obtenir jusqu’à 6 776 pi² d’espace adjacent.
- Disposition du plan d’étage ouverte
- Espace en excellent état
Currently outfitted as a light-filled cafe that could convert into a modern open office. Mosaic tile flooring, exposed ceiling and expansion potential into Suite 120.
- Entièrement construit comme Bureau standard
- Espace en excellent état
- Disposition du plan d’étage ouverte
- Peut être associé à un ou plusieurs espaces supplémentaires pour obtenir jusqu’à 6 776 pi² d’espace adjacent.
Ample open office space along the building's curved window line, featuring a large conference or training room, private office, dedicated server room, kitchenette and a bonus room.
- Entièrement construit comme Bureau standard
- Espace en excellent état
- Disposition du plan d’étage ouverte en général
A light-filled open room facing the gardens.
- Entièrement construit comme Bureau standard
- Espace en excellent état
- Disposition du plan d’étage ouverte en général
Suite 190 has two large open rooms on the window line one private office, and 4 storage rooms which could be converted to office. Expansion possible into Suite 195.
- Partiellement construit comme Bureau standard
- 1 bureau privé
- Disposition du plan d’étage ouverte en général
- Espace en excellent état
Direct access to the view deck. This updated suite has it all: Large showroom/training room, 20 private offices (many furnished), board room, six additional meeting rooms, reception/waiting room, wellness/nursing room, large server room, and private break room.
- Entièrement construit comme Bureau standard
- Peut être associé à un ou plusieurs espaces supplémentaires pour obtenir jusqu’à 63 169 pi² d’espace adjacent.
- Espace en excellent état
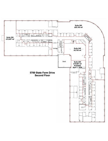
This second floor corner suite features garden views and direct access to the common area lounge and deck. The interior of the space is lined with private offices with clerestory windows, two large offices/conference rooms, server room and a copy/file area. Ample open work space with 44 available cubicles completes the balance of the Suite. Expansion is possible into Suite 265.
- Entièrement construit comme Bureau standard
- 2 salles de conférence
- Peut être associé à un ou plusieurs espaces supplémentaires pour obtenir jusqu’à 63 169 pi² d’espace adjacent.
- Disposition du plan d’étage ouverte en général
- Espace en excellent état
Large open floor plan for and one large private office/conference room. Direct access to the common area lounge and deck. 11' ceiling height.
- Entièrement construit comme Bureau standard
- 1 bureau privé
- Espace en excellent état
- Plan ouvert
- Disposition du plan d’étage ouverte
- 1 salle de conférence
- Peut être associé à un ou plusieurs espaces supplémentaires pour obtenir jusqu’à 63 169 pi² d’espace adjacent.
- Utilisation créative au bureau ou au laboratoire.
This fantastic second floor corner suite features an open work area and four conference rooms along the expansive curved window line. The interior of the space is lined with private offices with clerestory windows, two additional meeting rooms, reception/waiting room, copy/file area, and two kitchenettes. Most of the offices are furnished and the open area has 260 cubicle workstations available. Suite 265 is an ideal call center configuration. Expansion is possible into Suite 230.
- Entièrement construit comme Centre d’appels
- 23 bureaux privés
- 260 postes de travail
- Peut être associé à un ou plusieurs espaces supplémentaires pour obtenir jusqu’à 63 169 pi² d’espace adjacent.
- Cuisine
- Lumière naturelle
- Configuration idéale du centre d'appels.
- Disposition du plan d’étage ouverte en général
- 6 salles de conférence
- Espace en excellent état
- Aire de réception
- Salle d’impression/Photocopie
- Plan ouvert
- Les bureaux sont meublés et il y a 260 chambres.
| Espace | Taille | Terme | Taux de location | Utilisation de l’espace | État | Disponible |
| 1er étage, ste 120 | 3 170 pi² | Négociable | Sur demande Sur demande Sur demande Sur demande | Bureau | construction partielle | Maintenant |
| 1er étage, ste 130 | 3 606 pi² | Négociable | Sur demande Sur demande Sur demande Sur demande | Bureau | construction complète | Maintenant |
| 1er étage, ste 140 | 6 311 pi² | Négociable | Sur demande Sur demande Sur demande Sur demande | Bureau | construction complète | Maintenant |
| 1er étage, ste 160 | 1 443 pi² | Négociable | Sur demande Sur demande Sur demande Sur demande | Bureau | construction complète | Maintenant |
| 1er étage, ste 190 | 3 680 pi² | Négociable | Sur demande Sur demande Sur demande Sur demande | Bureau | construction partielle | Maintenant |
| 2e étage, ste 200 | 19 907 pi² | Négociable | Sur demande Sur demande Sur demande Sur demande | Bureau | construction complète | 2026-04-01 |
| 2e étage, ste 230 | 12 407 pi² | Négociable | Sur demande Sur demande Sur demande Sur demande | Bureau | construction complète | Maintenant |
| 2e étage, ste 240 | 5 752 pi² | Négociable | Sur demande Sur demande Sur demande Sur demande | Bureau | construction complète | Maintenant |
| 2e étage, ste 265 | 25 103 pi² | Négociable | Sur demande Sur demande Sur demande Sur demande | Bureau | construction complète | Maintenant |
1er étage, ste 120
| Taille |
| 3 170 pi² |
| Terme |
| Négociable |
| Taux de location |
| Sur demande Sur demande Sur demande Sur demande |
| Utilisation de l’espace |
| Bureau |
| État |
| construction partielle |
| Disponible |
| Maintenant |
1er étage, ste 130
| Taille |
| 3 606 pi² |
| Terme |
| Négociable |
| Taux de location |
| Sur demande Sur demande Sur demande Sur demande |
| Utilisation de l’espace |
| Bureau |
| État |
| construction complète |
| Disponible |
| Maintenant |
1er étage, ste 140
| Taille |
| 6 311 pi² |
| Terme |
| Négociable |
| Taux de location |
| Sur demande Sur demande Sur demande Sur demande |
| Utilisation de l’espace |
| Bureau |
| État |
| construction complète |
| Disponible |
| Maintenant |
1er étage, ste 160
| Taille |
| 1 443 pi² |
| Terme |
| Négociable |
| Taux de location |
| Sur demande Sur demande Sur demande Sur demande |
| Utilisation de l’espace |
| Bureau |
| État |
| construction complète |
| Disponible |
| Maintenant |
1er étage, ste 190
| Taille |
| 3 680 pi² |
| Terme |
| Négociable |
| Taux de location |
| Sur demande Sur demande Sur demande Sur demande |
| Utilisation de l’espace |
| Bureau |
| État |
| construction partielle |
| Disponible |
| Maintenant |
2e étage, ste 200
| Taille |
| 19 907 pi² |
| Terme |
| Négociable |
| Taux de location |
| Sur demande Sur demande Sur demande Sur demande |
| Utilisation de l’espace |
| Bureau |
| État |
| construction complète |
| Disponible |
| 2026-04-01 |
2e étage, ste 230
| Taille |
| 12 407 pi² |
| Terme |
| Négociable |
| Taux de location |
| Sur demande Sur demande Sur demande Sur demande |
| Utilisation de l’espace |
| Bureau |
| État |
| construction complète |
| Disponible |
| Maintenant |
2e étage, ste 240
| Taille |
| 5 752 pi² |
| Terme |
| Négociable |
| Taux de location |
| Sur demande Sur demande Sur demande Sur demande |
| Utilisation de l’espace |
| Bureau |
| État |
| construction complète |
| Disponible |
| Maintenant |
2e étage, ste 265
| Taille |
| 25 103 pi² |
| Terme |
| Négociable |
| Taux de location |
| Sur demande Sur demande Sur demande Sur demande |
| Utilisation de l’espace |
| Bureau |
| État |
| construction complète |
| Disponible |
| Maintenant |
1er étage, ste 120
| Taille | 3 170 pi² |
| Terme | Négociable |
| Taux de location | Sur demande |
| Utilisation de l’espace | Bureau |
| État | construction partielle |
| Disponible | Maintenant |
Large open floor plan for office, lab or storage use with 11' ceiling height. Combine with Suite 130 for a stunning central suite.
- Partiellement construit comme Bureau standard
- Disposition du plan d’étage ouverte
- Plafonds finis: 11’
- Espace en excellent état
- Peut être associé à un ou plusieurs espaces supplémentaires pour obtenir jusqu’à 6 776 pi² d’espace adjacent.
1er étage, ste 130
| Taille | 3 606 pi² |
| Terme | Négociable |
| Taux de location | Sur demande |
| Utilisation de l’espace | Bureau |
| État | construction complète |
| Disponible | Maintenant |
Currently outfitted as a light-filled cafe that could convert into a modern open office. Mosaic tile flooring, exposed ceiling and expansion potential into Suite 120.
- Entièrement construit comme Bureau standard
- Disposition du plan d’étage ouverte
- Espace en excellent état
- Peut être associé à un ou plusieurs espaces supplémentaires pour obtenir jusqu’à 6 776 pi² d’espace adjacent.
1er étage, ste 140
| Taille | 6 311 pi² |
| Terme | Négociable |
| Taux de location | Sur demande |
| Utilisation de l’espace | Bureau |
| État | construction complète |
| Disponible | Maintenant |
Ample open office space along the building's curved window line, featuring a large conference or training room, private office, dedicated server room, kitchenette and a bonus room.
- Entièrement construit comme Bureau standard
- Disposition du plan d’étage ouverte en général
- Espace en excellent état
1er étage, ste 160
| Taille | 1 443 pi² |
| Terme | Négociable |
| Taux de location | Sur demande |
| Utilisation de l’espace | Bureau |
| État | construction complète |
| Disponible | Maintenant |
A light-filled open room facing the gardens.
- Entièrement construit comme Bureau standard
- Disposition du plan d’étage ouverte en général
- Espace en excellent état
1er étage, ste 190
| Taille | 3 680 pi² |
| Terme | Négociable |
| Taux de location | Sur demande |
| Utilisation de l’espace | Bureau |
| État | construction partielle |
| Disponible | Maintenant |
Suite 190 has two large open rooms on the window line one private office, and 4 storage rooms which could be converted to office. Expansion possible into Suite 195.
- Partiellement construit comme Bureau standard
- Disposition du plan d’étage ouverte en général
- 1 bureau privé
- Espace en excellent état
2e étage, ste 200
| Taille | 19 907 pi² |
| Terme | Négociable |
| Taux de location | Sur demande |
| Utilisation de l’espace | Bureau |
| État | construction complète |
| Disponible | 2026-04-01 |
Direct access to the view deck. This updated suite has it all: Large showroom/training room, 20 private offices (many furnished), board room, six additional meeting rooms, reception/waiting room, wellness/nursing room, large server room, and private break room.
- Entièrement construit comme Bureau standard
- Espace en excellent état
- Peut être associé à un ou plusieurs espaces supplémentaires pour obtenir jusqu’à 63 169 pi² d’espace adjacent.
2e étage, ste 230
| Taille | 12 407 pi² |
| Terme | Négociable |
| Taux de location | Sur demande |
| Utilisation de l’espace | Bureau |
| État | construction complète |
| Disponible | Maintenant |
This second floor corner suite features garden views and direct access to the common area lounge and deck. The interior of the space is lined with private offices with clerestory windows, two large offices/conference rooms, server room and a copy/file area. Ample open work space with 44 available cubicles completes the balance of the Suite. Expansion is possible into Suite 265.
- Entièrement construit comme Bureau standard
- Disposition du plan d’étage ouverte en général
- 2 salles de conférence
- Espace en excellent état
- Peut être associé à un ou plusieurs espaces supplémentaires pour obtenir jusqu’à 63 169 pi² d’espace adjacent.
2e étage, ste 240
| Taille | 5 752 pi² |
| Terme | Négociable |
| Taux de location | Sur demande |
| Utilisation de l’espace | Bureau |
| État | construction complète |
| Disponible | Maintenant |
Large open floor plan for and one large private office/conference room. Direct access to the common area lounge and deck. 11' ceiling height.
- Entièrement construit comme Bureau standard
- Disposition du plan d’étage ouverte
- 1 bureau privé
- 1 salle de conférence
- Espace en excellent état
- Peut être associé à un ou plusieurs espaces supplémentaires pour obtenir jusqu’à 63 169 pi² d’espace adjacent.
- Plan ouvert
- Utilisation créative au bureau ou au laboratoire.
2e étage, ste 265
| Taille | 25 103 pi² |
| Terme | Négociable |
| Taux de location | Sur demande |
| Utilisation de l’espace | Bureau |
| État | construction complète |
| Disponible | Maintenant |
This fantastic second floor corner suite features an open work area and four conference rooms along the expansive curved window line. The interior of the space is lined with private offices with clerestory windows, two additional meeting rooms, reception/waiting room, copy/file area, and two kitchenettes. Most of the offices are furnished and the open area has 260 cubicle workstations available. Suite 265 is an ideal call center configuration. Expansion is possible into Suite 230.
- Entièrement construit comme Centre d’appels
- Disposition du plan d’étage ouverte en général
- 23 bureaux privés
- 6 salles de conférence
- 260 postes de travail
- Espace en excellent état
- Peut être associé à un ou plusieurs espaces supplémentaires pour obtenir jusqu’à 63 169 pi² d’espace adjacent.
- Aire de réception
- Cuisine
- Salle d’impression/Photocopie
- Lumière naturelle
- Plan ouvert
- Configuration idéale du centre d'appels.
- Les bureaux sont meublés et il y a 260 chambres.
Aperçu de la propriété
Le 5789 State Farm Drive est l'un des bâtiments les plus reconnaissables et les plus prestigieux du comté de Sonoma. Il offre une excellente visibilité, une façade exceptionnelle sur la promenade State Farm et un attrait extérieur inégalé, rehaussé par les terrains aménagés par des professionnels. Cet immeuble de 131 648 pieds carrés est situé dans un cadre de style campus sur environ 8,25 acres, à seulement quelques minutes de l'autoroute 101 et de la station SMART de Rohnert Park. La propriété abrite plusieurs locataires médicaux et de bureaux. Notamment en 2023, AgeWell PACE a ouvert une garderie pour personnes âgées avec une clinique médicale de soins primaires OSHPD 3. Parmi les autres locataires figurent Beyond Balance, Pain and Rehabilitative Consultants Medical Group, Motion Analysis Corporation et le siège social de Marmot Mountain, l'entreprise novatrice de vêtements et d'équipements de sport. Communiquez avec le courtier adjudicateur d'un nouveau locataire pour obtenir une commission complète ou une demi-commission.
- Cour
- Affichage
- Accessible aux fauteuils roulants
- Affichage sur monument
- Sièges extérieurs
- Climatisation
- Internet par fibre optique
Faits sur la propriété
Présenté par
State Farm Drive, LP
Premiere Office Space for Lease | 5789 State Farm Dr
Hmm, il semble y avoir eu une erreur lors de l’envoi de votre message. Veuillez réessayer.
Merci! Votre message a été envoyé.

