Se Connecter/S’inscrire
Votre courriel a été envoyé.
Certaines informations ont été traduites automatiquement.
Faits saillants de l'investissement
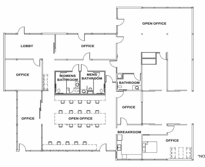
- Single-story office building with ±4,832 SF of professional space.
- Convenient access to I-10 and CA-71 freeways for regional connectivity.
- Approximately 14 minutes from Ontario International Airport.
- Fenced private parking lot with 14 dedicated spaces.
- Minutes from Downtown Pomona and nearby retail and dining amenities.
- Street frontage along North Park Avenue for visibility and accessibility.
Résumé de l'annonce
This unique single-story office property offers ±4,832 square feet of professional space in the heart of Pomona, California. The building features a functional layout with multiple private offices, open work areas, a breakroom, and dedicated restrooms, providing flexibility for a variety of business operations. A fenced private parking lot with 14 spaces ensures convenience and security for employees and visitors.
Located just minutes from Downtown Pomona, the property benefits from excellent accessibility to major transportation routes, including the I-10 and CA-71 freeways. The surrounding area offers a mix of retail, dining, and service amenities, creating a convenient environment for both staff and clients. Ontario International Airport is approximately 14 minutes away, enhancing regional and national connectivity.
This property represents an opportunity for an owner-user or investor seeking a well-located office asset with strong accessibility and functional design.
Located just minutes from Downtown Pomona, the property benefits from excellent accessibility to major transportation routes, including the I-10 and CA-71 freeways. The surrounding area offers a mix of retail, dining, and service amenities, creating a convenient environment for both staff and clients. Ontario International Airport is approximately 14 minutes away, enhancing regional and national connectivity.
This property represents an opportunity for an owner-user or investor seeking a well-located office asset with strong accessibility and functional design.
Faits sur la propriété
Type de vente
Investissement ou propriétaire utilisateur
Type de propriété
Bureau
Taille du bâtiment
4 832 pi²
Classe d’immeuble
C
Année de construction
1953
Location
Unique
Hauteur du bâtiment
1 étage
Superficie de plancher typique
4 832 pi²
Coefficient d’occupation des sols de l’immeuble
0,34
Taille du lot
0,33 AC
Zonage
AP - commercial
Stationnement
14 places (2,9 places par 1 000 pi² loué)
Commodités
- Accès 24 heures
- Climatisation
1 1
Moyennement praticable à pied
60/100
Exceptionnellement facile d’accès en voiture
90/100
Transports en commun relativement accessibles
50/100
Plutôt praticable en vélo
50/100
Impôts fonciers
| Numéro de lot | 8336-013-008 | Évaluation des bâtiments | 550 506 $ CAD |
| Évaluation du terrain | 926 639 $ CAD | Évaluation totale | 1 477 146 $ CAD |
Impôts fonciers
Numéro de lot
8336-013-008
Évaluation du terrain
926 639 $ CAD
Évaluation des bâtiments
550 506 $ CAD
Évaluation totale
1 477 146 $ CAD
1 de 7
Vidéos
Visite extérieure 3D Matterport
Visite 3D Matterport
Photos
Vue depuis la rue
Rue
Carte
1 de 1
Présenté par
580-600 N Park Ave
Vous êtes déjà membre? Connectez-vous
Hmm, il semble y avoir eu une erreur lors de l’envoi de votre message. Veuillez réessayer.
Merci! Votre message a été envoyé.



