Se Connecter/S’inscrire
Votre courriel a été envoyé.
Certaines informations ont été traduites automatiquement.
Caractéristiques
Hauteur libre
23’
Portes de quai de chargement extérieures
3
Places de stationnement standard
50
Tous les espaces disponibles(1)
Afficher les taux de location en
- Espace
- Taille
- Terme
- Taux de location
- Utilisation de l’espace
- Aménagement
- Disponible
Also available for 42,000 sf at $6.00 NNN (Suites A & B)
- Le taux de location ne comprend pas les services publics, les services de bâtiment ou les dépenses immobilières.
| Espace | Taille | Terme | Taux de location | Utilisation de l’espace | Aménagement | Disponible |
| 1er étage - A | 42 000 pi² | Négociable | 8,92 $ CAD/pi²/an 0,74 $ CAD/pi²/mois 374 687 $ CAD/an 31 224 $ CAD/mois | Industriel | construction complète | Maintenant |
1er étage - A
| Taille |
| 42 000 pi² |
| Terme |
| Négociable |
| Taux de location |
| 8,92 $ CAD/pi²/an 0,74 $ CAD/pi²/mois 374 687 $ CAD/an 31 224 $ CAD/mois |
| Utilisation de l’espace |
| Industriel |
| Aménagement |
| construction complète |
| Disponible |
| Maintenant |
1er étage - A
| Taille | 42 000 pi² |
| Terme | Négociable |
| Taux de location | 8,92 $ CAD/pi²/an |
| Utilisation de l’espace | Industriel |
| Aménagement | construction complète |
| Disponible | Maintenant |
Also available for 42,000 sf at $6.00 NNN (Suites A & B)
- Le taux de location ne comprend pas les services publics, les services de bâtiment ou les dépenses immobilières.
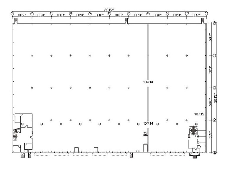
Faits sur l’installation entrepôt
Taille du bâtiment
62 425 pi²
Taille du lot
3,56 AC
Année de construction
1975
Construction
Maçonnerie
Zonage
M1A - Industriel léger
Sélectionner des locataires
- Étage
- Nom du locataire
- Secteur
- 1ᵉʳ
- Industrial Packaging Corporation
- Transport et entreposage
1 1
Plutôt practicable à pied
20/100
Exceptionnellement facile d'accès en voiture
100/100
Transports en commun très limités
10/100
Assez praticable en vélo
20/100
1 de 4
Vidéos
Visite extérieure 3D Matterport
Visite 3D Matterport
Photos
Vue depuis la rue
Rue
Carte
1 de 1
Présenté par
580 Wharton Cir SW
Vous êtes déjà membre? Connectez-vous
Hmm, il semble y avoir eu une erreur lors de l’envoi de votre message. Veuillez réessayer.
Merci! Votre message a été envoyé.



