Votre courriel a été envoyé.
Carlsbad Ranch Corporate Center 5800 Armada Dr 1 894–15 759 pi² d'espace disponible • Bureau • 4 étoiles • Carlsbad, CA 92008



Certaines informations ont été traduites automatiquement.
Faits saillants
- Accès facile à l'autoroute et vue panoramique sur l'océan et l'arrière-pays. Accès immédiat au réseau de sentiers Carlsbad et au parc Promenade surplombant la
- Façade en granit et calcaire avec des finitions en bois et en pierre
- Finitions de l'amélioration des locataires Premium
- Deux aires de repas et de détente en plein air
- Connectivité AT&T à large bande passante, Cox Communications, Time Warner et Charter/Spectrum par fibre disponible
- Situé dans le premier parc de bureaux de Carlsbad - Carlsbad Ranch
Tous les espaces disponibles(5)
Afficher les taux de location en
- Espace
- Taille
- Terme
- Taux de location
- Utilisation de l’espace
- Aménagement
- Disponible
Double door entry off ground floor lobby, large conference room, 12 private offices and one workstation area.
- Taux de location inscrit plus part proportionnelle des coûts de la consommation électrique
- Disposition du plan d’étage ouverte en général
- 1 salle de conférence
- Entièrement construit comme Bureau standard
- 2 bureaux privés
Double door entry off ground floor lobby, conference, 2 private offices, kitchen and open bullpen area.
- Taux de location inscrit plus part proportionnelle des coûts de la consommation électrique
- Disposition du plan d’étage ouverte en général
- 1 salle de conférence
- Entièrement construit comme Bureau standard
- 2 bureaux privés
High-end finishes throughout, reception with double door entry off the second floor lobby, 3 private offices, conference room or executive office, open office area, kitchen, work room and server room.
- Taux de location inscrit plus part proportionnelle des coûts de la consommation électrique
- 3 bureaux privés
- Espace en excellent état
- Cuisine
- Entreposage sécurisé
- Entièrement construit comme Bureau standard
- 1 salle de conférence
- Aire de réception
- Accès aux ascenseurs
- Espace de bureau de classe « A », finitions haut de gamme
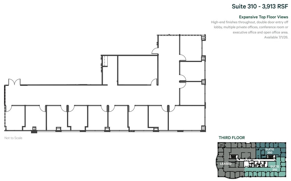
High-end finishes throughout, double door entry off lobby, multiple private offices, conference room or executive office and open office area.
- Taux de location inscrit plus part proportionnelle des coûts de la consommation électrique
- 8 bureaux privés
- Cuisine
- Entièrement construit comme Bureau standard
- 1 salle de conférence
Double door entry, conference, 8 private offices, kitchen, and open bullpen area.
- Taux de location inscrit plus part proportionnelle des coûts de la consommation électrique
- 8 bureaux privés
- Cuisine
- Entièrement construit comme Bureau standard
- 1 salle de conférence
| Espace | Taille | Terme | Taux de location | Utilisation de l’espace | Aménagement | Disponible |
| 1er étage, ste 101 | 4 244 pi² | Négociable | 53,78 $ CAD/pi²/an 4,48 $ CAD/pi²/mois 228 229 $ CAD/an 19 019 $ CAD/mois | Bureau | construction complète | 2026-07-01 |
| 1er étage, ste 105 | 1 894 pi² | Négociable | 53,78 $ CAD/pi²/an 4,48 $ CAD/pi²/mois 101 853 $ CAD/an 8 488 $ CAD/mois | Bureau | construction complète | Maintenant |
| 2e étage, ste 235 | 2 684 pi² | Négociable | 53,78 $ CAD/pi²/an 4,48 $ CAD/pi²/mois 144 337 $ CAD/an 12 028 $ CAD/mois | Bureau | construction complète | Maintenant |
| 3e étage, ste 310 | 3 913 pi² | Négociable | 53,78 $ CAD/pi²/an 4,48 $ CAD/pi²/mois 210 429 $ CAD/an 17 536 $ CAD/mois | Bureau | construction complète | 2026-07-01 |
| 3e étage, ste 350 | 3 024 pi² | Négociable | 53,78 $ CAD/pi²/an 4,48 $ CAD/pi²/mois 162 621 $ CAD/an 13 552 $ CAD/mois | Bureau | construction complète | Maintenant |
1er étage, ste 101
| Taille |
| 4 244 pi² |
| Terme |
| Négociable |
| Taux de location |
| 53,78 $ CAD/pi²/an 4,48 $ CAD/pi²/mois 228 229 $ CAD/an 19 019 $ CAD/mois |
| Utilisation de l’espace |
| Bureau |
| Aménagement |
| construction complète |
| Disponible |
| 2026-07-01 |
1er étage, ste 105
| Taille |
| 1 894 pi² |
| Terme |
| Négociable |
| Taux de location |
| 53,78 $ CAD/pi²/an 4,48 $ CAD/pi²/mois 101 853 $ CAD/an 8 488 $ CAD/mois |
| Utilisation de l’espace |
| Bureau |
| Aménagement |
| construction complète |
| Disponible |
| Maintenant |
2e étage, ste 235
| Taille |
| 2 684 pi² |
| Terme |
| Négociable |
| Taux de location |
| 53,78 $ CAD/pi²/an 4,48 $ CAD/pi²/mois 144 337 $ CAD/an 12 028 $ CAD/mois |
| Utilisation de l’espace |
| Bureau |
| Aménagement |
| construction complète |
| Disponible |
| Maintenant |
3e étage, ste 310
| Taille |
| 3 913 pi² |
| Terme |
| Négociable |
| Taux de location |
| 53,78 $ CAD/pi²/an 4,48 $ CAD/pi²/mois 210 429 $ CAD/an 17 536 $ CAD/mois |
| Utilisation de l’espace |
| Bureau |
| Aménagement |
| construction complète |
| Disponible |
| 2026-07-01 |
3e étage, ste 350
| Taille |
| 3 024 pi² |
| Terme |
| Négociable |
| Taux de location |
| 53,78 $ CAD/pi²/an 4,48 $ CAD/pi²/mois 162 621 $ CAD/an 13 552 $ CAD/mois |
| Utilisation de l’espace |
| Bureau |
| Aménagement |
| construction complète |
| Disponible |
| Maintenant |
1er étage, ste 101
| Taille | 4 244 pi² |
| Terme | Négociable |
| Taux de location | 53,78 $ CAD/pi²/an |
| Utilisation de l’espace | Bureau |
| Aménagement | construction complète |
| Disponible | 2026-07-01 |
Double door entry off ground floor lobby, large conference room, 12 private offices and one workstation area.
- Taux de location inscrit plus part proportionnelle des coûts de la consommation électrique
- Entièrement construit comme Bureau standard
- Disposition du plan d’étage ouverte en général
- 2 bureaux privés
- 1 salle de conférence
1er étage, ste 105
| Taille | 1 894 pi² |
| Terme | Négociable |
| Taux de location | 53,78 $ CAD/pi²/an |
| Utilisation de l’espace | Bureau |
| Aménagement | construction complète |
| Disponible | Maintenant |
Double door entry off ground floor lobby, conference, 2 private offices, kitchen and open bullpen area.
- Taux de location inscrit plus part proportionnelle des coûts de la consommation électrique
- Entièrement construit comme Bureau standard
- Disposition du plan d’étage ouverte en général
- 2 bureaux privés
- 1 salle de conférence
2e étage, ste 235
| Taille | 2 684 pi² |
| Terme | Négociable |
| Taux de location | 53,78 $ CAD/pi²/an |
| Utilisation de l’espace | Bureau |
| Aménagement | construction complète |
| Disponible | Maintenant |
High-end finishes throughout, reception with double door entry off the second floor lobby, 3 private offices, conference room or executive office, open office area, kitchen, work room and server room.
- Taux de location inscrit plus part proportionnelle des coûts de la consommation électrique
- Entièrement construit comme Bureau standard
- 3 bureaux privés
- 1 salle de conférence
- Espace en excellent état
- Aire de réception
- Cuisine
- Accès aux ascenseurs
- Entreposage sécurisé
- Espace de bureau de classe « A », finitions haut de gamme
3e étage, ste 310
| Taille | 3 913 pi² |
| Terme | Négociable |
| Taux de location | 53,78 $ CAD/pi²/an |
| Utilisation de l’espace | Bureau |
| Aménagement | construction complète |
| Disponible | 2026-07-01 |
High-end finishes throughout, double door entry off lobby, multiple private offices, conference room or executive office and open office area.
- Taux de location inscrit plus part proportionnelle des coûts de la consommation électrique
- Entièrement construit comme Bureau standard
- 8 bureaux privés
- 1 salle de conférence
- Cuisine
3e étage, ste 350
| Taille | 3 024 pi² |
| Terme | Négociable |
| Taux de location | 53,78 $ CAD/pi²/an |
| Utilisation de l’espace | Bureau |
| Aménagement | construction complète |
| Disponible | Maintenant |
Double door entry, conference, 8 private offices, kitchen, and open bullpen area.
- Taux de location inscrit plus part proportionnelle des coûts de la consommation électrique
- Entièrement construit comme Bureau standard
- 8 bureaux privés
- 1 salle de conférence
- Cuisine
Aperçu de la propriété
- Immeuble à bureaux de catégorie A de 42 960 pieds carrés de trois étages - Vue panoramique sur l'océan et l'arrière-pays - Accès immédiat au réseau de sentiers Carlsbad et au parc Promenade surplombant les champs de fleurs de renommée mondiale avec vue sur l'océan à 180 degrés. - Façade de granit et de calcaire avec des finitions de hall en bois et en pierre - Connectivité AT&T à large bande passante, Cox Communications, Time Warner et Charter/Spectrum Fiber Connectivité disponible - Situé dans le premier parc de bureaux de Carlsbad - Carlsbad Ranch - Deux espaces de salle à manger et de détente extérieurs - Accès à l'Interstate 5 par Palomar Airport Road et Cannon Road - À distance de marche des installations de restauration, de vente au détail, d'hébergement et de loisirs
- Accessible aux fauteuils roulants
- Lumière naturelle
- Affichage sur monument
- Sièges extérieurs
- Climatisation
- Balcon
- Détecteur de fumée
Faits sur la propriété
Présenté par
Carlsbad Ranch Corporate Center | 5800 Armada Dr
Hmm, il semble y avoir eu une erreur lors de l’envoi de votre message. Veuillez réessayer.
Merci! Votre message a été envoyé.










