Votre courriel a été envoyé.
Certaines informations ont été traduites automatiquement.
Caractéristiques
Tous les espaces disponibles(2)
Afficher les taux de location en
- Espace
- Taille
- Terme
- Taux de location
- Utilisation de l’espace
- Aménagement
- Disponible
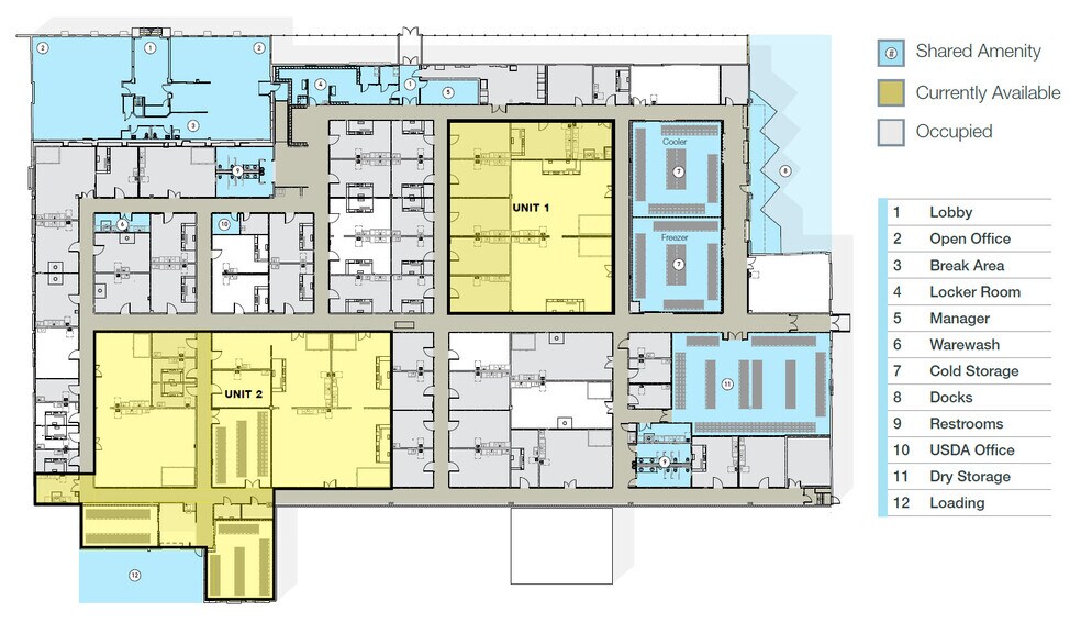
Private warewash station (high-temp unit) Dedicated Dock 2 walk-in coolers (100 SF each) Hood Lengths: 38-ft Type I Additional on-site cold, frozen and dry storage available 100% fresh makeup air (allergen control) Shared support spaces: restrooms, locker rooms, offices Configurations and pass throughs can be adjusted to suit.
- Situé en ligne avec d’autres commerces de détail
Private 221 SF (not including the hallway) warewash station (high-temp-unit) (1) Private Dock + (1) dedicated dock Private storage: frozen 853 SF | cold 543 SF | dry 806 SF 5 walk-in coolers (~500 SF) Additional on-site cold, frozen and dry storage available 100% fresh makeup air (allergen control) Hood Lengths: 50-ft Type I + (2) Type II Shared support spaces: restrooms, locker rooms, offices Configurations and pass throughs can be adjusted to suit.
- Situé en ligne avec d’autres commerces de détail
| Espace | Taille | Terme | Taux de location | Utilisation de l’espace | Aménagement | Disponible |
| 1er étage - A | 6 072 pi² | Négociable | Sur demande Sur demande Sur demande Sur demande | Industriel | construction complète | Maintenant |
| 1er étage - B | 13 329 pi² | Négociable | Sur demande Sur demande Sur demande Sur demande | Industriel | construction complète | Maintenant |
1er étage - A
| Taille |
| 6 072 pi² |
| Terme |
| Négociable |
| Taux de location |
| Sur demande Sur demande Sur demande Sur demande |
| Utilisation de l’espace |
| Industriel |
| Aménagement |
| construction complète |
| Disponible |
| Maintenant |
1er étage - B
| Taille |
| 13 329 pi² |
| Terme |
| Négociable |
| Taux de location |
| Sur demande Sur demande Sur demande Sur demande |
| Utilisation de l’espace |
| Industriel |
| Aménagement |
| construction complète |
| Disponible |
| Maintenant |
1er étage - A
| Taille | 6 072 pi² |
| Terme | Négociable |
| Taux de location | Sur demande |
| Utilisation de l’espace | Industriel |
| Aménagement | construction complète |
| Disponible | Maintenant |
Private warewash station (high-temp unit) Dedicated Dock 2 walk-in coolers (100 SF each) Hood Lengths: 38-ft Type I Additional on-site cold, frozen and dry storage available 100% fresh makeup air (allergen control) Shared support spaces: restrooms, locker rooms, offices Configurations and pass throughs can be adjusted to suit.
- Situé en ligne avec d’autres commerces de détail
1er étage - B
| Taille | 13 329 pi² |
| Terme | Négociable |
| Taux de location | Sur demande |
| Utilisation de l’espace | Industriel |
| Aménagement | construction complète |
| Disponible | Maintenant |
Private 221 SF (not including the hallway) warewash station (high-temp-unit) (1) Private Dock + (1) dedicated dock Private storage: frozen 853 SF | cold 543 SF | dry 806 SF 5 walk-in coolers (~500 SF) Additional on-site cold, frozen and dry storage available 100% fresh makeup air (allergen control) Hood Lengths: 50-ft Type I + (2) Type II Shared support spaces: restrooms, locker rooms, offices Configurations and pass throughs can be adjusted to suit.
- Situé en ligne avec d’autres commerces de détail
Aperçu de la propriété
Ancienne usine Zenith transformée en un complexe de 64 espaces de production alimentaire proposant des cuisines commerciales à louer.
Faits sur l’installation transformation des aliments
Sélectionner des locataires
- Étage
- Nom du locataire
- Secteur
- 1ᵉʳ
- Amped Kitchens
- Services de location et de bail
Présenté par
5801 W Dickens Ave
Hmm, il semble y avoir eu une erreur lors de l’envoi de votre message. Veuillez réessayer.
Merci! Votre message a été envoyé.



