Votre courriel a été envoyé.
Oakbrook Summit - Bldg 5835 5835 Oakbrook Pky 27 530 pi² d'espace disponible • Industriel • Norcross, GA 30093



Certaines informations ont été traduites automatiquement.
Faits saillants
- Storefront Visibility
Caractéristiques
Tous les espaces disponibles(1)
Afficher les taux de location en
- Espace
- Taille
- Terme
- Taux de location
- Utilisation de l’espace
- Aménagement
- Disponible
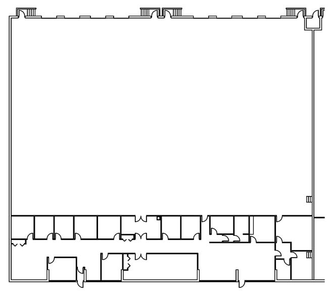
Positioned in the heart of Norcross’s established industrial corridor, 5835 Oakbrook Parkway Suite A/E offers a compelling opportunity for tenants seeking a functional and well-located distribution or light manufacturing space. The available 27,530 SF is devisable and comprises 20,558 SF of warehouse space paired with 6,972 SF of office buildout, delivering a balanced footprint for operational efficiency. The property features 12 dock-high doors and one drive-in door, supported by a generous 22'3" clear height and column spacing of 38' x 40', ideal for racking and maneuverability. Storefront visibility enhances brand presence, while immediate availability allows for swift occupancy. Located minutes from I-85 and major arterial routes, the site offers seamless access to metro Atlanta and surrounding logistics hubs. Norcross is part of Gwinnett County, one of Georgia’s most dynamic business environments, with proximity to Hartsfield-Jackson Atlanta International Airport and a robust labor pool. The area supports a mix of industrial, commercial, and residential uses, making it a strategic choice for growing operations.
- Comprend 6 972 pi² d’espace de bureau dédié
- 12 quais de chargement
- 2 accès plain-pied
| Espace | Taille | Terme | Taux de location | Utilisation de l’espace | Aménagement | Disponible |
| 1er étage - A | 27 530 pi² | Négociable | Sur demande Sur demande Sur demande Sur demande | Industriel | construction complète | Maintenant |
1er étage - A
| Taille |
| 27 530 pi² |
| Terme |
| Négociable |
| Taux de location |
| Sur demande Sur demande Sur demande Sur demande |
| Utilisation de l’espace |
| Industriel |
| Aménagement |
| construction complète |
| Disponible |
| Maintenant |
1er étage - A
| Taille | 27 530 pi² |
| Terme | Négociable |
| Taux de location | Sur demande |
| Utilisation de l’espace | Industriel |
| Aménagement | construction complète |
| Disponible | Maintenant |
Positioned in the heart of Norcross’s established industrial corridor, 5835 Oakbrook Parkway Suite A/E offers a compelling opportunity for tenants seeking a functional and well-located distribution or light manufacturing space. The available 27,530 SF is devisable and comprises 20,558 SF of warehouse space paired with 6,972 SF of office buildout, delivering a balanced footprint for operational efficiency. The property features 12 dock-high doors and one drive-in door, supported by a generous 22'3" clear height and column spacing of 38' x 40', ideal for racking and maneuverability. Storefront visibility enhances brand presence, while immediate availability allows for swift occupancy. Located minutes from I-85 and major arterial routes, the site offers seamless access to metro Atlanta and surrounding logistics hubs. Norcross is part of Gwinnett County, one of Georgia’s most dynamic business environments, with proximity to Hartsfield-Jackson Atlanta International Airport and a robust labor pool. The area supports a mix of industrial, commercial, and residential uses, making it a strategic choice for growing operations.
- Comprend 6 972 pi² d’espace de bureau dédié
- 2 accès plain-pied
- 12 quais de chargement
Faits sur l’installation distribution
Sélectionner des locataires
- Étage
- Nom du locataire
- Secteur
- 1ᵉʳ
- Dillon Production Services
- Information
- 1ᵉʳ
- UVeye
- Services professionnels, scientifiques et techniques
Présenté par
Oakbrook Summit - Bldg 5835 | 5835 Oakbrook Pky
Hmm, il semble y avoir eu une erreur lors de l’envoi de votre message. Veuillez réessayer.
Merci! Votre message a été envoyé.

