Votre courriel a été envoyé.
Certaines informations ont été traduites automatiquement.
FAITS SAILLANTS
- Le 584-590 Broadway est un immeuble de bureaux de classe A de 12 étages offrant des espaces de bureaux entièrement aménagés.
- Olmstead Properties est heureuse d'offrir de 1 456 à 21 339 pieds carrés de différents plans d'étage de bureaux pouvant répondre aux besoins commerciaux de n'importe quel locataire.
- Les navetteurs peuvent facilement accéder à cet immeuble de bureaux de SoHo puisqu'il est accessible par les lignes B, D, F, M, N, R, W et six lignes de métro.
- L'immeuble a rénové un hall d'entrée communautaire, un préposé dans le hall, des monte-charges et des ascenseurs de passagers et un accès par carte-clé 24 heures sur 24, 7 jours sur 7.
TOUS LES ESPACES DISPONIBLES(10)
Afficher les taux de location en
- ESPACE
- TAILLE
- TERME
- TAUX DE LOCATION
- UTILISATION DE L’ESPACE
- ÉTAT
- DISPONIBLE
currently occupied by Broadway Deli 16' ceilings, 20' frontage can deliver on 60 days notice approximately 1,500 sf of basement space
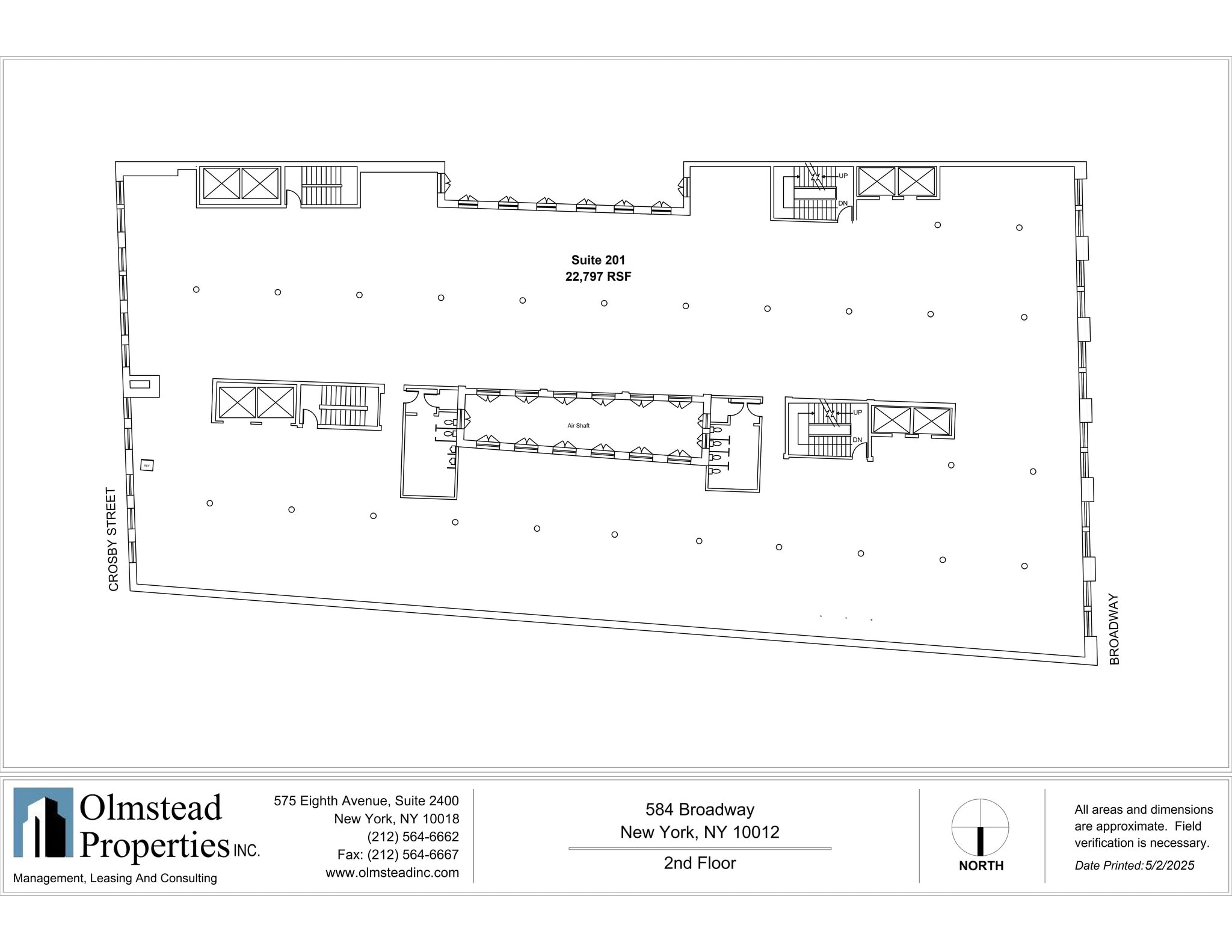
amazing opportunity built space wet pantry tenant controlled air cooled ac units furnished 14' ceilings amazing columns great bay windows facing Broadway can make the full floor available for a total of 22,797 sf
built space, tenant controlled air cooled ac unit, large wet pantry
great clean open small space
Sublet through 7/31/27, possibility for a direct deal Amazing space, directly off the elevators Arched windows, with great western exposure Furnished and ready to go
amazing space with arched windows with western exposures directly off the elevators tenant controlled air cooled ac unit large wet pantry furnished
- Entièrement construit comme Bureau standard
- Espace en excellent état
- Disposition du plan d’étage ouverte en général
amazing space with great eastern exposure, unique arched windows furnished tenant controlled air cooled ac unit wet pantry 5 meeting rooms large conference room
exposed brick wall, tenant controlled air cooled ac unit, wet pantry owner will do work
- Partiellement construit comme Bureau standard
- Climatisation centrale
- Disposition du plan d’étage ouverte
- Brique apparée
Clean open space Owner will do work
great small space with Broadway exposure exposed brick wall wet pantry in place can be furnished
| Espace | Taille | Terme | Taux de location | Utilisation de l’espace | État | Disponible |
| RDC, ste 102 | 2 300 pi² | Négociable | Sur demande Sur demande Sur demande Sur demande | Commerce de détail | - | 60 jours |
| 2e étage, ste 201 | 17 500 à 22 797 pi² | Négociable | Sur demande Sur demande Sur demande Sur demande | Bureau | - | Maintenant |
| 3e étage, ste 308 | 5 115 pi² | Négociable | Sur demande Sur demande Sur demande Sur demande | Bureau | - | Maintenant |
| 5e étage, ste 507 | 820 pi² | Négociable | Sur demande Sur demande Sur demande Sur demande | Bureau | - | Maintenant |
| 9e étage, ste 901 | 4 321 pi² | Négociable | Sur demande Sur demande Sur demande Sur demande | Bureau | - | Maintenant |
| 9e étage, ste 903 | 7 184 pi² | Négociable | Sur demande Sur demande Sur demande Sur demande | Bureau | construction complète | Maintenant |
| 9e étage, ste 907 | 5 347 pi² | Négociable | Sur demande Sur demande Sur demande Sur demande | Bureau | - | Maintenant |
| 10e étage, ste 1005 | 3 392 pi² | Négociable | Sur demande Sur demande Sur demande Sur demande | Bureau | construction partielle | Maintenant |
| 10e étage, ste 1007 | 1 479 pi² | Négociable | Sur demande Sur demande Sur demande Sur demande | Bureau | - | Maintenant |
| 11e étage, ste 1102 | 1 513 pi² | Négociable | Sur demande Sur demande Sur demande Sur demande | Bureau | - | Maintenant |
RDC, ste 102
| Taille |
| 2 300 pi² |
| Terme |
| Négociable |
| Taux de location |
| Sur demande Sur demande Sur demande Sur demande |
| Utilisation de l’espace |
| Commerce de détail |
| État |
| - |
| Disponible |
| 60 jours |
2e étage, ste 201
| Taille |
| 17 500 à 22 797 pi² |
| Terme |
| Négociable |
| Taux de location |
| Sur demande Sur demande Sur demande Sur demande |
| Utilisation de l’espace |
| Bureau |
| État |
| - |
| Disponible |
| Maintenant |
3e étage, ste 308
| Taille |
| 5 115 pi² |
| Terme |
| Négociable |
| Taux de location |
| Sur demande Sur demande Sur demande Sur demande |
| Utilisation de l’espace |
| Bureau |
| État |
| - |
| Disponible |
| Maintenant |
5e étage, ste 507
| Taille |
| 820 pi² |
| Terme |
| Négociable |
| Taux de location |
| Sur demande Sur demande Sur demande Sur demande |
| Utilisation de l’espace |
| Bureau |
| État |
| - |
| Disponible |
| Maintenant |
9e étage, ste 901
| Taille |
| 4 321 pi² |
| Terme |
| Négociable |
| Taux de location |
| Sur demande Sur demande Sur demande Sur demande |
| Utilisation de l’espace |
| Bureau |
| État |
| - |
| Disponible |
| Maintenant |
9e étage, ste 903
| Taille |
| 7 184 pi² |
| Terme |
| Négociable |
| Taux de location |
| Sur demande Sur demande Sur demande Sur demande |
| Utilisation de l’espace |
| Bureau |
| État |
| construction complète |
| Disponible |
| Maintenant |
9e étage, ste 907
| Taille |
| 5 347 pi² |
| Terme |
| Négociable |
| Taux de location |
| Sur demande Sur demande Sur demande Sur demande |
| Utilisation de l’espace |
| Bureau |
| État |
| - |
| Disponible |
| Maintenant |
10e étage, ste 1005
| Taille |
| 3 392 pi² |
| Terme |
| Négociable |
| Taux de location |
| Sur demande Sur demande Sur demande Sur demande |
| Utilisation de l’espace |
| Bureau |
| État |
| construction partielle |
| Disponible |
| Maintenant |
10e étage, ste 1007
| Taille |
| 1 479 pi² |
| Terme |
| Négociable |
| Taux de location |
| Sur demande Sur demande Sur demande Sur demande |
| Utilisation de l’espace |
| Bureau |
| État |
| - |
| Disponible |
| Maintenant |
11e étage, ste 1102
| Taille |
| 1 513 pi² |
| Terme |
| Négociable |
| Taux de location |
| Sur demande Sur demande Sur demande Sur demande |
| Utilisation de l’espace |
| Bureau |
| État |
| - |
| Disponible |
| Maintenant |
RDC, ste 102
| Taille | 2 300 pi² |
| Terme | Négociable |
| Taux de location | Sur demande |
| Utilisation de l’espace | Commerce de détail |
| État | - |
| Disponible | 60 jours |
currently occupied by Broadway Deli 16' ceilings, 20' frontage can deliver on 60 days notice approximately 1,500 sf of basement space
2e étage, ste 201
| Taille | 17 500 à 22 797 pi² |
| Terme | Négociable |
| Taux de location | Sur demande |
| Utilisation de l’espace | Bureau |
| État | - |
| Disponible | Maintenant |
amazing opportunity built space wet pantry tenant controlled air cooled ac units furnished 14' ceilings amazing columns great bay windows facing Broadway can make the full floor available for a total of 22,797 sf
3e étage, ste 308
| Taille | 5 115 pi² |
| Terme | Négociable |
| Taux de location | Sur demande |
| Utilisation de l’espace | Bureau |
| État | - |
| Disponible | Maintenant |
built space, tenant controlled air cooled ac unit, large wet pantry
5e étage, ste 507
| Taille | 820 pi² |
| Terme | Négociable |
| Taux de location | Sur demande |
| Utilisation de l’espace | Bureau |
| État | - |
| Disponible | Maintenant |
great clean open small space
9e étage, ste 901
| Taille | 4 321 pi² |
| Terme | Négociable |
| Taux de location | Sur demande |
| Utilisation de l’espace | Bureau |
| État | - |
| Disponible | Maintenant |
Sublet through 7/31/27, possibility for a direct deal Amazing space, directly off the elevators Arched windows, with great western exposure Furnished and ready to go
9e étage, ste 903
| Taille | 7 184 pi² |
| Terme | Négociable |
| Taux de location | Sur demande |
| Utilisation de l’espace | Bureau |
| État | construction complète |
| Disponible | Maintenant |
amazing space with arched windows with western exposures directly off the elevators tenant controlled air cooled ac unit large wet pantry furnished
- Entièrement construit comme Bureau standard
- Disposition du plan d’étage ouverte en général
- Espace en excellent état
9e étage, ste 907
| Taille | 5 347 pi² |
| Terme | Négociable |
| Taux de location | Sur demande |
| Utilisation de l’espace | Bureau |
| État | - |
| Disponible | Maintenant |
amazing space with great eastern exposure, unique arched windows furnished tenant controlled air cooled ac unit wet pantry 5 meeting rooms large conference room
10e étage, ste 1005
| Taille | 3 392 pi² |
| Terme | Négociable |
| Taux de location | Sur demande |
| Utilisation de l’espace | Bureau |
| État | construction partielle |
| Disponible | Maintenant |
exposed brick wall, tenant controlled air cooled ac unit, wet pantry owner will do work
- Partiellement construit comme Bureau standard
- Disposition du plan d’étage ouverte
- Climatisation centrale
- Brique apparée
10e étage, ste 1007
| Taille | 1 479 pi² |
| Terme | Négociable |
| Taux de location | Sur demande |
| Utilisation de l’espace | Bureau |
| État | - |
| Disponible | Maintenant |
Clean open space Owner will do work
11e étage, ste 1102
| Taille | 1 513 pi² |
| Terme | Négociable |
| Taux de location | Sur demande |
| Utilisation de l’espace | Bureau |
| État | - |
| Disponible | Maintenant |
great small space with Broadway exposure exposed brick wall wet pantry in place can be furnished
APERÇU DE LA PROPRIÉTÉ
Bienvenue au 584-590 Broadway, un immeuble de bureaux de première classe de douze étages situé au cœur de SoHo. Cet immeuble comprend deux halls rénovés avec ascenseurs à grande vitesse récemment rénovés, des espaces communs et des toilettes rénovés, et la commodité d'un bureau de gestion du propriétaire sur place. Le 584 Broadway a été construit à l'origine en 1897 en pierre et en bois. Les locataires du 584 Broadway ont accès à tout ce que le quartier SoHo offre. Le quartier est riche en commodités, y compris des restaurants, des magasins de détail de luxe et des galeries d'art, le tout à quelques minutes. Grâce à l'accessibilité facile, les déplacements quotidiens sont faciles à utiliser grâce aux lignes de train de banlieue et de transport en commun du métro. Pour d'autres voyages d'affaires, l'aéroport LaGuardia se trouve à environ 16 km et l'aéroport international Newark Liberty est à environ 25 km.
- Accès 24 heures
- Ligne d'autobus
- Métro
- Gestionnaire d'immeuble sur place
FAITS SUR LA PROPRIÉTÉ
Présenté par
584-590 Broadway
Hmm, il semble y avoir eu une erreur lors de l’envoi de votre message. Veuillez réessayer.
Merci! Votre message a été envoyé.





























