Votre courriel a été envoyé.
Tower 591 591 Camino de la Reina 801–60 279 pi² d'espace disponible • Bureau • 4 étoiles • San Diego, CA 92108



Certaines informations ont été traduites automatiquement.
Tous les espaces disponibles(17)
Afficher les taux de location en
- Espace
- Taille
- Terme
- Taux de location
- Utilisation de l’espace
- Aménagement
- Disponible
9 private offices, conference room, break room, internal restroom, IT and electrical room
- Taux de location inscrit plus part proportionnelle des coûts de la consommation électrique
- Disposition du plan d’étage ouverte en général
- 2 salles de conférence
- Partiellement construit comme Bureau standard
- 9 bureaux privés
- Climatisation centrale
“Reception, break room, conference room, 2 private office, IT, storage, and large open area. Suites 205 & 216 are contiguous for up to 6,987 SF.
- Taux de location inscrit plus part proportionnelle des coûts de la consommation électrique
- Disposition du plan d’étage ouverte
- 1 salle de conférence
- Climatisation centrale
- Partiellement construit comme Bureau standard
- 2 bureaux privés
- Peut être associé à un ou plusieurs espaces supplémentaires pour obtenir jusqu’à 6 987 pi² d’espace adjacent.
Conference room, 5 private offices and break room. Suites 205 & 216 are contiguous for up to 6,987 SF.
- Taux de location inscrit plus part proportionnelle des coûts de la consommation électrique
- 1 salle de conférence
- Climatisation centrale
- 5 bureaux privés
- Peut être associé à un ou plusieurs espaces supplémentaires pour obtenir jusqu’à 6 987 pi² d’espace adjacent.
5 private offices, conference room, break room, IT, open remainder. Contiguous with Suite 407 for 9,670 SF.
- Taux de location inscrit plus part proportionnelle des coûts de la consommation électrique
- Disposition du plan d’étage ouverte
- 1 salle de conférence
- Système de chauffage central
- Entièrement construit comme Bureau standard
- 5 bureaux privés
- Peut être associé à un ou plusieurs espaces supplémentaires pour obtenir jusqu’à 9 670 pi² d’espace adjacent.
3 privates offices, 2 conference rooms, production room, open break area, open remainder. Contiguous with Suite 400 for 9,670 SF.
- Taux de location inscrit plus part proportionnelle des coûts de la consommation électrique
- 3 bureaux privés
- Peut être associé à un ou plusieurs espaces supplémentaires pour obtenir jusqu’à 9 670 pi² d’espace adjacent.
- Partiellement construit comme Bureau standard
- 2 salles de conférence
Dense private office buildout. Divisible to 4,000 SF
- Taux de location inscrit plus part proportionnelle des coûts de la consommation électrique
- Disposition intensive du bureau
- Partiellement construit comme Bureau standard
- Climatisation centrale
Suites 530 & 540 are contiguous for up to 2,816 SF.
- Taux de location inscrit plus part proportionnelle des coûts de la consommation électrique
- 4 bureaux privés
- Peut être associé à un ou plusieurs espaces supplémentaires pour obtenir jusqu’à 2 816 pi² d’espace adjacent.
- Partiellement construit comme Bureau standard
- 1 salle de conférence
- Climatisation centrale
Suites 530 & 540 are contiguous for up to 2,816 SF
- Taux de location inscrit plus part proportionnelle des coûts de la consommation électrique
- Disposition intensive du bureau
- Climatisation centrale
- Partiellement construit comme Bureau standard
- Peut être associé à un ou plusieurs espaces supplémentaires pour obtenir jusqu’à 2 816 pi² d’espace adjacent.
Private offices, kitchen and open area.
- Taux de location inscrit plus part proportionnelle des coûts de la consommation électrique
- Disposition intensive du bureau
- Partiellement construit comme Bureau standard
- Climatisation centrale
3 private offices, conference room, break room, open remainder
- Taux de location inscrit plus part proportionnelle des coûts de la consommation électrique
- Disposition du plan d’étage ouverte
- 1 salle de conférence
- Partiellement construit comme Bureau standard
- 3 bureaux privés
- Climatisation centrale
Reception, 5 private offices, break room, conference room and large open area.
- Taux de location inscrit plus part proportionnelle des coûts de la consommation électrique
- Disposition du plan d’étage ouverte en général
- 1 salle de conférence
- Partiellement construit comme Bureau standard
- 5 bureaux privés
- Climatisation centrale
6 private offices, break room and open area.
- Taux de location inscrit plus part proportionnelle des coûts de la consommation électrique
- Disposition du plan d’étage ouverte
- Climatisation centrale
- Partiellement construit comme Bureau standard
- 6 bureaux privés
Suites 1120 & 1130 are contiguous for up to 6,625 SF.
- Taux de location inscrit plus part proportionnelle des coûts de la consommation électrique
- Disposition du plan d’étage ouverte en général
- Partiellement construit comme Bureau standard
- Climatisation centrale
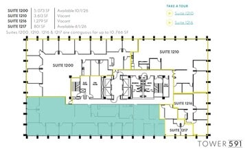
Double door ID with premium west facing views. Reception, 10 offices, conference, open space, break room, IT/storage.
- Taux de location inscrit plus part proportionnelle des coûts de la consommation électrique
- 10 bureaux privés
- Peut être associé à un ou plusieurs espaces supplémentaires pour obtenir jusqu’à 10 766 pi² d’espace adjacent.
- Entièrement construit comme Bureau standard
- Espace en excellent état
3 private offices, storage, conference, and break room. Suites 1210 & 1216 are contiguous for up to 4,892 SF.
- Taux de location inscrit plus part proportionnelle des coûts de la consommation électrique
- Disposition du plan d’étage ouverte en général
- Climatisation centrale
- Partiellement construit comme Bureau standard
- Peut être associé à un ou plusieurs espaces supplémentaires pour obtenir jusqu’à 10 766 pi² d’espace adjacent.
2 private offices, conference room, break room
- Taux de location inscrit plus part proportionnelle des coûts de la consommation électrique
- 2 bureaux privés
- Peut être associé à un ou plusieurs espaces supplémentaires pour obtenir jusqu’à 10 766 pi² d’espace adjacent.
- Partiellement construit comme Bureau standard
- 1 salle de conférence
- Climatisation centrale
- Taux de location inscrit plus part proportionnelle des coûts de la consommation électrique
- Peut être associé à un ou plusieurs espaces supplémentaires pour obtenir jusqu’à 10 766 pi² d’espace adjacent.
| Espace | Taille | Terme | Taux de location | Utilisation de l’espace | Aménagement | Disponible |
| 1er étage, ste 101 | 3 683 pi² | Négociable | 53,72 $ CAD/pi²/an 4,48 $ CAD/pi²/mois 197 860 $ CAD/an 16 488 $ CAD/mois | Bureau | construction partielle | Maintenant |
| 2e étage, ste 205 | 5 166 pi² | Négociable | 53,72 $ CAD/pi²/an 4,48 $ CAD/pi²/mois 277 530 $ CAD/an 23 128 $ CAD/mois | Bureau | construction partielle | Maintenant |
| 2e étage, ste 216 | 1 821 pi² | Négociable | 53,72 $ CAD/pi²/an 4,48 $ CAD/pi²/mois 97 829 $ CAD/an 8 152 $ CAD/mois | Bureau | - | Maintenant |
| 4e étage, ste 400 | 6 244 pi² | Négociable | 53,72 $ CAD/pi²/an 4,48 $ CAD/pi²/mois 335 443 $ CAD/an 27 954 $ CAD/mois | Bureau | construction complète | Maintenant |
| 4e étage, ste 407 | 3 426 pi² | Négociable | 53,72 $ CAD/pi²/an 4,48 $ CAD/pi²/mois 184 053 $ CAD/an 15 338 $ CAD/mois | Bureau | construction partielle | Maintenant |
| 5e étage, ste 510 | 4 000 à 7 134 pi² | Négociable | 53,72 $ CAD/pi²/an 4,48 $ CAD/pi²/mois 383 256 $ CAD/an 31 938 $ CAD/mois | Bureau | construction partielle | Maintenant |
| 5e étage, ste 530 | 1 667 pi² | Négociable | 53,72 $ CAD/pi²/an 4,48 $ CAD/pi²/mois 89 555 $ CAD/an 7 463 $ CAD/mois | Bureau | construction partielle | Maintenant |
| 5e étage, ste 540 | 1 149 pi² | Négociable | 53,72 $ CAD/pi²/an 4,48 $ CAD/pi²/mois 61 727 $ CAD/an 5 144 $ CAD/mois | Bureau | construction partielle | Maintenant |
| 7e étage, ste 710 | 2 837 pi² | Négociable | 53,72 $ CAD/pi²/an 4,48 $ CAD/pi²/mois 152 411 $ CAD/an 12 701 $ CAD/mois | Bureau | construction partielle | Maintenant |
| 7e étage, ste 740 | 3 655 pi² | Négociable | 53,72 $ CAD/pi²/an 4,48 $ CAD/pi²/mois 196 356 $ CAD/an 16 363 $ CAD/mois | Bureau | construction partielle | 60 jours |
| 8e étage, ste 811 | 3 039 pi² | Négociable | 53,72 $ CAD/pi²/an 4,48 $ CAD/pi²/mois 163 263 $ CAD/an 13 605 $ CAD/mois | Bureau | construction partielle | Maintenant |
| 8e étage, ste 818 | 4 000 à 5 955 pi² | Négociable | 53,72 $ CAD/pi²/an 4,48 $ CAD/pi²/mois 319 918 $ CAD/an 26 660 $ CAD/mois | Bureau | construction partielle | Maintenant |
| 11e étage, ste 1130 | 3 737 pi² | Négociable | 53,72 $ CAD/pi²/an 4,48 $ CAD/pi²/mois 200 761 $ CAD/an 16 730 $ CAD/mois | Bureau | construction partielle | Maintenant |
| 12e étage, ste 1200 | 5 073 pi² | Négociable | 53,72 $ CAD/pi²/an 4,48 $ CAD/pi²/mois 272 534 $ CAD/an 22 711 $ CAD/mois | Bureau | construction complète | 2026-10-01 |
| 12e étage, ste 1210 | 3 613 pi² | Négociable | 53,72 $ CAD/pi²/an 4,48 $ CAD/pi²/mois 194 099 $ CAD/an 16 175 $ CAD/mois | Bureau | construction partielle | Maintenant |
| 12e étage, ste 1216 | 1 279 pi² | Négociable | 53,72 $ CAD/pi²/an 4,48 $ CAD/pi²/mois 68 711 $ CAD/an 5 726 $ CAD/mois | Bureau | construction partielle | Maintenant |
| 12e étage, ste 1217 | 801 pi² | Négociable | 57,86 $ CAD/pi²/an 4,82 $ CAD/pi²/mois 46 342 $ CAD/an 3 862 $ CAD/mois | Bureau | - | Maintenant |
1er étage, ste 101
| Taille |
| 3 683 pi² |
| Terme |
| Négociable |
| Taux de location |
| 53,72 $ CAD/pi²/an 4,48 $ CAD/pi²/mois 197 860 $ CAD/an 16 488 $ CAD/mois |
| Utilisation de l’espace |
| Bureau |
| Aménagement |
| construction partielle |
| Disponible |
| Maintenant |
2e étage, ste 205
| Taille |
| 5 166 pi² |
| Terme |
| Négociable |
| Taux de location |
| 53,72 $ CAD/pi²/an 4,48 $ CAD/pi²/mois 277 530 $ CAD/an 23 128 $ CAD/mois |
| Utilisation de l’espace |
| Bureau |
| Aménagement |
| construction partielle |
| Disponible |
| Maintenant |
2e étage, ste 216
| Taille |
| 1 821 pi² |
| Terme |
| Négociable |
| Taux de location |
| 53,72 $ CAD/pi²/an 4,48 $ CAD/pi²/mois 97 829 $ CAD/an 8 152 $ CAD/mois |
| Utilisation de l’espace |
| Bureau |
| Aménagement |
| - |
| Disponible |
| Maintenant |
4e étage, ste 400
| Taille |
| 6 244 pi² |
| Terme |
| Négociable |
| Taux de location |
| 53,72 $ CAD/pi²/an 4,48 $ CAD/pi²/mois 335 443 $ CAD/an 27 954 $ CAD/mois |
| Utilisation de l’espace |
| Bureau |
| Aménagement |
| construction complète |
| Disponible |
| Maintenant |
4e étage, ste 407
| Taille |
| 3 426 pi² |
| Terme |
| Négociable |
| Taux de location |
| 53,72 $ CAD/pi²/an 4,48 $ CAD/pi²/mois 184 053 $ CAD/an 15 338 $ CAD/mois |
| Utilisation de l’espace |
| Bureau |
| Aménagement |
| construction partielle |
| Disponible |
| Maintenant |
5e étage, ste 510
| Taille |
| 4 000 à 7 134 pi² |
| Terme |
| Négociable |
| Taux de location |
| 53,72 $ CAD/pi²/an 4,48 $ CAD/pi²/mois 383 256 $ CAD/an 31 938 $ CAD/mois |
| Utilisation de l’espace |
| Bureau |
| Aménagement |
| construction partielle |
| Disponible |
| Maintenant |
5e étage, ste 530
| Taille |
| 1 667 pi² |
| Terme |
| Négociable |
| Taux de location |
| 53,72 $ CAD/pi²/an 4,48 $ CAD/pi²/mois 89 555 $ CAD/an 7 463 $ CAD/mois |
| Utilisation de l’espace |
| Bureau |
| Aménagement |
| construction partielle |
| Disponible |
| Maintenant |
5e étage, ste 540
| Taille |
| 1 149 pi² |
| Terme |
| Négociable |
| Taux de location |
| 53,72 $ CAD/pi²/an 4,48 $ CAD/pi²/mois 61 727 $ CAD/an 5 144 $ CAD/mois |
| Utilisation de l’espace |
| Bureau |
| Aménagement |
| construction partielle |
| Disponible |
| Maintenant |
7e étage, ste 710
| Taille |
| 2 837 pi² |
| Terme |
| Négociable |
| Taux de location |
| 53,72 $ CAD/pi²/an 4,48 $ CAD/pi²/mois 152 411 $ CAD/an 12 701 $ CAD/mois |
| Utilisation de l’espace |
| Bureau |
| Aménagement |
| construction partielle |
| Disponible |
| Maintenant |
7e étage, ste 740
| Taille |
| 3 655 pi² |
| Terme |
| Négociable |
| Taux de location |
| 53,72 $ CAD/pi²/an 4,48 $ CAD/pi²/mois 196 356 $ CAD/an 16 363 $ CAD/mois |
| Utilisation de l’espace |
| Bureau |
| Aménagement |
| construction partielle |
| Disponible |
| 60 jours |
8e étage, ste 811
| Taille |
| 3 039 pi² |
| Terme |
| Négociable |
| Taux de location |
| 53,72 $ CAD/pi²/an 4,48 $ CAD/pi²/mois 163 263 $ CAD/an 13 605 $ CAD/mois |
| Utilisation de l’espace |
| Bureau |
| Aménagement |
| construction partielle |
| Disponible |
| Maintenant |
8e étage, ste 818
| Taille |
| 4 000 à 5 955 pi² |
| Terme |
| Négociable |
| Taux de location |
| 53,72 $ CAD/pi²/an 4,48 $ CAD/pi²/mois 319 918 $ CAD/an 26 660 $ CAD/mois |
| Utilisation de l’espace |
| Bureau |
| Aménagement |
| construction partielle |
| Disponible |
| Maintenant |
11e étage, ste 1130
| Taille |
| 3 737 pi² |
| Terme |
| Négociable |
| Taux de location |
| 53,72 $ CAD/pi²/an 4,48 $ CAD/pi²/mois 200 761 $ CAD/an 16 730 $ CAD/mois |
| Utilisation de l’espace |
| Bureau |
| Aménagement |
| construction partielle |
| Disponible |
| Maintenant |
12e étage, ste 1200
| Taille |
| 5 073 pi² |
| Terme |
| Négociable |
| Taux de location |
| 53,72 $ CAD/pi²/an 4,48 $ CAD/pi²/mois 272 534 $ CAD/an 22 711 $ CAD/mois |
| Utilisation de l’espace |
| Bureau |
| Aménagement |
| construction complète |
| Disponible |
| 2026-10-01 |
12e étage, ste 1210
| Taille |
| 3 613 pi² |
| Terme |
| Négociable |
| Taux de location |
| 53,72 $ CAD/pi²/an 4,48 $ CAD/pi²/mois 194 099 $ CAD/an 16 175 $ CAD/mois |
| Utilisation de l’espace |
| Bureau |
| Aménagement |
| construction partielle |
| Disponible |
| Maintenant |
12e étage, ste 1216
| Taille |
| 1 279 pi² |
| Terme |
| Négociable |
| Taux de location |
| 53,72 $ CAD/pi²/an 4,48 $ CAD/pi²/mois 68 711 $ CAD/an 5 726 $ CAD/mois |
| Utilisation de l’espace |
| Bureau |
| Aménagement |
| construction partielle |
| Disponible |
| Maintenant |
12e étage, ste 1217
| Taille |
| 801 pi² |
| Terme |
| Négociable |
| Taux de location |
| 57,86 $ CAD/pi²/an 4,82 $ CAD/pi²/mois 46 342 $ CAD/an 3 862 $ CAD/mois |
| Utilisation de l’espace |
| Bureau |
| Aménagement |
| - |
| Disponible |
| Maintenant |
1er étage, ste 101
| Taille | 3 683 pi² |
| Terme | Négociable |
| Taux de location | 53,72 $ CAD/pi²/an |
| Utilisation de l’espace | Bureau |
| Aménagement | construction partielle |
| Disponible | Maintenant |
9 private offices, conference room, break room, internal restroom, IT and electrical room
- Taux de location inscrit plus part proportionnelle des coûts de la consommation électrique
- Partiellement construit comme Bureau standard
- Disposition du plan d’étage ouverte en général
- 9 bureaux privés
- 2 salles de conférence
- Climatisation centrale
2e étage, ste 205
| Taille | 5 166 pi² |
| Terme | Négociable |
| Taux de location | 53,72 $ CAD/pi²/an |
| Utilisation de l’espace | Bureau |
| Aménagement | construction partielle |
| Disponible | Maintenant |
“Reception, break room, conference room, 2 private office, IT, storage, and large open area. Suites 205 & 216 are contiguous for up to 6,987 SF.
- Taux de location inscrit plus part proportionnelle des coûts de la consommation électrique
- Partiellement construit comme Bureau standard
- Disposition du plan d’étage ouverte
- 2 bureaux privés
- 1 salle de conférence
- Peut être associé à un ou plusieurs espaces supplémentaires pour obtenir jusqu’à 6 987 pi² d’espace adjacent.
- Climatisation centrale
2e étage, ste 216
| Taille | 1 821 pi² |
| Terme | Négociable |
| Taux de location | 53,72 $ CAD/pi²/an |
| Utilisation de l’espace | Bureau |
| Aménagement | - |
| Disponible | Maintenant |
Conference room, 5 private offices and break room. Suites 205 & 216 are contiguous for up to 6,987 SF.
- Taux de location inscrit plus part proportionnelle des coûts de la consommation électrique
- 5 bureaux privés
- 1 salle de conférence
- Peut être associé à un ou plusieurs espaces supplémentaires pour obtenir jusqu’à 6 987 pi² d’espace adjacent.
- Climatisation centrale
4e étage, ste 400
| Taille | 6 244 pi² |
| Terme | Négociable |
| Taux de location | 53,72 $ CAD/pi²/an |
| Utilisation de l’espace | Bureau |
| Aménagement | construction complète |
| Disponible | Maintenant |
5 private offices, conference room, break room, IT, open remainder. Contiguous with Suite 407 for 9,670 SF.
- Taux de location inscrit plus part proportionnelle des coûts de la consommation électrique
- Entièrement construit comme Bureau standard
- Disposition du plan d’étage ouverte
- 5 bureaux privés
- 1 salle de conférence
- Peut être associé à un ou plusieurs espaces supplémentaires pour obtenir jusqu’à 9 670 pi² d’espace adjacent.
- Système de chauffage central
4e étage, ste 407
| Taille | 3 426 pi² |
| Terme | Négociable |
| Taux de location | 53,72 $ CAD/pi²/an |
| Utilisation de l’espace | Bureau |
| Aménagement | construction partielle |
| Disponible | Maintenant |
3 privates offices, 2 conference rooms, production room, open break area, open remainder. Contiguous with Suite 400 for 9,670 SF.
- Taux de location inscrit plus part proportionnelle des coûts de la consommation électrique
- Partiellement construit comme Bureau standard
- 3 bureaux privés
- 2 salles de conférence
- Peut être associé à un ou plusieurs espaces supplémentaires pour obtenir jusqu’à 9 670 pi² d’espace adjacent.
5e étage, ste 510
| Taille | 4 000 à 7 134 pi² |
| Terme | Négociable |
| Taux de location | 53,72 $ CAD/pi²/an |
| Utilisation de l’espace | Bureau |
| Aménagement | construction partielle |
| Disponible | Maintenant |
Dense private office buildout. Divisible to 4,000 SF
- Taux de location inscrit plus part proportionnelle des coûts de la consommation électrique
- Partiellement construit comme Bureau standard
- Disposition intensive du bureau
- Climatisation centrale
5e étage, ste 530
| Taille | 1 667 pi² |
| Terme | Négociable |
| Taux de location | 53,72 $ CAD/pi²/an |
| Utilisation de l’espace | Bureau |
| Aménagement | construction partielle |
| Disponible | Maintenant |
Suites 530 & 540 are contiguous for up to 2,816 SF.
- Taux de location inscrit plus part proportionnelle des coûts de la consommation électrique
- Partiellement construit comme Bureau standard
- 4 bureaux privés
- 1 salle de conférence
- Peut être associé à un ou plusieurs espaces supplémentaires pour obtenir jusqu’à 2 816 pi² d’espace adjacent.
- Climatisation centrale
5e étage, ste 540
| Taille | 1 149 pi² |
| Terme | Négociable |
| Taux de location | 53,72 $ CAD/pi²/an |
| Utilisation de l’espace | Bureau |
| Aménagement | construction partielle |
| Disponible | Maintenant |
Suites 530 & 540 are contiguous for up to 2,816 SF
- Taux de location inscrit plus part proportionnelle des coûts de la consommation électrique
- Partiellement construit comme Bureau standard
- Disposition intensive du bureau
- Peut être associé à un ou plusieurs espaces supplémentaires pour obtenir jusqu’à 2 816 pi² d’espace adjacent.
- Climatisation centrale
7e étage, ste 710
| Taille | 2 837 pi² |
| Terme | Négociable |
| Taux de location | 53,72 $ CAD/pi²/an |
| Utilisation de l’espace | Bureau |
| Aménagement | construction partielle |
| Disponible | Maintenant |
Private offices, kitchen and open area.
- Taux de location inscrit plus part proportionnelle des coûts de la consommation électrique
- Partiellement construit comme Bureau standard
- Disposition intensive du bureau
- Climatisation centrale
7e étage, ste 740
| Taille | 3 655 pi² |
| Terme | Négociable |
| Taux de location | 53,72 $ CAD/pi²/an |
| Utilisation de l’espace | Bureau |
| Aménagement | construction partielle |
| Disponible | 60 jours |
3 private offices, conference room, break room, open remainder
- Taux de location inscrit plus part proportionnelle des coûts de la consommation électrique
- Partiellement construit comme Bureau standard
- Disposition du plan d’étage ouverte
- 3 bureaux privés
- 1 salle de conférence
- Climatisation centrale
8e étage, ste 811
| Taille | 3 039 pi² |
| Terme | Négociable |
| Taux de location | 53,72 $ CAD/pi²/an |
| Utilisation de l’espace | Bureau |
| Aménagement | construction partielle |
| Disponible | Maintenant |
Reception, 5 private offices, break room, conference room and large open area.
- Taux de location inscrit plus part proportionnelle des coûts de la consommation électrique
- Partiellement construit comme Bureau standard
- Disposition du plan d’étage ouverte en général
- 5 bureaux privés
- 1 salle de conférence
- Climatisation centrale
8e étage, ste 818
| Taille | 4 000 à 5 955 pi² |
| Terme | Négociable |
| Taux de location | 53,72 $ CAD/pi²/an |
| Utilisation de l’espace | Bureau |
| Aménagement | construction partielle |
| Disponible | Maintenant |
6 private offices, break room and open area.
- Taux de location inscrit plus part proportionnelle des coûts de la consommation électrique
- Partiellement construit comme Bureau standard
- Disposition du plan d’étage ouverte
- 6 bureaux privés
- Climatisation centrale
11e étage, ste 1130
| Taille | 3 737 pi² |
| Terme | Négociable |
| Taux de location | 53,72 $ CAD/pi²/an |
| Utilisation de l’espace | Bureau |
| Aménagement | construction partielle |
| Disponible | Maintenant |
Suites 1120 & 1130 are contiguous for up to 6,625 SF.
- Taux de location inscrit plus part proportionnelle des coûts de la consommation électrique
- Partiellement construit comme Bureau standard
- Disposition du plan d’étage ouverte en général
- Climatisation centrale
12e étage, ste 1200
| Taille | 5 073 pi² |
| Terme | Négociable |
| Taux de location | 53,72 $ CAD/pi²/an |
| Utilisation de l’espace | Bureau |
| Aménagement | construction complète |
| Disponible | 2026-10-01 |
Double door ID with premium west facing views. Reception, 10 offices, conference, open space, break room, IT/storage.
- Taux de location inscrit plus part proportionnelle des coûts de la consommation électrique
- Entièrement construit comme Bureau standard
- 10 bureaux privés
- Espace en excellent état
- Peut être associé à un ou plusieurs espaces supplémentaires pour obtenir jusqu’à 10 766 pi² d’espace adjacent.
12e étage, ste 1210
| Taille | 3 613 pi² |
| Terme | Négociable |
| Taux de location | 53,72 $ CAD/pi²/an |
| Utilisation de l’espace | Bureau |
| Aménagement | construction partielle |
| Disponible | Maintenant |
3 private offices, storage, conference, and break room. Suites 1210 & 1216 are contiguous for up to 4,892 SF.
- Taux de location inscrit plus part proportionnelle des coûts de la consommation électrique
- Partiellement construit comme Bureau standard
- Disposition du plan d’étage ouverte en général
- Peut être associé à un ou plusieurs espaces supplémentaires pour obtenir jusqu’à 10 766 pi² d’espace adjacent.
- Climatisation centrale
12e étage, ste 1216
| Taille | 1 279 pi² |
| Terme | Négociable |
| Taux de location | 53,72 $ CAD/pi²/an |
| Utilisation de l’espace | Bureau |
| Aménagement | construction partielle |
| Disponible | Maintenant |
2 private offices, conference room, break room
- Taux de location inscrit plus part proportionnelle des coûts de la consommation électrique
- Partiellement construit comme Bureau standard
- 2 bureaux privés
- 1 salle de conférence
- Peut être associé à un ou plusieurs espaces supplémentaires pour obtenir jusqu’à 10 766 pi² d’espace adjacent.
- Climatisation centrale
12e étage, ste 1217
| Taille | 801 pi² |
| Terme | Négociable |
| Taux de location | 57,86 $ CAD/pi²/an |
| Utilisation de l’espace | Bureau |
| Aménagement | - |
| Disponible | Maintenant |
- Taux de location inscrit plus part proportionnelle des coûts de la consommation électrique
- Peut être associé à un ou plusieurs espaces supplémentaires pour obtenir jusqu’à 10 766 pi² d’espace adjacent.
Caractéristiques et commodités
- Ligne d'autobus
- Centre de conditionnement physique
- Service d'alimentation
- Gestionnaire d'immeuble sur place
- Système de sécurité
- Affichage
Faits sur la propriété
Présenté par
Tower 591 | 591 Camino de la Reina
Hmm, il semble y avoir eu une erreur lors de l’envoi de votre message. Veuillez réessayer.
Merci! Votre message a été envoyé.

















