Votre courriel a été envoyé.
5934 Mission Blvd - MISSION BLVD COMMERICAL Lot • Terrain commercial • 2 Acres • 2 615 949 $ CAD • Riverside, CA 92509



Certaines informations ont été traduites automatiquement.
Faits saillants de l'investissement
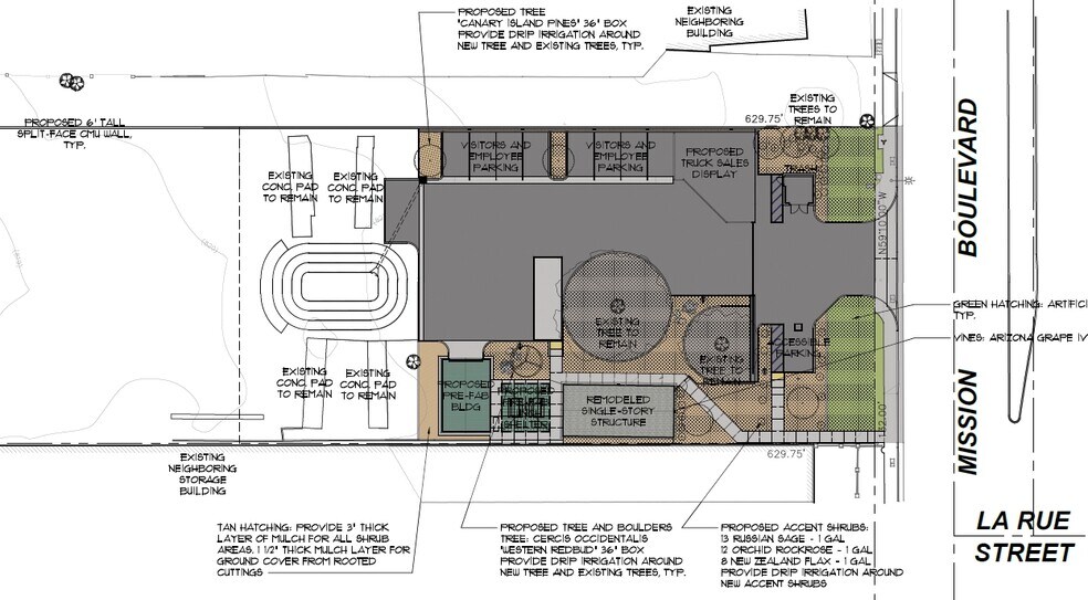
- This sale includes an APPROVED Tenant Improvement plan for a COMMERCIAL (HEAVY DUTY) TRUCK SALES & REPAIR FACILITY!!
- Approximately 2.0 acres of vacant commercial land with valuable C-1/C-P = Neighborhood / General Commercial, allowing a wide range of use.
Résumé de l'annonce
Faits sur la propriété
1 Lot disponible
Lot
| Prix | 2 615 949 $ CAD | Taille du lot | 2,00 AC |
| Prix par AC | 1 307 974,46 $ CAD |
| Prix | 2 615 949 $ CAD |
| Prix par AC | 1 307 974,46 $ CAD |
| Taille du lot | 2,00 AC |
2.0 acres of vacant commercial land (Lot Dimensions: 132' x 628') with valuable C-1/C-P = Neighborhood / General Commercial, allowing a wide range of use. Ideal for retail, service, office, and light commercial uses.
Description
Exceptionnelle opportunité de développement commercial dans la vallée en pleine croissance de Jurupa Valley! Environ 2,0 acres de terrain commercial vacant avec une précieuse désignation C-1/C-P = Commercial de quartier/général, permettant une large gamme d'utilisations. Idéal pour des commerces de détail, services, bureaux et utilisations commerciales légères desservant les résidents locaux et le trafic de passage. Cette vente inclut un plan d'amélioration locative APPROUVÉ pour une INSTALLATION DE VENTE ET RÉPARATION DE CAMIONS COMMERCIAUX (LOURDS)!! Économisant à un propriétaire ou investisseur un temps considérable, des coûts et des incertitudes liées aux autorisations. Idéal pour un propriétaire-utilisateur commercial, un investisseur ou un développeur cherchant un site prêt à l'emploi avec un fort potentiel lié à l'automobile. La propriété offre une excellente visibilité le long de Mission Blvd avec un fort trafic, une visibilité accrue et un accès facile aux principaux corridors de transport de l'Inland Empire. Entourée d'entreprises industrielles, commerciales et automobiles établies. Une rare opportunité d'acheter un terrain commercial avec des plans déjà approuvés. L'acheteur doit vérifier tous les détails de zonage et d'utilisation du terrain avec la ville de Jurupa Valley.
Impôts fonciers
| Numéro de lot | 182-230-022 | Évaluation des bâtiments | 13 985 $ CAD |
| Évaluation du terrain | 769 159 $ CAD | Évaluation totale | 783 144 $ CAD |
Impôts fonciers
Présenté par
5934 Mission Blvd - MISSION BLVD COMMERICAL
Hmm, il semble y avoir eu une erreur lors de l’envoi de votre message. Veuillez réessayer.
Merci! Votre message a été envoyé.
