Votre courriel a été envoyé.
5956 Camden & 0000 Camden Rd
Fayetteville, NC 28306
Ground Lease or BTS Corner Opportunity with T · Terrain À louer


Certaines informations ont été traduites automatiquement.
Faits saillants
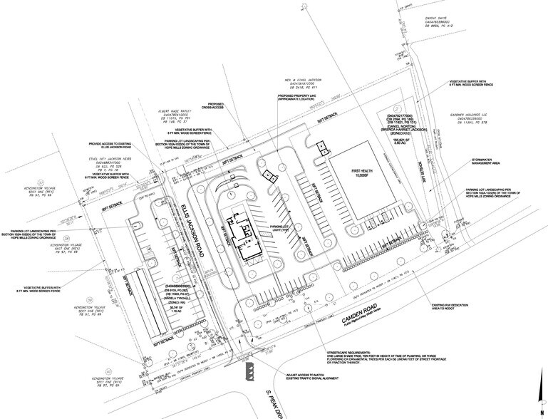
- Jusqu'à 4,97 acres de site zoné C (P) -CZ disponible pour bail foncier ou BTS
- Feu de signalisation à mouvement intégral pour une excellente accessibilité
- 630 pieds de façade le long du chemin Camden
- Subdivisé en parcelles aussi petites que 1,16 acre
- Entouré de nombreux détaillants et de QSR comme Culver's, Stone Theater, et plus
- Population de 51 799 habitants en 2024 dans un rayon de 3 milles
Aperçu de la propriété
Le site de 4,97 acres au 5956 Camden Rd est zoné C (P) -CZ, offrant une possibilité polyvalente de location foncière ou de construction sur mesure, avec des tarifs dépendant des spécifications de livraison telles que la préparation du site et la taille de la parcelle. Le site peut être subdivisé en plusieurs parcelles, avec des divisions aussi petites que 1,16 acre et deux coins disponibles, ce qui permet une flexibilité pour une gamme de besoins de développement. Avec plus de 630 pieds de façade le long du chemin Camden, il bénéficie d'une excellente visibilité et d'une excellente accessibilité grâce à un feu de signalisation à mouvement complet. De l'autre côté de la rue, un nouveau restaurant Culver's et une salle de cinéma à proximité contribuent à la vigoureuse activité commerciale de la région. Les services publics sont idéalement situés à proximité, prêts à être agrandis au besoin. Ce site est idéal pour une variété d'utilisations, y compris des projets de vente au détail, de restauration ou de projets multifamiliaux, offrant aux futurs locataires l'avantage de tirer parti d'un marché local en pleine croissance. Situé le long de Camden Rd, en face du centre commercial Millstone et du Stone Theater, ce site de 4,97 acres est idéalement situé dans un carrefour commercial et résidentiel dynamique. Le chemin Camden devrait être élargi, ce qui améliorera la fluidité de la circulation et l'accès au site. La propriété est située dans une zone à forte demande avec une population de 1 799 habitants de 2024 dans un rayon de 3 milles, une population diurne de 39 736 habitants et un revenu moyen des ménages de 87 115$. Les développements résidentiels à proximité, y compris Kensington Village et Castlefield at Millstone, soutiennent une clientèle croissante, ce qui fait de ce site une option très attrayante pour les entreprises qui recherchent à la fois de la visibilité et un trafic régulier de consommateurs.
Faits sur la propriété
| Superficie totale disponible | 4,96 AC | Sous-type de propriété | Terrain commercial |
| Min. divisible | 1,16 AC | Utilisation proposée | |
| Type de propriété | Terrain | Rues transversales | 0000 Camden Road |
| Superficie totale disponible | 4,96 AC |
| Min. divisible | 1,16 AC |
| Type de propriété | Terrain |
| Sous-type de propriété | Terrain commercial |
| Utilisation proposée | |
| Rues transversales | 0000 Camden Road |
