Votre courriel a été envoyé.
5967 Merle Hay Rd 2 400 pi² d'espace disponible • Bureau/Médical • Johnston, IA 50131



Certaines informations ont été traduites automatiquement.
DISPONIBILITÉ DE L’ESPACE (1)
Afficher les taux de location en
- ESPACE
- TAILLE
- TERME
- TAUX DE LOCATION
- TYPE DE LOYER
| Espace | Taille | Terme | Taux de location | Type de loyer | ||
| 1er étage, ste 5967 | 2 400 pi² | Négociable | 16,59 $ CAD/pi²/an 1,38 $ CAD/pi²/mois 39 816 $ CAD/an 3 318 $ CAD/mois | Loyer hypernet |
1er étage, ste 5967
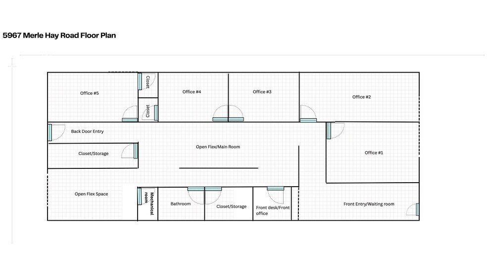
Office space for lease in Johnston, IA - located in a Strategic Growth Area. Office space is situated on Merle Hay Road, a high-traffic road (20,000+ cars daily drive by) offering businesses significant opportunity for high-visibility and long-term growth. Space Details: This space is partially built out - walls, drywall, trim, doors, lighting, etc. are complete. Currently has cement flooring throughout and exposed ceiling in parts of the unit - great opportunity for the new tenant to make the space their own! IDEAL FOR: -Smaller medical offices: Chiropractors, Physical Therapists, Physicians, Optometrists, Podiatrists, or other healthcare providers. -Professional offices: Legal firms, Financial Advisors, Real Estate Agencies, Consulting Firms, Construction Companies, and other professional services seeking a prestigious and accessible location. NEIGHBORING BUSINESSES: Hy-Vee, Trostel's Greenbriar, El Mariachi, Johnston Town Center, Wells Fargo, and more!
- Le taux de location ne comprend pas les services publics, les services de bâtiment ou les dépenses immobilières.
- Convient pour 6 à 20 personnes
- 5 bureaux privés
- 1 salle de conférence
- 1 poste de travail
Types de loyers
Le type et le montant du loyer que le locataire (preneur) est tenu de payer au propriétaire (bailleur) sur la durée du bail sont négociés avant la signature du bail par les deux parties. Le type de loyer varie selon les services fournis. Par exemple, le prix d’un loyer hypernet est habituellement inférieur à celui d’un bail à service complet puisque le locataire est tenu d’assumer des dépenses additionnelles par rapport au loyer de base. Contactez le courtier inscripteur pour tout connaître sur les frais connexes et additionnels associés à chaque type de loyer.
1. Service complet: Un taux de location qui comprend des services standards liés à l’immeuble fournis par le propriétaire dans le cadre d’une location annuelle de base.
2. Loyer supernet: Le locataire paie seulement deux des frais de l’immeuble. Le propriétaire et le locataire déterminent ces frais spécifiques avant la signature du bail.
3. Loyer hypernet: Un bail en vertu duquel le locataire est responsable de tous les frais liés à sa part proportionnelle d’occupation de l’immeuble.
4. Brut modifié: Le loyer brut modifié désigne un type général de taux de location dans lequel le locataire est habituellement responsable de sa part proportionnelle d’un ou de plusieurs frais. C’est le propriétaire qui paie les frais restants. Considérez les structures tarifaires courantes suivantes applicables aux loyers bruts modifiés: 4. Plus les services: Un type de bail brut modifié suivant lequel le locataire est responsable de sa part proportionnelle des coûts des services publics, en plus du loyer. 4. Plus le nettoyage: Un type de bail brut modifié suivant lequel le locataire est responsable de sa part proportionnelle des coûts de nettoyage, en plus du loyer. 4. Plus l'électricité: Un type de bail brut modifié suivant lequel le locataire est responsable de sa part proportionnelle des coûts d’électricité, en plus du loyer. 4. Plus l’électricité et le nettoyage: Un type de bail brut modifié dans lequel le locataire est responsable de sa part proportionnelle des coûts d’électricité et de nettoyage, en plus du loyer. 4. Plus les services publics et le nettoyage: Un type de bail brut modifié dans lequel le locataire est responsable de sa part proportionnelle des coûts des services publics et de nettoyage, en plus du loyer. 4. Bail industriel brut: Un type de bail brut modifié dans lequel le locataire paie un ou plusieurs des frais, en plus du loyer. Le propriétaire et le locataire déterminent ces frais spécifiques avant la signature du bail.
5. L’électricité est à la charge du locataire: Le propriétaire paie pour tous les services et le locataire est responsable de sa propre utilisation de l’éclairage et des prises électriques dans l’espace qu’il occupe.
6. Négociable ou sur demande: Cette option est utilisée lorsque le contact de location ne précise pas le type de loyer ou de service.
7. À déterminer: À déterminer ; utilisé pour les immeubles dont le type de services ou de loyer n’est pas connu, souvent quand l’immeuble n’est pas encore construit.
PLAN DE SITE
FAITS SUR LA PROPRIÉTÉ
| Superficie totale disponible | 2 400 pi² | Superficie commerciale brute | 8 040 pi² |
| Type de propriété | Commerce de détail | Année de construction/rénovation | 1975/2001 |
| Sous-type de propriété | Bien à usage mixte | Ratio de stationnement | 6,72/1 000 pi² |
| Superficie totale disponible | 2 400 pi² |
| Type de propriété | Commerce de détail |
| Sous-type de propriété | Bien à usage mixte |
| Superficie commerciale brute | 8 040 pi² |
| Année de construction/rénovation | 1975/2001 |
| Ratio de stationnement | 6,72/1 000 pi² |
PRINCIPAUX DÉTAILLANTS À PROXIMITÉ
Présenté par
EDF Management
5967 Merle Hay Rd
Hmm, il semble y avoir eu une erreur lors de l’envoi de votre message. Veuillez réessayer.
Merci! Votre message a été envoyé.



