Votre courriel a été envoyé.
7th & Brannan 600 7th St 416 pi² d'espace disponible • Commerce de détail • San Francisco, CA 94103


Certaines informations ont été traduites automatiquement.
Faits saillants
- Lyers inférieurs aux taux du marché
- Quatre espaces commerciaux au rez-de-chaussée disponibles, avec la possibilité de louer séparément ou de combiner des espaces
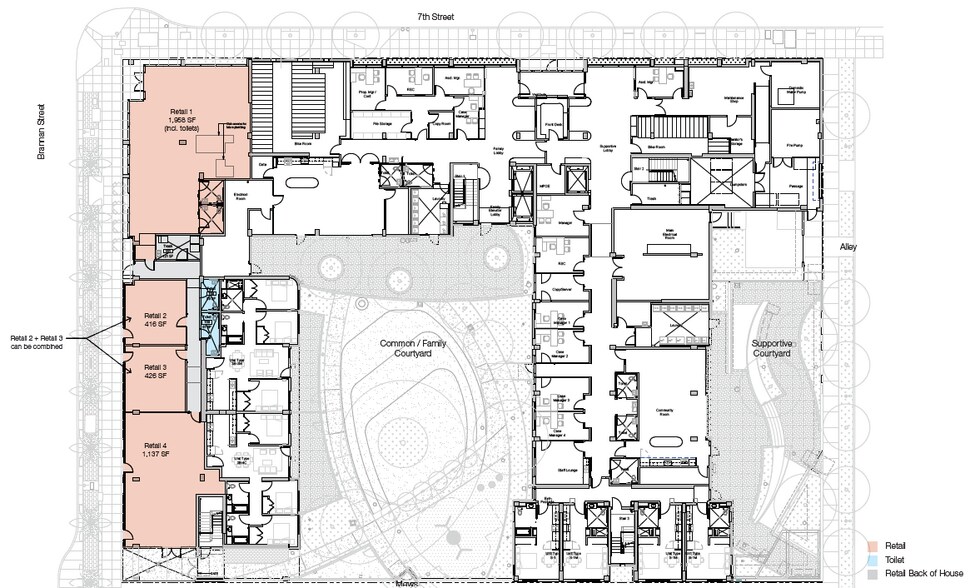
- Ce projet servira les familles et les personnes qui ont vécu l'itinérance et comprendra quatre espaces commerciaux au rez-de-chaussée.
- Environnement propice aux piétons, idéal pour attirer la circulation piétonnière
- situé à l'angle de la 7e rue et de la rue Brannan, dans le quartier animé South of Market (SomA) de San Francisco
- The spaces will be leased separately, but some spaces can be combined.
Tous les espaces disponibles(1)
Afficher les taux de location en
- Espace
- Taille
- Terme
- Taux de location
- Utilisation de l’espace
- Aménagement
- Disponible
Spaces 2, 3, and 4 a shared hallway with two ADA bathrooms and a trash room.
- Le taux de location ne comprend pas les services publics, les services de bâtiment ou les dépenses immobilières.
- Situé en ligne avec d’autres commerces de détail
- Climatisation centrale
- Plafonds finis: 9’
- Éclairage naturel
- Partiellement construit comme Espace de commerce de détail standard
- Espace en excellent état
- Salle de bains privée
- Détecteur de fumée
| Espace | Taille | Terme | Taux de location | Utilisation de l’espace | Aménagement | Disponible |
| 1er étage, ste 2 | 416 pi² | Négociable | 32,89 $ CAD/pi²/an 2,74 $ CAD/pi²/mois 13 682 $ CAD/an 1 140 $ CAD/mois | Commerce de détail | construction partielle | Maintenant |
1er étage, ste 2
| Taille |
| 416 pi² |
| Terme |
| Négociable |
| Taux de location |
| 32,89 $ CAD/pi²/an 2,74 $ CAD/pi²/mois 13 682 $ CAD/an 1 140 $ CAD/mois |
| Utilisation de l’espace |
| Commerce de détail |
| Aménagement |
| construction partielle |
| Disponible |
| Maintenant |
1er étage, ste 2
| Taille | 416 pi² |
| Terme | Négociable |
| Taux de location | 32,89 $ CAD/pi²/an |
| Utilisation de l’espace | Commerce de détail |
| Aménagement | construction partielle |
| Disponible | Maintenant |
Spaces 2, 3, and 4 a shared hallway with two ADA bathrooms and a trash room.
- Le taux de location ne comprend pas les services publics, les services de bâtiment ou les dépenses immobilières.
- Partiellement construit comme Espace de commerce de détail standard
- Situé en ligne avec d’autres commerces de détail
- Espace en excellent état
- Climatisation centrale
- Salle de bains privée
- Plafonds finis: 9’
- Détecteur de fumée
- Éclairage naturel
Faits sur la propriété
| Superficie totale disponible | 416 pi² | Style d’appartement | De hauteur moyenne |
| Nombre d’unités | 221 | Taille du bâtiment | 185 760 pi² |
| Type de propriété | Immeuble residentiel | Année de construction | 2024 |
| Sous-type de propriété | Appartement |
| Superficie totale disponible | 416 pi² |
| Nombre d’unités | 221 |
| Type de propriété | Immeuble residentiel |
| Sous-type de propriété | Appartement |
| Style d’appartement | De hauteur moyenne |
| Taille du bâtiment | 185 760 pi² |
| Année de construction | 2024 |
À propos de la propriété
Un nouveau projet de construction situé à l'angle de la 7e rue et de la rue Brannan dans le quartier South of Market (SoA) de San Francisco. Ce projet servira les familles et les personnes qui ont vécu l'itinérance et comprendra quatre espaces commerciaux au rez-de-chaussée. Les espaces seront loués séparément, mais certains espaces peuvent être combinés. Cet environnement propice aux piétons est l'endroit idéal pour votre entreprise.
Principaux détaillants à proximité
Présenté par
7th & Brannan | 600 7th St
Hmm, il semble y avoir eu une erreur lors de l’envoi de votre message. Veuillez réessayer.
Merci! Votre message a été envoyé.


