Votre courriel a été envoyé.
C 600 Orwell St 4 809–16 375 pi² d'espace disponible • Mississauga, ON L5A 3R9



Certaines informations ont été traduites automatiquement.
Faits saillants
- Accès excellent aux principales routes de transport, y compris la QEW, l'autoroute 403 et l'autoroute 427.
- Situé dans une zone d'emploi mature de Mississauga, entouré d'utilisateurs commerciaux établis.
- Emplacement central offrant une forte connectivité pour le personnel, les clients et la logistique.
Caractéristiques
Tous les espaces disponibles(2)
Afficher les taux de location en
- Espace
- Taille
- Terme
- Taux de location
- Utilisation de l’espace
- Aménagement
- Disponible
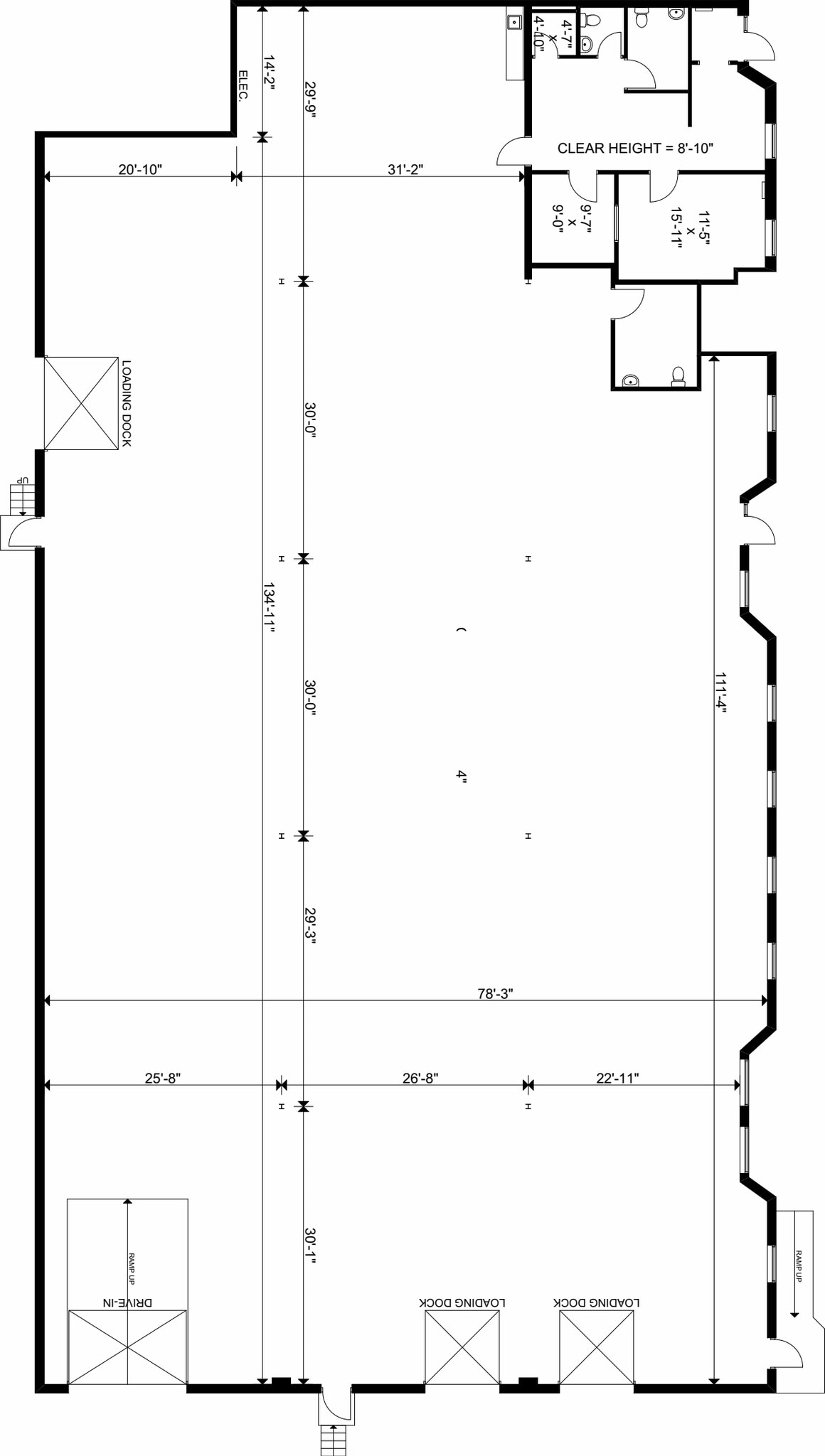
Espace d'entrepôt très fonctionnel disponible le 1er mai 2025. Rénovations en cours. Bureau minimal. Éclairage LED partout. 3 portes de quai pour camions, dont 2 peuvent accueillir des remorques de 53 pieds. 1 porte d'entrée pour véhicules. Proximité de plusieurs commodités et accès facile à la Q.E.W., à l'autoroute Gardiner et à l'autoroute 427.
- Le taux de location ne comprend pas les services publics, les services de bâtiment ou les dépenses immobilières.
- 1 accès plain-pied
- Air central et chauffage
- Éclairage à DEL partout
- Peut accueillir des remorques de 53 pieds
- Comprend 578 pi² d’espace de bureau dédié
- 3 quais de chargement
- Bureaux partitionnés
- 3 portes de niveau camion
- 1 porte d'entrée
Disponible immédiatement! Superbe espace d'entrepôt dans le sud de Mississauga avec 2 portes de quai pour camions. Proche de plusieurs commodités et accès facile à la Q.E.W., à l'autoroute Gardiner et à l'autoroute 427.
- Le taux de location ne comprend pas les services publics, les services de bâtiment ou les dépenses immobilières.
- 2 portes de quai pour camions
- 2 quais de chargement
| Espace | Taille | Terme | Taux de location | Utilisation de l’espace | Aménagement | Disponible |
| 1er étage - 14 | 11 566 pi² | 1-10 ans | 18,25 $ CAD/pi²/an 1,52 $ CAD/pi²/mois 211 080 $ CAD/an 17 590 $ CAD/mois | Flex | construction partielle | Maintenant |
| 1er étage - 16-17 | 4 809 pi² | Négociable | 18,95 $ CAD/pi²/an 1,58 $ CAD/pi²/mois 91 131 $ CAD/an 7 594 $ CAD/mois | Industriel | - | Maintenant |
1er étage - 14
| Taille |
| 11 566 pi² |
| Terme |
| 1-10 ans |
| Taux de location |
| 18,25 $ CAD/pi²/an 1,52 $ CAD/pi²/mois 211 080 $ CAD/an 17 590 $ CAD/mois |
| Utilisation de l’espace |
| Flex |
| Aménagement |
| construction partielle |
| Disponible |
| Maintenant |
1er étage - 16-17
| Taille |
| 4 809 pi² |
| Terme |
| Négociable |
| Taux de location |
| 18,95 $ CAD/pi²/an 1,58 $ CAD/pi²/mois 91 131 $ CAD/an 7 594 $ CAD/mois |
| Utilisation de l’espace |
| Industriel |
| Aménagement |
| - |
| Disponible |
| Maintenant |
1er étage - 14
| Taille | 11 566 pi² |
| Terme | 1-10 ans |
| Taux de location | 18,25 $ CAD/pi²/an |
| Utilisation de l’espace | Flex |
| Aménagement | construction partielle |
| Disponible | Maintenant |
Espace d'entrepôt très fonctionnel disponible le 1er mai 2025. Rénovations en cours. Bureau minimal. Éclairage LED partout. 3 portes de quai pour camions, dont 2 peuvent accueillir des remorques de 53 pieds. 1 porte d'entrée pour véhicules. Proximité de plusieurs commodités et accès facile à la Q.E.W., à l'autoroute Gardiner et à l'autoroute 427.
- Le taux de location ne comprend pas les services publics, les services de bâtiment ou les dépenses immobilières.
- Comprend 578 pi² d’espace de bureau dédié
- 1 accès plain-pied
- 3 quais de chargement
- Air central et chauffage
- Bureaux partitionnés
- Éclairage à DEL partout
- 3 portes de niveau camion
- Peut accueillir des remorques de 53 pieds
- 1 porte d'entrée
1er étage - 16-17
| Taille | 4 809 pi² |
| Terme | Négociable |
| Taux de location | 18,95 $ CAD/pi²/an |
| Utilisation de l’espace | Industriel |
| Aménagement | - |
| Disponible | Maintenant |
Disponible immédiatement! Superbe espace d'entrepôt dans le sud de Mississauga avec 2 portes de quai pour camions. Proche de plusieurs commodités et accès facile à la Q.E.W., à l'autoroute Gardiner et à l'autoroute 427.
- Le taux de location ne comprend pas les services publics, les services de bâtiment ou les dépenses immobilières.
- 2 quais de chargement
- 2 portes de quai pour camions
Aperçu de la propriété
Le 600 rue Orwell est un bâtiment industriel fonctionnel situé dans l'un des secteurs d'emploi matures et bien connectés de Mississauga. La propriété offre un mélange pratique d'espace d'entrepôt et de bureaux, avec des configurations flexibles adaptées à une variété d'utilisateurs industriels légers, de distribution et de services. Avec un chargement efficace, un stationnement sur place abondant et une circulation sur le site simple, le bâtiment soutient des opérations quotidiennes sans accroc. Sa localisation stratégique permet un accès rapide aux principales autoroutes, y compris la QEW, la 403 et la 427, assurant une forte connectivité régionale tant pour le personnel que pour les besoins logistiques. Entouré d'utilisations commerciales établies et d'aménités locales, le 600 rue Orwell offre un cadre fiable et accessible pour les entreprises à la recherche d'un espace industriel fonctionnel au centre de Mississauga.
Faits sur la propriété
Sélectionner des locataires
- Étage
- Nom du locataire
- 1ᵉʳ
- Just Shoot It
- 1ᵉʳ
- Mississauga Guan Yin Tang
Présenté par
C | 600 Orwell St
Hmm, il semble y avoir eu une erreur lors de l’envoi de votre message. Veuillez réessayer.
Merci! Votre message a été envoyé.





