Se Connecter/S’inscrire
Votre courriel a été envoyé.
601 E Clark St 1 734 pi² Bureau Immeuble Brandon, WI 53919 396 633 $ CAD (228,74 $ CAD/pi²)



Certaines informations ont été traduites automatiquement.
Faits saillants de l'investissement
- Signalisation des monuments
- Sous-sol inachevé
- Une (1) salle de bain unisexe, plus 5 pièces avec plomberie
- Expansion ou conversion potentielle à un usage de bureau ou de vente au détail
Résumé de l'annonce
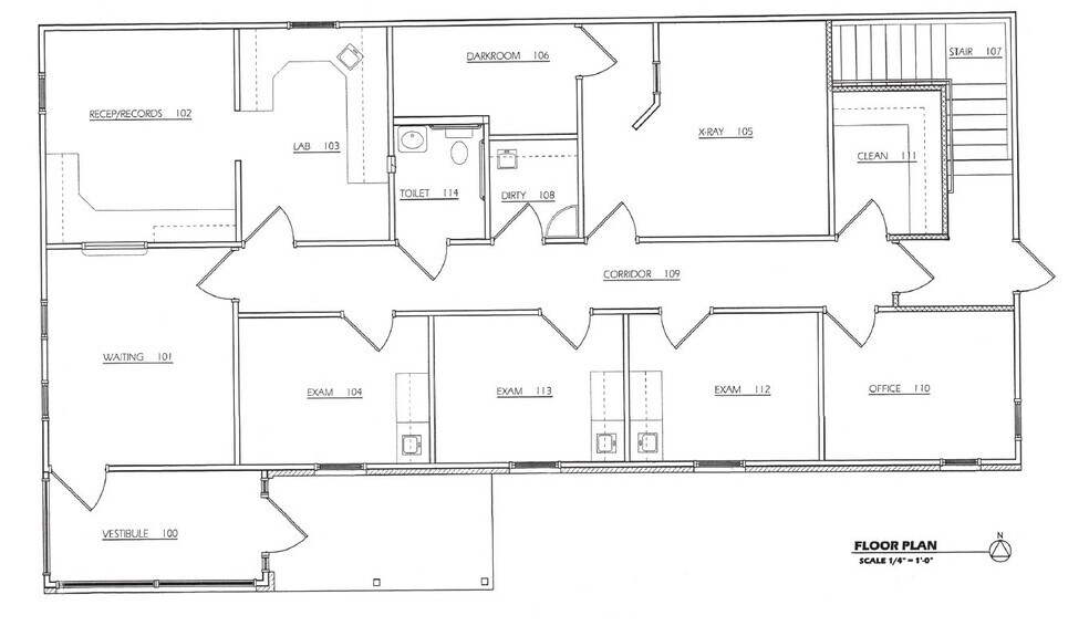
Espace de bureau médical clé en main avec trois salles d'examen, un bureau, radiographie et chambre noire, laboratoire, réception/attente et entreposage. Le bâtiment pourrait être converti en bureaux standard en enlevant la plomberie et les armoires inutiles.
Cette clinique médicale bien aménagée, située dans la communauté rurale de Brandon, dans le centre-sud du Wisconsin, offre un bâtiment modeste et fonctionnel de 1 734 pieds carrés au premier étage, complété par un sous-sol inachevé. L'établissement offre des espaces de stationnement pratiques avec 11 stalles, assurant un accès sans faille pour les patients et le personnel.
Situé sur une vaste parcelle de 2,0 acres, l'immeuble offre suffisamment d'espace pour une expansion potentielle ou une transformation en bureaux ou au commerce de détail.
Cette clinique médicale bien aménagée, située dans la communauté rurale de Brandon, dans le centre-sud du Wisconsin, offre un bâtiment modeste et fonctionnel de 1 734 pieds carrés au premier étage, complété par un sous-sol inachevé. L'établissement offre des espaces de stationnement pratiques avec 11 stalles, assurant un accès sans faille pour les patients et le personnel.
Situé sur une vaste parcelle de 2,0 acres, l'immeuble offre suffisamment d'espace pour une expansion potentielle ou une transformation en bureaux ou au commerce de détail.
Faits sur la propriété
Type de vente
Propriétaire utilisateur
Type de propriété
Bureau
Sous-type de propriété
Médical
Taille du bâtiment
1 734 pi²
Classe d’immeuble
C
Année de construction
2001
Prix
396 633 $ CAD
Prix par pi²
228,74 $ CAD
Hauteur du bâtiment
1 étage
Superficie de plancher typique
1 734 pi²
Coefficient d’occupation des sols de l’immeuble
0,02
Taille du lot
2,00 AC
Zonage
B-2 - Quartier commercial routier
Stationnement
11 places (6,34 places par 1 000 pi² loué)
1 1
Impraticable à pied
10/100
Exceptionnellement facile d’accès en voiture
100/100
Impraticable en vélo
10/100
Impôts fonciers
| Numéro de lot | V01-15-14-36-03-005-00 | Évaluation des bâtiments | 269 944 $ CAD |
| Évaluation du terrain | 79 274 $ CAD | Évaluation totale | 349 217 $ CAD |
Impôts fonciers
Numéro de lot
V01-15-14-36-03-005-00
Évaluation du terrain
79 274 $ CAD
Évaluation des bâtiments
269 944 $ CAD
Évaluation totale
349 217 $ CAD
1 de 11
Vidéos
Visite extérieure 3D Matterport
Visite 3D Matterport
Photos
Vue depuis la rue
Rue
Carte
1 de 1
Présenté par
601 E Clark St
Vous êtes déjà membre? Connectez-vous
Hmm, il semble y avoir eu une erreur lors de l’envoi de votre message. Veuillez réessayer.
Merci! Votre message a été envoyé.
