Se Connecter/S’inscrire
Votre courriel a été envoyé.
6040 S Durango Dr - Condo Unit 110 Unité de condo • Bureau/Médical • 1 444 pi² • À vendre 999 035 $ CAD • Las Vegas, NV 89113



Certaines informations ont été traduites automatiquement.
1 Unité disponible
- Unité
- Taille de l’unité
- Utilisation du condo
- Prix
- Revenu net d’exploitation
| Type de vente | Investissement ou propriétaire utilisateur | ID/Numéro de lot | 163-33-213-005 |
| Type de vente | Investissement ou propriétaire utilisateur |
| ID/Numéro de lot | 163-33-213-005 |
Description
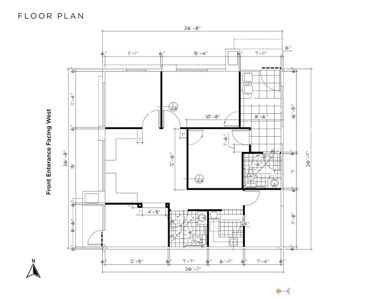
SVN | The Equity Group is pleased to present to you 6040 S Durango Dr. Suite 110, located in the Spring Valley submarket of Southwest Las Vegas.
Situated in a well-established professional corridor along one of the valley’s primary arterial roadways. The space offers a functional dual entry, flexible office layout featuring a welcoming reception area, four private offices, dedicated storage, two restrooms and central open work area.
This well-maintained office suite presents a turnkey opportunity for small to mid-sized businesses seeking a professional, move-in ready space in one of Las Vegas’s most active and accessible commercial neighborhoods.
Situated in a well-established professional corridor along one of the valley’s primary arterial roadways. The space offers a functional dual entry, flexible office layout featuring a welcoming reception area, four private offices, dedicated storage, two restrooms and central open work area.
This well-maintained office suite presents a turnkey opportunity for small to mid-sized businesses seeking a professional, move-in ready space in one of Las Vegas’s most active and accessible commercial neighborhoods.
| Unité | Taille de l’unité | Utilisation du condo | Prix | Revenu net d’exploitation |
| Unité 110 | 1 444 pi² | Bureau/Médical | 999 035 $ CAD (691,85 $ CAD/pi²) | - |
Unité 110
| Taille de l’unité |
| 1 444 pi² |
| Utilisation du condo |
| Bureau/Médical |
| Prix |
| 999 035 $ CAD (691,85 $ CAD/pi²) |
| Revenu net d’exploitation |
| - |
1 de 7
Vidéos
Visite extérieure 3D Matterport
Visite 3D Matterport
Photos
Vue depuis la rue
Rue
Carte
Unité 110
| Taille de l’unité | 1 444 pi² |
| Utilisation du condo | Bureau/Médical |
| Prix | 999 035 $ CAD (691,85 $ CAD/pi²) |
| Revenu net d’exploitation | - |
| Type de vente | Investissement ou propriétaire utilisateur |
| ID/Numéro de lot | 163-33-213-005 |
| Description | |
| SVN | The Equity Group is pleased to present to you 6040 S Durango Dr. Suite 110, located in the Spring Valley submarket of Southwest Las Vegas. <br> <br> Situated in a well-established professional corridor along one of the valley’s primary arterial roadways. The space offers a functional dual entry, flexible office layout featuring a welcoming reception area, four private offices, dedicated storage, two restrooms and central open work area. <br> <br> This well-maintained office suite presents a turnkey opportunity for small to mid-sized businesses seeking a professional, move-in ready space in one of Las Vegas’s most active and accessible commercial neighborhoods.</li></ul> |
Faits sur la propriété
Les caractéristiques et les équipements suivants s'appliquent à l'ensemble du bâtiment. Les détails relatifs aux unités de copropriété individuelles peuvent varier et figurent dans les informations concernant les unités ci-dessus.
Commodités
- Accès 24 heures
- Cour
- Système de sécurité
- Affichage
- Climatisation
1 1
Assez practicable à pied
50/100
Très facile d'accès en voiture
80/100
Transports en commun très limités
10/100
Plutôt praticable en vélo
40/100
1 de 8
Vidéos
Visite extérieure 3D Matterport
Visite 3D Matterport
Photos
Vue depuis la rue
Rue
Carte
1 de 1
Présenté par
6040 S Durango Dr - Condo Unit 110
Vous êtes déjà membre? Connectez-vous
Hmm, il semble y avoir eu une erreur lors de l’envoi de votre message. Veuillez réessayer.
Merci! Votre message a été envoyé.


