Votre courriel a été envoyé.
Certaines informations ont été traduites automatiquement.
Faits saillants
- Centre à usage mixte de 3 étages de 40 000 pi2 avec locataires et occasions de vente au détail, de restaurants, de services et de bureaux
- À quelques minutes de la rue Charles, de l'avenue Roland, de l'I-695 et de l'I-83
- Joignez-vous à The Corner Pantry, Sushi Hana, Aluma Yoga, Long & Foster Real Estate, Mason-Mayes, Al Pacino Pizza, KCO Salon/Spa de jour, Serenity Nails
- Emplacement privilégié à Mount Washington/Roland Park
- Stationnement ouvert et amplement en surface
Disponibilité de l’espace (1)
Afficher les taux de location en
- Espace
- Taille
- Terme
- Taux de location
- Type de loyer
| Espace | Taille | Terme | Taux de location | Type de loyer | ||
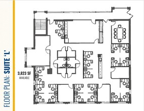
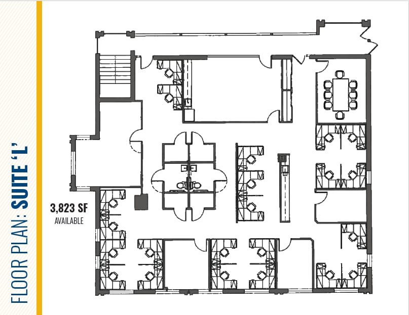
| 2e étage, ste L | 3 823 pi² | Négociable | Sur demande Sur demande Sur demande Sur demande | À déterminer |
2e étage, ste L
3,823 SF ± 2nd floor office space
- Convient pour 10 à 31 personnes
Types de loyers
Le type et le montant du loyer que le locataire (preneur) est tenu de payer au propriétaire (bailleur) sur la durée du bail sont négociés avant la signature du bail par les deux parties. Le type de loyer varie selon les services fournis. Par exemple, le prix d’un loyer hypernet est habituellement inférieur à celui d’un bail à service complet puisque le locataire est tenu d’assumer des dépenses additionnelles par rapport au loyer de base. Contactez le courtier inscripteur pour tout connaître sur les frais connexes et additionnels associés à chaque type de loyer.
1. Service complet: Un taux de location qui comprend des services standards liés à l’immeuble fournis par le propriétaire dans le cadre d’une location annuelle de base.
2. Loyer supernet: Le locataire paie seulement deux des frais de l’immeuble. Le propriétaire et le locataire déterminent ces frais spécifiques avant la signature du bail.
3. Loyer hypernet: Un bail en vertu duquel le locataire est responsable de tous les frais liés à sa part proportionnelle d’occupation de l’immeuble.
4. Brut modifié: Le loyer brut modifié désigne un type général de taux de location dans lequel le locataire est habituellement responsable de sa part proportionnelle d’un ou de plusieurs frais. C’est le propriétaire qui paie les frais restants. Considérez les structures tarifaires courantes suivantes applicables aux loyers bruts modifiés: 4. Plus les services: Un type de bail brut modifié suivant lequel le locataire est responsable de sa part proportionnelle des coûts des services publics, en plus du loyer. 4. Plus le nettoyage: Un type de bail brut modifié suivant lequel le locataire est responsable de sa part proportionnelle des coûts de nettoyage, en plus du loyer. 4. Plus l'électricité: Un type de bail brut modifié suivant lequel le locataire est responsable de sa part proportionnelle des coûts d’électricité, en plus du loyer. 4. Plus l’électricité et le nettoyage: Un type de bail brut modifié dans lequel le locataire est responsable de sa part proportionnelle des coûts d’électricité et de nettoyage, en plus du loyer. 4. Plus les services publics et le nettoyage: Un type de bail brut modifié dans lequel le locataire est responsable de sa part proportionnelle des coûts des services publics et de nettoyage, en plus du loyer. 4. Bail industriel brut: Un type de bail brut modifié dans lequel le locataire paie un ou plusieurs des frais, en plus du loyer. Le propriétaire et le locataire déterminent ces frais spécifiques avant la signature du bail.
5. L’électricité est à la charge du locataire: Le propriétaire paie pour tous les services et le locataire est responsable de sa propre utilisation de l’éclairage et des prises électriques dans l’espace qu’il occupe.
6. Négociable ou sur demande: Cette option est utilisée lorsque le contact de location ne précise pas le type de loyer ou de service.
7. À déterminer: À déterminer ; utilisé pour les immeubles dont le type de services ou de loyer n’est pas connu, souvent quand l’immeuble n’est pas encore construit.
Faits sur la propriété
| Superficie totale disponible | 3 823 pi² | Année de construction/rénovation | 1981/2020 |
| Type de propriété | Commerce de détail | Ratio de stationnement | 0,95/1 000 pi² |
| Superficie commerciale brute | 42 086 pi² |
| Superficie totale disponible | 3 823 pi² |
| Type de propriété | Commerce de détail |
| Superficie commerciale brute | 42 086 pi² |
| Année de construction/rénovation | 1981/2020 |
| Ratio de stationnement | 0,95/1 000 pi² |
À propos de la propriété
MacKenzie Retail, LLC est heureux de vous présenter l'occasion de louer un espace de vente au détail de premier choix à Lake Falls Village, un centre à usages mixtes de 3 étages de 40 000 pi2 avec des locataires de commerces de détail, de restaurants, de services et de bureaux sur Falls Road, juste au nord de la ligne de Baltimore City. Le centre est situé dans la zone commerciale Mount Washington/Roland Park, à quelques minutes de Charles Street, Roland Avenue, I-695 et I-83. Lake Falls Village dispose d'un grand stationnement en surface ouvert et offre actuellement une disponibilité au détail parfaite pour la mode ou un utilisateur de service.
- Affichage
- Climatisation
Principaux détaillants à proximité
Présenté par
Lake Falls Village | 6080 Falls Rd
Hmm, il semble y avoir eu une erreur lors de l’envoi de votre message. Veuillez réessayer.
Merci! Votre message a été envoyé.





