Se Connecter/S’inscrire
Votre courriel a été envoyé.
611-635 E Ashby Rd
Florence, SC 29506
615 E Ashby Rd · Commerce de détail Propriété À vendre


Certaines informations ont été traduites automatiquement.
FAITS SAILLANTS DE L'INVESTISSEMENT
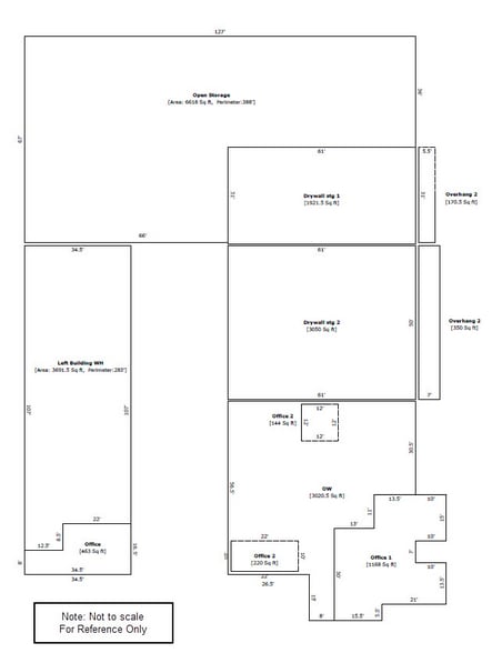
- ±19,960 Total SF
- ±0.69 Acre Lot
- Dock High Doors
- ±13,072 SF Warehouse/Office Space
- Drive In Doors
RÉSUMÉ DE L'ANNONCE
Located at 615 E Ashby Road in Quinby, SC, this ±13,072 SF office/warehouse facility sits on ±0.69 acres and is zoned B3 in Florence County. The property includes ±6,618 SF of open covered storage and offers a flexible layout suitable for a range of industrial or commercial uses.
FAITS SUR LA PROPRIÉTÉ
Type de vente
Investissement ou propriétaire utilisateur
Type de propriété
Taille du bâtiment
19 960 pi²
Classe d’immeuble
C
Année de construction
1970
Prix
936 210 $ CAD
Prix par pi²
46,90 $ CAD
Location
Unique
Hauteur du bâtiment
1 étage
Coefficient d’occupation des sols de l’immeuble
0,66
Taille du lot
0,69 AC
Zonage
Florence County B3
Impôts fonciers
| Numéro de lot | 00175-01-067 | Évaluation des bâtiments | 16 212 $ CAD |
| Évaluation du terrain | 2 403 $ CAD | Évaluation totale | 18 614 $ CAD |
Impôts fonciers
Numéro de lot
00175-01-067
Évaluation du terrain
2 403 $ CAD
Évaluation des bâtiments
16 212 $ CAD
Évaluation totale
18 614 $ CAD
1 de 8
VIDÉOS
VISITE EXTÉRIEURE 3D MATTERPORT
VISITE 3D MATTERPORT
PHOTOS
VUE DEPUIS LA RUE
RUE
CARTE
