Votre courriel a été envoyé.
Rolling Mill Professional Center 6116 Rolling Rd 1 037 pi² d'espace disponible • Bureau • Springfield, VA 22152



Certaines informations ont été traduites automatiquement.
Faits saillants
- Plenty of Parking
- All Utilities Included
- Secured Building with Direct Elevator Access
Tous les espaces disponibles(1)
Afficher les taux de location en
- Espace
- Taille
- Terme
- Taux de location
- Utilisation de l’espace
- Aménagement
- Disponible
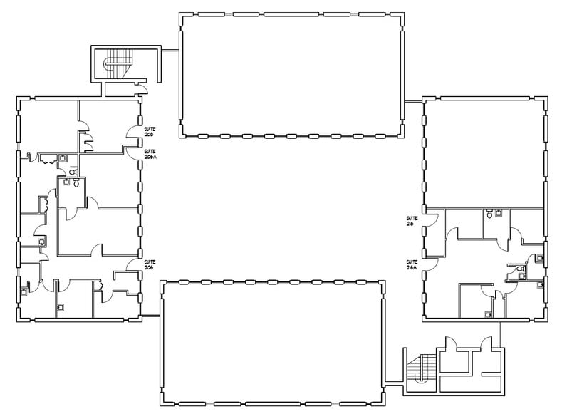
Suite 216 at 6116 Rolling Road offers a well-designed roughly 1,037 SF office space ideal for a wide range of professional uses. The layout features three spacious private offices, providing flexibility for teams, client-facing businesses, or treatment rooms. A standout feature is the presence of two private restrooms within the suite—rare for spaces of this size—adding convenience for both staff and clients. The open flow between offices and common areas allows for efficient operations and a comfortable work environment. This suite is well-suited for medical users, general office, salon services, consulting firms, or boutique professional practices. 1,037 SF turnkey office space Three large private offices Two in-suite private restrooms Flexible layout for multiple use types (medical, office, salon, etc.) ****All utilities included in rent
- Le taux comprend les services publics, les services de bâtiment et les dépenses immobilières.
- Disposition du plan d’étage ouverte
- 3 bureaux privés
- Clé en main
- Aire de réception
- Système de sécurité
- Lumière naturelle
- All utilities included (Water, Electric, gas)
- 3 Large Offices
- Large Waiting Room and Reception
- Entièrement construit comme Bureau standard
- Convient pour 3 à 9 personnes
- Espace en excellent état
- Air central et chauffage
- Accès aux ascenseurs
- Hauts plafonds
- Plenty of Parking and Direct Elevator Access
- 2 Private Restrooms in unit
- Sink for kitchenette
| Espace | Taille | Terme | Taux de location | Utilisation de l’espace | Aménagement | Disponible |
| 2e étage, ste 216 | 1 037 pi² | Négociable | Sur demande Sur demande Sur demande Sur demande | Bureau | construction complète | Maintenant |
2e étage, ste 216
| Taille |
| 1 037 pi² |
| Terme |
| Négociable |
| Taux de location |
| Sur demande Sur demande Sur demande Sur demande |
| Utilisation de l’espace |
| Bureau |
| Aménagement |
| construction complète |
| Disponible |
| Maintenant |
2e étage, ste 216
| Taille | 1 037 pi² |
| Terme | Négociable |
| Taux de location | Sur demande |
| Utilisation de l’espace | Bureau |
| Aménagement | construction complète |
| Disponible | Maintenant |
Suite 216 at 6116 Rolling Road offers a well-designed roughly 1,037 SF office space ideal for a wide range of professional uses. The layout features three spacious private offices, providing flexibility for teams, client-facing businesses, or treatment rooms. A standout feature is the presence of two private restrooms within the suite—rare for spaces of this size—adding convenience for both staff and clients. The open flow between offices and common areas allows for efficient operations and a comfortable work environment. This suite is well-suited for medical users, general office, salon services, consulting firms, or boutique professional practices. 1,037 SF turnkey office space Three large private offices Two in-suite private restrooms Flexible layout for multiple use types (medical, office, salon, etc.) ****All utilities included in rent
- Le taux comprend les services publics, les services de bâtiment et les dépenses immobilières.
- Entièrement construit comme Bureau standard
- Disposition du plan d’étage ouverte
- Convient pour 3 à 9 personnes
- 3 bureaux privés
- Espace en excellent état
- Clé en main
- Air central et chauffage
- Aire de réception
- Accès aux ascenseurs
- Système de sécurité
- Hauts plafonds
- Lumière naturelle
- Plenty of Parking and Direct Elevator Access
- All utilities included (Water, Electric, gas)
- 2 Private Restrooms in unit
- 3 Large Offices
- Sink for kitchenette
- Large Waiting Room and Reception
Caractéristiques et commodités
- Affichage
Faits sur la propriété
Sélectionner des locataires
- Étage
- Nom du locataire
- Secteur
- 3ᵉ
- Apex Endodontics
- Soins de santé et assistance sociale
- 3ᵉ
- Dental First Associates
- Soins de santé et assistance sociale
- 3ᵉ
- Dolce lash&beauty studio
- -
- 3ᵉ
- Elite Investigation & Protection Agency
- Services professionnels, scientifiques et techniques
- 1ᵉʳ
- Englert Financial
- Finance et assurances
- 2ᵉ
- Hudson Orthodontics
- Soins de santé et assistance sociale
- 1ᵉʳ
- Mr. TV mount
- -
- 2ᵉ
- Park Spring Dental
- Soins de santé et assistance sociale
- 2ᵉ
- West Springfield Dental Arts
- Soins de santé et assistance sociale
Présenté par
Rolling Mill Professional Center | 6116 Rolling Rd
Hmm, il semble y avoir eu une erreur lors de l’envoi de votre message. Veuillez réessayer.
Merci! Votre message a été envoyé.



