Votre courriel a été envoyé.
Certaines informations ont été traduites automatiquement.
Faits saillants
- Entrepôt industriel climatisé de 25 000 pc à 100 % sur 1,93 acres disponibles à la location.
- À moins de 1,5 km de l'autoroute I-10 et de Santan Loop 202 Fwys.
- Système de refroidissement de 70 tonnes | Entrepôt 100 % c.a'd
- Cour clôturée pour l'entreposage extérieur.
Caractéristiques
Tous les espaces disponibles(1)
Afficher les taux de location en
- Espace
- Taille
- Terme
- Taux de location
- Utilisation de l’espace
- Aménagement
- Disponible
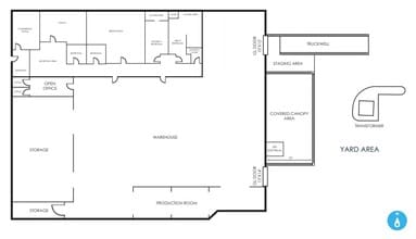
Position your operations in Chandler’s thriving Southpark Business Center with this highly functional industrial facility offering exceptional power, climate control, and accessibility. The property features a fully air-conditioned warehouse environment designed for precision manufacturing or technology-driven operations. With ±3,500 SF of office space integrated into the layout, businesses can seamlessly manage administrative and production needs under one roof. The building’s infrastructure is a standout, boasting heavy power capacity with dual 277/480V service and multiple craneways to support material handling. Fire sprinklers, auxiliary generator, and air compressors enhance operational reliability. A truckwell and grade-level door provide flexible loading options, while the outdoor storage yard adds versatility for equipment or inventory staging. Strategically located less than 1.5 miles from I-10 and Loop 202, this site ensures rapid connectivity to Greater Phoenix, major distribution corridors, and a skilled labor pool. Chandler’s dynamic industrial market, coupled with proximity to Tempe, Mesa, and Gilbert, positions this property as an ideal hub for companies seeking efficiency and growth in Arizona’s East Valley.
- Le taux de location ne comprend pas les services publics, les services de bâtiment ou les dépenses immobilières.
- 1 accès plain-pied
- Climatisation centrale
- Comprend 3 500 pi² d’espace de bureau dédié
- 1 quai de chargement
- Entreposage sécurisé
| Espace | Taille | Terme | Taux de location | Utilisation de l’espace | Aménagement | Disponible |
| 1er étage | 25 000 pi² | Négociable | Sur demande Sur demande Sur demande Sur demande | Industriel | construction partielle | Maintenant |
1er étage
| Taille |
| 25 000 pi² |
| Terme |
| Négociable |
| Taux de location |
| Sur demande Sur demande Sur demande Sur demande |
| Utilisation de l’espace |
| Industriel |
| Aménagement |
| construction partielle |
| Disponible |
| Maintenant |
1er étage
| Taille | 25 000 pi² |
| Terme | Négociable |
| Taux de location | Sur demande |
| Utilisation de l’espace | Industriel |
| Aménagement | construction partielle |
| Disponible | Maintenant |
Position your operations in Chandler’s thriving Southpark Business Center with this highly functional industrial facility offering exceptional power, climate control, and accessibility. The property features a fully air-conditioned warehouse environment designed for precision manufacturing or technology-driven operations. With ±3,500 SF of office space integrated into the layout, businesses can seamlessly manage administrative and production needs under one roof. The building’s infrastructure is a standout, boasting heavy power capacity with dual 277/480V service and multiple craneways to support material handling. Fire sprinklers, auxiliary generator, and air compressors enhance operational reliability. A truckwell and grade-level door provide flexible loading options, while the outdoor storage yard adds versatility for equipment or inventory staging. Strategically located less than 1.5 miles from I-10 and Loop 202, this site ensures rapid connectivity to Greater Phoenix, major distribution corridors, and a skilled labor pool. Chandler’s dynamic industrial market, coupled with proximity to Tempe, Mesa, and Gilbert, positions this property as an ideal hub for companies seeking efficiency and growth in Arizona’s East Valley.
- Le taux de location ne comprend pas les services publics, les services de bâtiment ou les dépenses immobilières.
- Comprend 3 500 pi² d’espace de bureau dédié
- 1 accès plain-pied
- 1 quai de chargement
- Climatisation centrale
- Entreposage sécurisé
Aperçu de la propriété
Located in Chandler’s Southpark Business Center, this industrial property offers a highly functional environment for advanced operations. The building is fully air-conditioned, creating an ideal setting for precision manufacturing or technology-driven businesses. It features robust infrastructure with heavy power capacity, multiple craneways, and fire sprinklers for enhanced safety. Loading is efficient with a truckwell and grade-level door, complemented by an outdoor storage yard for added flexibility. The site spans approximately 1.93 acres and provides excellent freeway access, situated less than 1.5 miles from I-10 and Loop 202, ensuring seamless connectivity to Greater Phoenix and major distribution routes. Additional amenities include an auxiliary generator and air compressors, supporting uninterrupted operations. This property combines strategic location, modern functionality, and superior accessibility, making it a prime choice for companies seeking a well-equipped industrial facility in the East Valley.
Faits sur l’installation fabrication
Présenté par
6145 W Detroit St
Hmm, il semble y avoir eu une erreur lors de l’envoi de votre message. Veuillez réessayer.
Merci! Votre message a été envoyé.






