Votre courriel a été envoyé.
Woodbury Professional Center 615 Route 32 1 275–3 416 pi² d'espace disponible • Bureau • Highland Mills, NY 10930



Certaines informations ont été traduites automatiquement.
TOUS LES ESPACES DISPONIBLES(2)
Afficher les taux de location en
- ESPACE
- TAILLE
- TERME
- TAUX DE LOCATION
- UTILISATION DE L’ESPACE
- ÉTAT
- DISPONIBLE
Great office space opportunity in Highland Mills, NY. Less than 3 miles to Rt 17 and NYS Thruway, exit 16.
- Le taux inscrit peut ne pas comprendre certains services publics, les services de bâtiment et les dépenses immobilières.
- 3 bureaux privés
- Espace en excellent état
- Salle de bains privée
- Lumière naturelle
- Planchers de bois franc
- Separately metered electricity
- Entièrement construit comme Bureau standard
- 1 salle de conférence
- Climatisation centrale
- Espace en coin
- CVCA disponible après les heures de travail
- HVAC individually controlled
- 24-hour television security systems
Great office space opportunity in Highland Mills, NY. Less than 3 miles to Rt 17 and NYS Thruway, exit 16.
- Le taux inscrit peut ne pas comprendre certains services publics, les services de bâtiment et les dépenses immobilières.
- Climatisation centrale
- HVAC individually controlled
- 24-hour television security systems
- Entièrement construit comme Bureau standard
- Complètement tapissé
- Separately metered electricity
| Espace | Taille | Terme | Taux de location | Utilisation de l’espace | État | Disponible |
| 1er étage, ste 4 | 1 275 pi² | Négociable | 28,27 $ CAD/pi²/an 2,36 $ CAD/pi²/mois 36 042 $ CAD/an 3 003 $ CAD/mois | Bureau | construction complète | Maintenant |
| Penthouse | 2 141 pi² | Négociable | 28,96 $ CAD/pi²/an 2,41 $ CAD/pi²/mois 61 998 $ CAD/an 5 167 $ CAD/mois | Bureau | construction complète | Maintenant |
1er étage, ste 4
| Taille |
| 1 275 pi² |
| Terme |
| Négociable |
| Taux de location |
| 28,27 $ CAD/pi²/an 2,36 $ CAD/pi²/mois 36 042 $ CAD/an 3 003 $ CAD/mois |
| Utilisation de l’espace |
| Bureau |
| État |
| construction complète |
| Disponible |
| Maintenant |
Penthouse
| Taille |
| 2 141 pi² |
| Terme |
| Négociable |
| Taux de location |
| 28,96 $ CAD/pi²/an 2,41 $ CAD/pi²/mois 61 998 $ CAD/an 5 167 $ CAD/mois |
| Utilisation de l’espace |
| Bureau |
| État |
| construction complète |
| Disponible |
| Maintenant |
1er étage, ste 4
| Taille | 1 275 pi² |
| Terme | Négociable |
| Taux de location | 28,27 $ CAD/pi²/an |
| Utilisation de l’espace | Bureau |
| État | construction complète |
| Disponible | Maintenant |
Great office space opportunity in Highland Mills, NY. Less than 3 miles to Rt 17 and NYS Thruway, exit 16.
- Le taux inscrit peut ne pas comprendre certains services publics, les services de bâtiment et les dépenses immobilières.
- Entièrement construit comme Bureau standard
- 3 bureaux privés
- 1 salle de conférence
- Espace en excellent état
- Climatisation centrale
- Salle de bains privée
- Espace en coin
- Lumière naturelle
- CVCA disponible après les heures de travail
- Planchers de bois franc
- HVAC individually controlled
- Separately metered electricity
- 24-hour television security systems
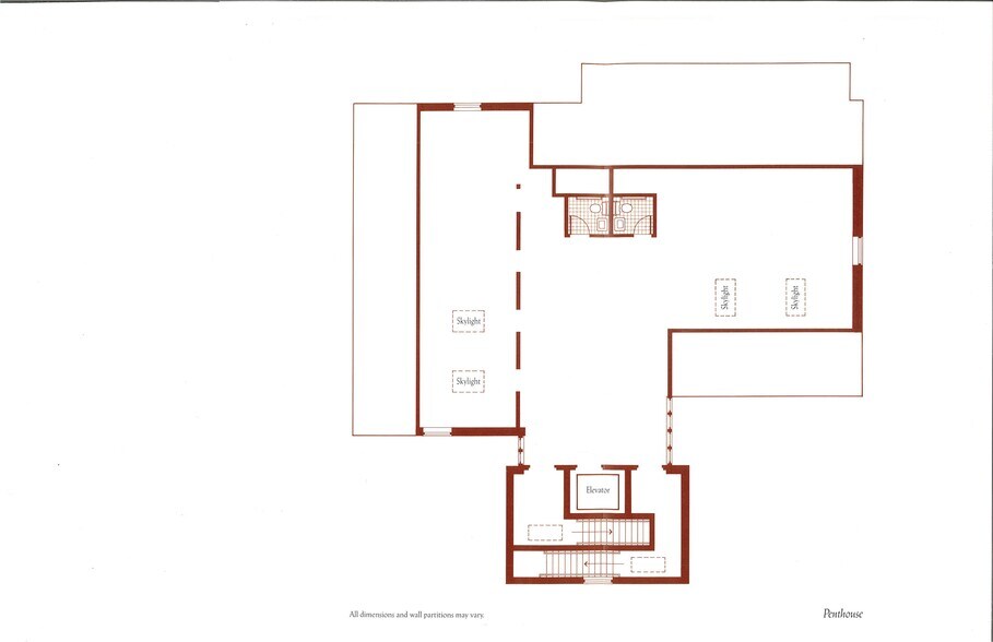
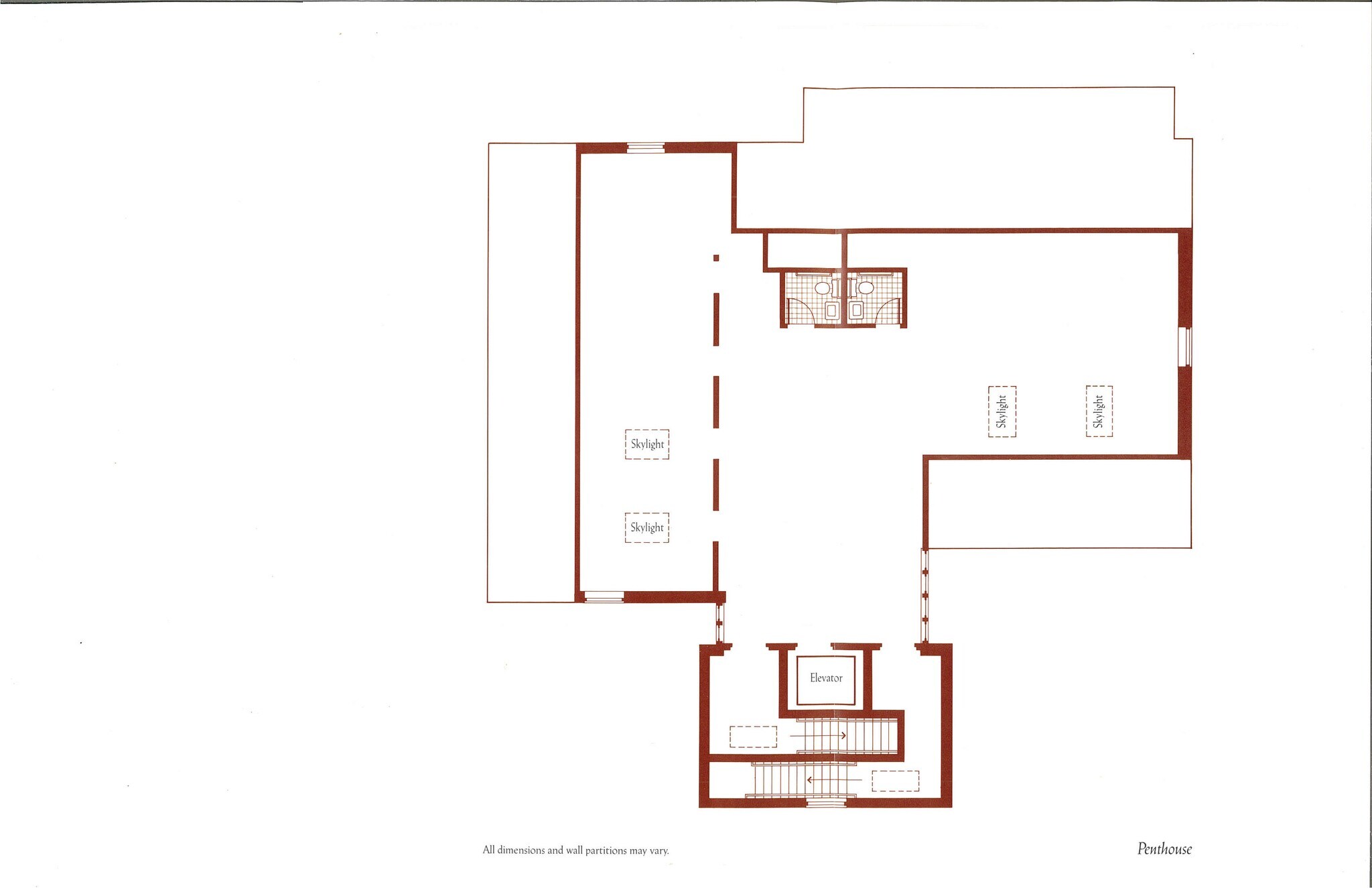
Penthouse
| Taille | 2 141 pi² |
| Terme | Négociable |
| Taux de location | 28,96 $ CAD/pi²/an |
| Utilisation de l’espace | Bureau |
| État | construction complète |
| Disponible | Maintenant |
Great office space opportunity in Highland Mills, NY. Less than 3 miles to Rt 17 and NYS Thruway, exit 16.
- Le taux inscrit peut ne pas comprendre certains services publics, les services de bâtiment et les dépenses immobilières.
- Entièrement construit comme Bureau standard
- Climatisation centrale
- Complètement tapissé
- HVAC individually controlled
- Separately metered electricity
- 24-hour television security systems
APERÇU DE LA PROPRIÉTÉ
Spectaculaire suite de bureau penthouse disponible à la location dans un magnifique bâtiment historique, à seulement quelques minutes de l’I-87 et de la Route 17. Ce bureau comprend des espaces de travail grands et petits, des espaces communs, des salles de conférence et deux salles de bain. Les puits de lumière et les fenêtres cintrées offrent une abondance de lumière naturelle ainsi que des vues pittoresques sur la vallée de l’Hudson. Les murs en briques apparentes, les portes en bois massif et les moulures confèrent à cet espace une ambiance luxueuse qui impressionnera vos clients et créera un environnement attrayant pour travailler et innover. Les espaces extérieurs offrent plusieurs endroits relaxants pour profiter de vos pauses. Le grand stationnement privé est bien éclairé et entretenu. Possibilité d’affichage sur le répertoire le long de la très fréquentée Route 32. La gare de Harriman se trouve à 8 km, Manhattan à 88 km. Woodbury Commons est à quelques minutes seulement. Commerces, restaurants et commodités à proximité.
FAITS SUR LA PROPRIÉTÉ
Présenté par
Woodbury Professional Center | 615 Route 32
Hmm, il semble y avoir eu une erreur lors de l’envoi de votre message. Veuillez réessayer.
Merci! Votre message a été envoyé.


