Se Connecter/S’inscrire
Votre courriel a été envoyé.
Certaines informations ont été traduites automatiquement.
Faits saillants
- Immediate access to I-35 and John Carpenter Freeway for seamless regional connectivity.
- 16 FT clear height, heavy 3-phase power, and 4 exterior dock doors for efficient operations.
- 2021 TPO roof and reinforced concrete construction ensure durability and low maintenance.
- Currently under construction, allowing tenants to tailor the build-out to their exact specifications.
Caractéristiques
Hauteur libre
16’
Espacement des colonnes
24’ x 51’
Portes de quai de chargement extérieures
4
Places de stationnement standard
28
Tous les espaces disponibles(1)
Afficher les taux de location en
- Espace
- Taille
- Terme
- Taux de location
- Utilisation de l’espace
- Aménagement
- Disponible
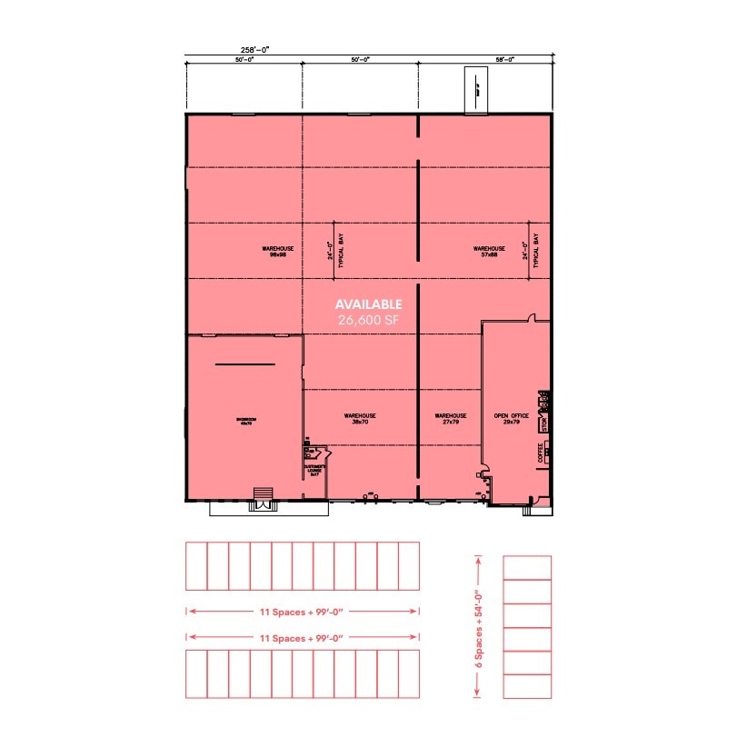
Space includes 2,432 square feet of office and 3,101 square feet of showroom. Uses permitted are retail, flex and industrial.
- Comprend 2 432 pi² d’espace de bureau dédié
- 4 quais de chargement
- Espace en excellent état
| Espace | Taille | Terme | Taux de location | Utilisation de l’espace | Aménagement | Disponible |
| 1er étage | 26 600 pi² | Négociable | Sur demande Sur demande Sur demande Sur demande | Industriel | construction complète | Maintenant |
1er étage
| Taille |
| 26 600 pi² |
| Terme |
| Négociable |
| Taux de location |
| Sur demande Sur demande Sur demande Sur demande |
| Utilisation de l’espace |
| Industriel |
| Aménagement |
| construction complète |
| Disponible |
| Maintenant |
1 de 1
Vidéos
Visite extérieure 3D Matterport
Visite 3D Matterport
Photos
Vue depuis la rue
Rue
Carte
1er étage
| Taille | 26 600 pi² |
| Terme | Négociable |
| Taux de location | Sur demande |
| Utilisation de l’espace | Industriel |
| Aménagement | construction complète |
| Disponible | Maintenant |
Space includes 2,432 square feet of office and 3,101 square feet of showroom. Uses permitted are retail, flex and industrial.
- Comprend 2 432 pi² d’espace de bureau dédié
- Espace en excellent état
- 4 quais de chargement
Faits sur la propriété
Taille du bâtiment
46 400 pi²
Taille du lot
1,41 AC
Année de construction
1978
Construction
Béton renforcé
Alimentation électrique
Phase: 3
Zonage
IR
Sélectionner des locataires
- Étage
- Nom du locataire
- Secteur
- 1ᵉʳ
- Granite Empire
- Construction
- 1ᵉʳ
- Pinnacle Coatings Group
- Fabrication
- 1ᵉʳ
- Providenicia Carpet Foam
- Services
1 1
Assez praticable à pied
50/100
Exceptionnellement facile d’accès en voiture
90/100
Transports en commun relativement accessibles
40/100
Moyennement praticable en vélo
60/100
1 de 8
Vidéos
Visite extérieure 3D Matterport
Visite 3D Matterport
Photos
Vue depuis la rue
Rue
Carte
1 de 1
Présenté par
Entreprise non fournie
616-626 W Mockingbird Ln
Vous êtes déjà membre? Connectez-vous
Hmm, il semble y avoir eu une erreur lors de l’envoi de votre message. Veuillez réessayer.
Merci! Votre message a été envoyé.





