Votre courriel a été envoyé.
Parkline 6174 Ridge Ave 2 380–21 700 pi² d'espace disponible • Commerce de détail • Philadelphia, PA 19128



Certaines informations ont été traduites automatiquement.
Faits saillants
- Easy access to I-76 and the Philadelphia’s Main Line
- Located within the Roxborough Pocket Park, the property is surrounded by restaurants, green spaces.
- Convenient access to SEPTA Regional Rail, I-76, Lincoln Drive, and Main Street Manayunk ensures easy connectivity throughout the city.
- On-site services include secure entry, elevator access, and both underground and nearby parking options.
Tous les espaces disponibles(1)
Afficher les taux de location en
- Espace
- Taille
- Terme
- Taux de location
- Utilisation de l’espace
- Aménagement
- Disponible
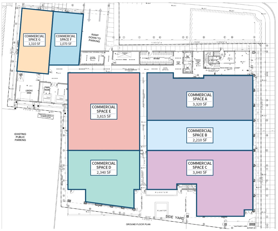
Up to 17,905 SF ground floor retail in the heart of Roxborough’s Ridge Avenue commercial corridor Ground floor retail beneath 82 units located at the Parkline Apartments Excellent frontage and visibility along Ridge Ave & Leverington Ave Unique access and entrance to Roxborough's "Pocket Park" Seeking retail, fitness, grocer & F&B tenants Ample street & off-street parking in the immediate vicinity Located in the heart of Roxborough's "Main Street" Easy access to I-76, City Ave & the Ridge Ave Corridor Sits between Manayunk & Chestnut Hill
- Partiellement construit comme Espace de commerce de détail standard
- Espace en excellent état
- Situé en ligne avec d’autres commerces de détail
| Espace | Taille | Terme | Taux de location | Utilisation de l’espace | Aménagement | Disponible |
| 1er étage | 2 380 à 21 700 pi² | Négociable | Sur demande Sur demande Sur demande Sur demande | Commerce de détail | construction partielle | Maintenant |
1er étage
| Taille |
| 2 380 à 21 700 pi² |
| Terme |
| Négociable |
| Taux de location |
| Sur demande Sur demande Sur demande Sur demande |
| Utilisation de l’espace |
| Commerce de détail |
| Aménagement |
| construction partielle |
| Disponible |
| Maintenant |
1er étage
| Taille | 2 380 à 21 700 pi² |
| Terme | Négociable |
| Taux de location | Sur demande |
| Utilisation de l’espace | Commerce de détail |
| Aménagement | construction partielle |
| Disponible | Maintenant |
Up to 17,905 SF ground floor retail in the heart of Roxborough’s Ridge Avenue commercial corridor Ground floor retail beneath 82 units located at the Parkline Apartments Excellent frontage and visibility along Ridge Ave & Leverington Ave Unique access and entrance to Roxborough's "Pocket Park" Seeking retail, fitness, grocer & F&B tenants Ample street & off-street parking in the immediate vicinity Located in the heart of Roxborough's "Main Street" Easy access to I-76, City Ave & the Ridge Ave Corridor Sits between Manayunk & Chestnut Hill
- Partiellement construit comme Espace de commerce de détail standard
- Situé en ligne avec d’autres commerces de détail
- Espace en excellent état
Faits sur la propriété
| Superficie totale disponible | 21 700 pi² | Sous-type de propriété | Appartement |
| Nombre d’unités | 94 | Style d’appartement | De hauteur moyenne |
| Min. divisible | 2 380 pi² | Taille du bâtiment | 50 617 pi² |
| Type de propriété | Immeuble residentiel | Année de construction | 2026 |
| Superficie totale disponible | 21 700 pi² |
| Nombre d’unités | 94 |
| Min. divisible | 2 380 pi² |
| Type de propriété | Immeuble residentiel |
| Sous-type de propriété | Appartement |
| Style d’appartement | De hauteur moyenne |
| Taille du bâtiment | 50 617 pi² |
| Année de construction | 2026 |
À propos de la propriété
Steps from Dunkin, Sunoco, GoPuff, Planet Fitness, Philadelphia Public Library, New Ridge Brewing. Oversized footprint and courtyard.
Principaux détaillants à proximité
Présenté par
Parkline | 6174 Ridge Ave
Hmm, il semble y avoir eu une erreur lors de l’envoi de votre message. Veuillez réessayer.
Merci! Votre message a été envoyé.


